Archbold & Edwards says ..
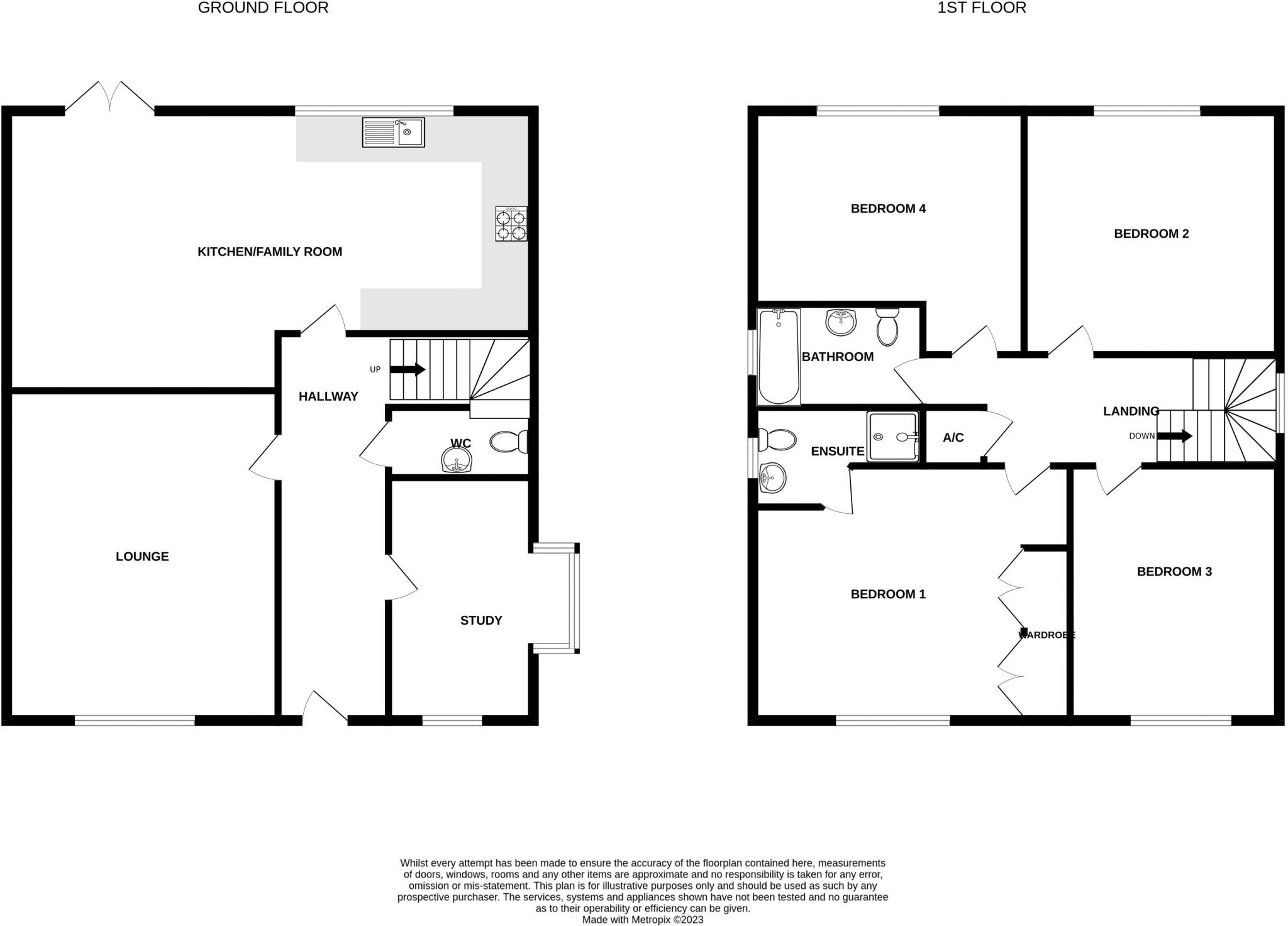
NEARLY NEW HOME ON POPULAR CHARLES CHURCH DEVELOPMENT IN DENMEAD VILLAGE OFFERED WITH NO CHAIN AHEAD. A four bedroom detached house located in a Denmead cul-de-sac location, near Waterlooville and Hambledon. This property benefits from double glazing, gas central heating system, landscaped rear g...
Property Oracle says ..
Therefore, we give this property 7 / 10. *Disclaimer: This is our option and does constitute a recommendation or financial advice. Do your own research. *
- Price
- 6
- Condition
- 8
- Location
- 7
- Land
- 7
- Bedrooms
- 4
- Bathrooms
- 2
- Sqft (est)
- 1,404.00
The heatmap indicates the level of crime in the area. The color of the heatmap indicates the crime severity and recency.
Metrics Year-on-Year
- Average area value
- 359,091.00 £Decreased by 29.86 %
- Est sale value
- 578,448.00 £Increased by 5.10 %
- Average area rental value
- 1,545.00 £/moIncreased by 4.32 %
- Est letting value
- 1,404.00 £/moUnchanged by 0.00 %
- Est rental Yield
- 5.16 %Increased by 48.70 %
- Crime Rate
- 35.00 %Unchanged by 0.00 %
from 511,943.00 £
from 550,368.00 £
from 1,481.00 £/mo
from 1,404.00 £/mo
from 3.47 %
from 35.00 %
Agent Activity
Archbold & Edwards created the listing.
Nearby Schools
| Name | Type | Ofsted | Distance |
|---|---|---|---|
| Denmead Infant School | Community School | Good | 0.53 KM |
| Happy Valley Children'S Centre | Children's Centre Linked Site | 0.53 KM | |
| Denmead Junior School | Community School | Good | 0.67 KM |
| Rachel Madocks School | Community Special School | Good | 3.18 KM |
| Link'S Children'S Centre | Children's Centre | 3.35 KM |
Images
Nearby Streets
| Name | Average Price | Average Sqft | Distance |
|---|---|---|---|
| Carpenters Close | £ 0 | 0 | 0.00 KM |
| The Heath | £ 0 | 0 | 0.00 KM |
| Whitehorse Lane | £ 0 | 0 | 0.00 KM |
| Old Farm Walk | £ 0 | 0 | 0.00 KM |
| River Walk | £ 0 | 0 | 0.00 KM |
Nearby Transport
| Name | NLC | TLC | Distance |
|---|---|---|---|
| Cosham | 5896 | CSA | 7.08 KM |
| Hilsea | 5539 | HLS | 8.59 KM |
| Portchester | 5928 | PTC | 9.25 KM |
| Bedhampton | 5538 | BDH | 9.38 KM |
Nearby Listings
| Address | Price | Type | Score | Distance |
|---|---|---|---|---|
| Kidmere Way, Denmead | £ 500,000 | BUY | 7 / 10 | 0.00 KM |
| KIDMERE WAY, DENMEAD | £ 500,000 | BUY | 7 / 10 | 0.03 KM |
| Denmead, Hampshire | £ 500,000 | BUY | Unknown | 0.04 KM |
| Kidmere Way, Denmead, Waterlooville, Hampshire, PO7 | £ 485,000 | BUY | 7 / 10 | 0.04 KM |
| TANNERS VIEW, DENMEAD | £ 550,000 | BUY | 8 / 10 | 0.09 KM |
Nearby Properties
| Address | Price | Distance |
|---|---|---|
| Kidmeres | £ 577,500 | 0.18 KM |
| Forestside | £ 236,000 | 0.27 KM |
| Peartree Cottage | £ 390,000 | 0.27 KM |
| Barnes Wood | £ 244,000 | 0.28 KM |
| 7 Ludcombe | £ 280,000 | 0.29 KM |