Homewise says ..
Guide price for a Home for Life Lifetime Lease for OVER 60s tailored to your personal circumstances and requirements. Your price may vary. OVER 60S could benefit from SAVINGS of up to 59% from the market value with a one-off payment for a Lifetime Lease on this property. £21...
Property Oracle says ..
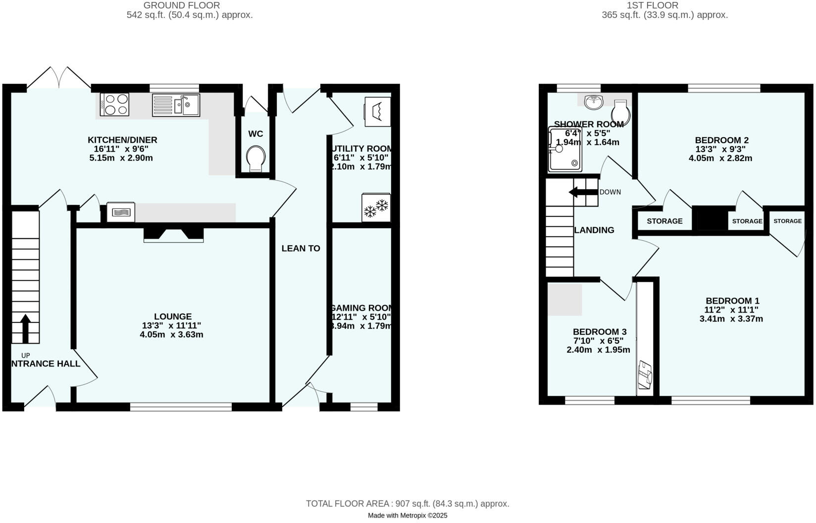
The property is located in the family-friendly suburb of Alphington, Exeter, with proximity to Alphington Primary School. While details on local shops and transport are limited, the average house price on Fairfield Road suggests a desirable location. The property shows good condition, with recent kitchen and bathroom updates. The garden is modest but usable. The list price is lower than the area average, potentially due to factors not detailed, making it seem reasonable despite a lower price per sqft compared to the area average.
Therefore, we give this property 7 / 10. *Disclaimer: This is our option and does constitute a recommendation or financial advice. Do your own research. *
- Price
- 7
- Condition
- 8
- Location
- 7
- Land
- 6
- Bedrooms
- 3
- Bathrooms
- 0
- Sqft (est)
- 766.89
- Lot (est)
- 907.00
The heatmap indicates the level of crime in the area. The color of the heatmap indicates the crime severity and recency.
Metrics Year-on-Year
- Average area value
- 298,045.00 £Decreased by 18.28 %
- Est sale value
- 253,840.59 £Decreased by 4.61 %
- Average area rental value
- 1,425.00 £/moIncreased by 1.79 %
- Est letting value
- 766.89 £/moUnchanged by 0.00 %
- Est rental Yield
- 5.74 %Increased by 24.51 %
- Crime Rate
- 14.00 %Unchanged by 0.00 %
Agent Activity
Homewise created the listing.
Nearby Schools
| Name | Type | Ofsted | Distance |
|---|---|---|---|
| Alphington Primary School | Academy Converter | Good | 0.42 KM |
| West Exe School | Academy Sponsor Led | 1.19 KM | |
| The Outdoors School | Other Independent Special School | Requires improvement | 1.52 KM |
| St Thomas Primary School | Academy Converter | Good | 2.04 KM |
| West Exe Nursery School | Local Authority Nursery School | Outstanding | 2.23 KM |
Images
Nearby Streets
| Name | Average Price | Average Sqft | Distance |
|---|---|---|---|
| Fairfield Road | £ 286,488 | 0 | 0.00 KM |
| Shillingford Road | £ 0 | 0 | 0.00 KM |
| Admiral Vernon Close | £ 0 | 0 | 0.00 KM |
| Shillingford Road | £ 900,000 | 0 | 0.00 KM |
| Richard Court | £ 0 | 0 | 0.00 KM |
Nearby Transport
| Name | NLC | TLC | Distance |
|---|---|---|---|
| Exeter St Thomas | 3414 | EXT | 2.25 KM |
| Exeter Central | 5755 | EXC | 3.29 KM |
| Exeter St David'S | 3410 | EXD | 3.67 KM |
| St James Park (Exeter) | 5751 | SJP | 4.10 KM |
| Polsloe Bridge | 3422 | POL | 5.36 KM |
Nearby Listings
| Address | Price | Type | Score | Distance |
|---|---|---|---|---|
| Fairfield Road, Alphington, EX2 | £ 369,950 | BUY | 8 / 10 | 0.00 KM |
| Fairfield Road, Exeter, Devon | £ 325,000 | BUY | 7 / 10 | 0.00 KM |
| Fairfield Road, Exeter, Devon | £ 217,750 | BUY | 7 / 10 | 0.00 KM |
| Alphington, Exeter | £ 395,000 | BUY | Unknown | 0.07 KM |
| Aldens Road, Alphington, Exeter, EX2 | £ 280,000 | BUY | 6 / 10 | 0.13 KM |
Nearby Properties
| Address | Price | Distance |
|---|---|---|
| 34 Fairfield Road | £ 190,000 | 0.01 KM |
| 66 Fairfield Road | £ 318,000 | 0.01 KM |
| 56 Fairfield Road | £ 194,950 | 0.01 KM |
| 47 Fairfield Road | £ 61,000 | 0.01 KM |
| 52 Fairfield Road | £ 220,000 | 0.01 KM |