Great Rissington, Gloucestershire, GL54
By Chancellors
£ 900,000
Reviews
2 out of 5 stars
Chancellors says ..
Situated in the sought-after and rarely available village of Great Rissington and offering huge scope to further improve, is this detached, south-facing, Georgian-fronted, Grade II listed, c19th farmhouse.
Property Oracle says ..
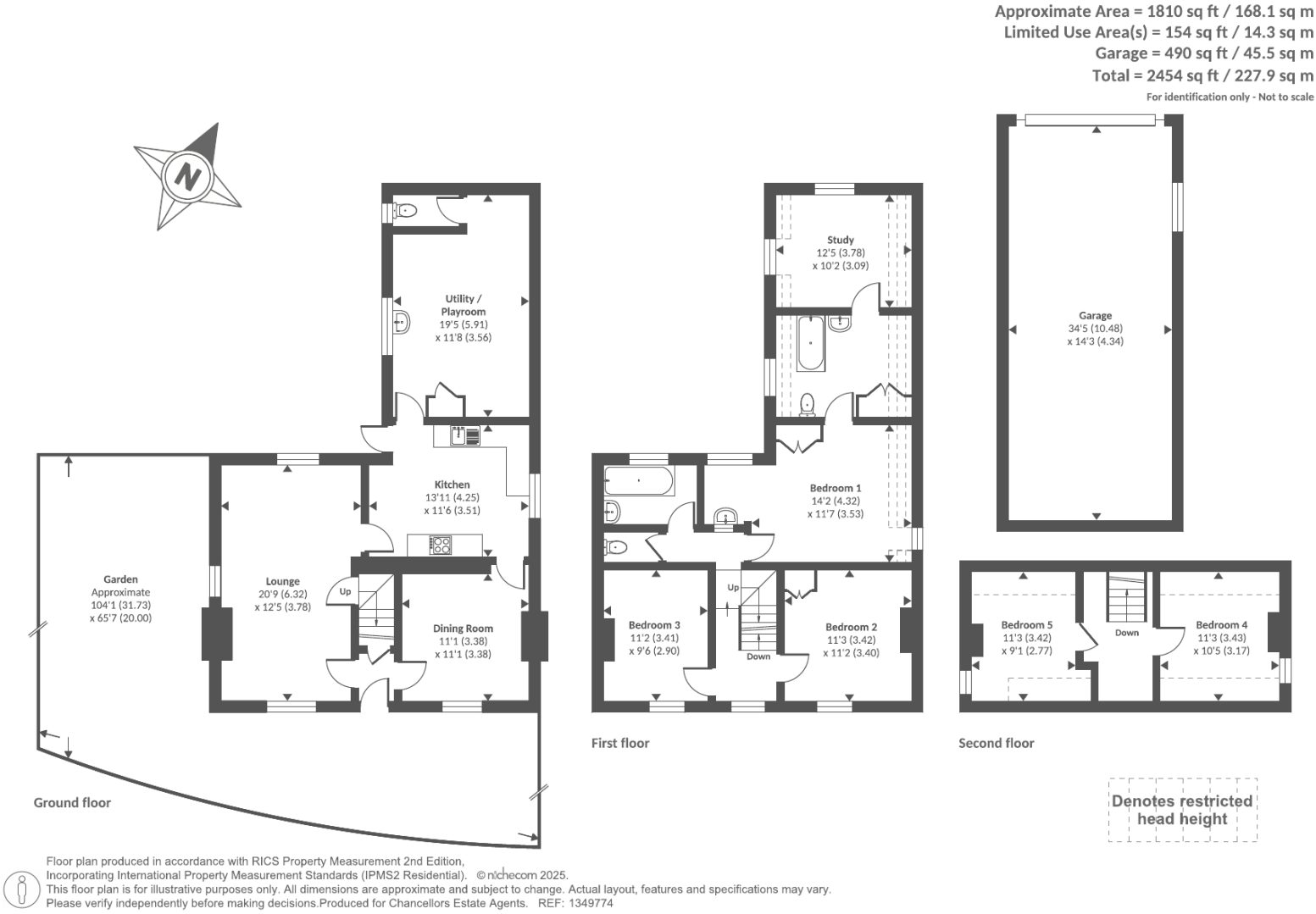
This detached property, located on Orchard Bank in The Rissingtons, Gloucestershire, presents a unique opportunity. The house features five bedrooms and two bathrooms, offering ample space for a family. While the property requires extensive renovation, it boasts a desirable location near an ‘Outstanding’ rated school and a generous garden. The listing price of £900,000 reflects the property’s potential, but prospective buyers should factor in the cost of necessary upgrades.
Therefore, we give this property 5 / 10. *Disclaimer: This is our option and does constitute a recommendation or financial advice. Do your own research. *
- Price
- 5
- Condition
- 3
- Location
- 7
- Land
- 7
- Bedrooms
- 5
- Bathrooms
- 2
The heatmap indicates the level of crime in the area. The color of the heatmap indicates the crime severity and recency.
Metrics Year-on-Year
- Average area value
- 241,538.00 £Decreased by 4.18 %
- Average area rental value
- 846.00 £/moIncreased by 4.19 %
- Est rental Yield
- 4.20 %Increased by 8.53 %
- Crime Rate
- 424.00 %Unchanged by 0.00 %
Agent Activity
Chancellors created the listing.
Nearby Schools
| Name | Type | Ofsted | Distance |
|---|---|---|---|
| The Rissington School | Community School | Outstanding | 0.28 KM |
| Sherborne Church Of England Primary School | Voluntary Controlled School | Good | 4.92 KM |
| The Cotswold Academy | Academy Converter | Outstanding | 6.25 KM |
| Bourton-On-The-Water Primary School | Academy Converter | Good | 6.27 KM |
| Springboard Children'S Centre (Stow) | Children's Centre | 8.32 KM |
Images
Nearby Streets
| Name | Average Price | Average Sqft | Distance |
|---|---|---|---|
| The Yd | £ 600,000 | 0 | 0.00 KM |
| Barn Cottage | £ 0 | 0 | 0.00 KM |
| The Yard | £ 0 | 0 | 0.00 KM |
| Manor Cottages | £ 1,262,500 | 0 | 0.00 KM |
| Westview | £ 0 | 0 | 0.00 KM |
Nearby Listings
| Address | Price | Type | Score | Distance |
|---|---|---|---|---|
| Great Rissington, Gloucestershire, GL54 | £ 900,000 | BUY | 5 / 10 | 0.00 KM |
| Orchard Bank, Great Rissington | £ 600,000 | BUY | 7 / 10 | 0.03 KM |
| Rectory Lane, Great Rissington, Cheltenham | £ 785,000 | BUY | Unknown | 0.07 KM |
| Great Rissington, Cheltenham, Gloucestershire, GL54 | £ 795,000 | BUY | Unknown | 0.25 KM |
| Great Rissington, Cheltenham, GL54 | £ 800,000 | BUY | 7 / 10 | 0.37 KM |
Nearby Properties
| Address | Price | Distance |
|---|---|---|
| 8 Orchard Bank | £ 435,000 | 0.05 KM |
| 7 Orchard Bank | £ 189,950 | 0.05 KM |
| Orchard House | £ 927,000 | 0.05 KM |
| 12 Greens Close | £ 47,500 | 0.20 KM |
| 15 Greens Close | £ 175,000 | 0.20 KM |