HE
1 Brynawel Bryntirion Bridgend CF31 4DL
By Herbert R Thomas
£ 275,000
Reviews
3 out of 5 stars
Herbert R Thomas says ..
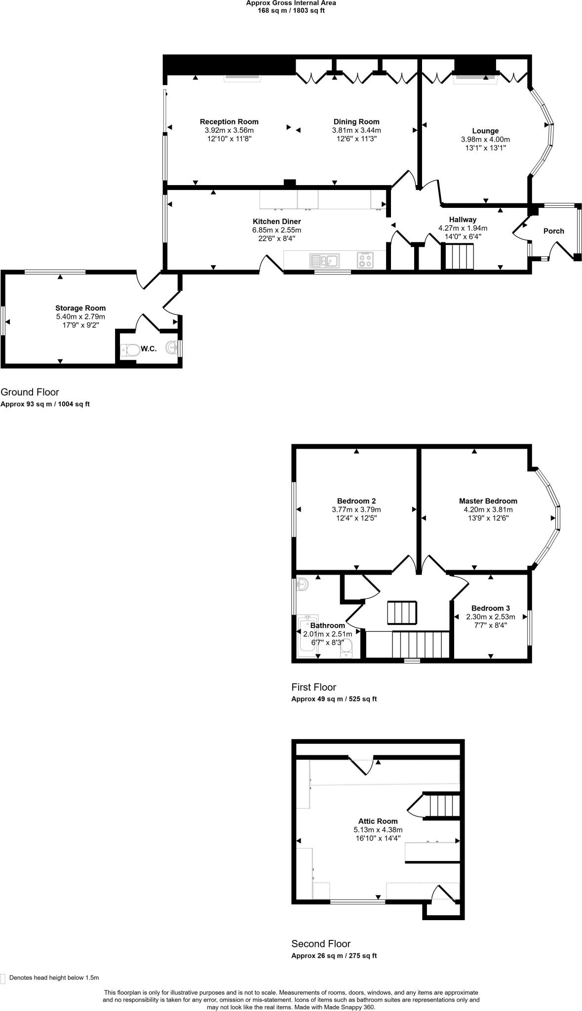
This spacious three bedroom semi-detached property benefits from a rear extension and attic conversion. The property, which has been a well-loved family home for more than 60 years is now available for sale with no ongoing chain. There are two reception rooms and a generous kitchen/dining room....
Property Oracle says ..
Therefore, we give this property 6 / 10. *Disclaimer: This is our option and does constitute a recommendation or financial advice. Do your own research. *
- Price
- 8
- Condition
- 5
- Location
- 7
- Land
- 7
- Bedrooms
- 3
- Bathrooms
- 1
- Sqft (est)
- 1,587.18
The heatmap indicates the level of crime in the area. The color of the heatmap indicates the crime severity and recency.
Metrics Year-on-Year
- Average area value
- 248,072.00 £Decreased by 9.58 %
- Est sale value
- 396,795.00 £Increased by 9.65 %
- Average area rental value
- 998.00 £/moIncreased by 13.41 %
- Est letting value
- 1,587.18 £/mo
- Est rental Yield
- 4.83 %Increased by 25.45 %
- Crime Rate
- 14.00 %Unchanged by 0.00 %
from 274,348.00 £
from 361,877.04 £
from 880.00 £/mo
from 0.00 £/mo
from 3.85 %
from 14.00 %
Agent Activity
Herbert R Thomas created the listing.
Nearby Schools
| Name | Type | Ofsted | Distance |
|---|---|---|---|
| Bryntirion Infants School | Welsh Establishment | 0.17 KM | |
| Llangewydd Junior School | Welsh Establishment | 0.45 KM | |
| Maes Yr Haul Primary School | Welsh Establishment | 0.53 KM | |
| Cefn Glas Infant School | Welsh Establishment | 1.23 KM | |
| Bryntirion Comprehensive School | Welsh Establishment | 1.29 KM |
Images
Nearby Streets
| Name | Average Price | Average Sqft | Distance |
|---|---|---|---|
| Bryn Awel | £ 350,000 | 0 | 0.00 KM |
| Heol-y-Frenhines | £ 195,000 | 0 | 0.00 KM |
| Pen y Bryn | £ 143,000 | 0 | 0.00 KM |
| Philip Avenue | £ 299,950 | 0 | 0.00 KM |
| Bryn Awelon | £ 0 | 0 | 0.00 KM |
Nearby Transport
| Name | NLC | TLC | Distance |
|---|---|---|---|
| Wildmill | 3965 | WMI | 2.81 KM |
| Bridgend | 3809 | BGN | 2.90 KM |
| Sarn | 4270 | SRR | 3.65 KM |
| Tondu | 4271 | TDU | 4.43 KM |
Nearby Listings
| Address | Price | Type | Score | Distance |
|---|---|---|---|---|
| 1 Brynawel Bryntirion Bridgend CF31 4DL | £ 275,000 | BUY | 6 / 10 | 0.00 KM |
| Brynawel, Bridgend | £ 289,995 | BUY | 7 / 10 | 0.03 KM |
| Bryn Golau, Bridgend County Borough, CF31 4DD | £ 375,000 | BUY | 7 / 10 | 0.07 KM |
| Bryntirion Hill, Bridgend County Borough, CF31 4BY | £ 350,000 | BUY | 7 / 10 | 0.08 KM |
| Hillsboro, Bridgend, CF31 | £ 135,000 | BUY | 7 / 10 | 0.12 KM |
Nearby Properties
| Address | Price | Distance |
|---|---|---|
| 9 Brynawel | £ 381,000 | 0.01 KM |
| 12 Brynawel | £ 148,500 | 0.01 KM |
| 8 Brynawel | £ 226,000 | 0.01 KM |
| 15 Brynawel | £ 157,500 | 0.01 KM |
| 110 Oaklands Road | £ 260,000 | 0.15 KM |