NO
Greenhills Close | Knights View, Macclesfield, SK11
By Northwood
£ 415,000
Reviews
4 out of 5 stars
Northwood says ..
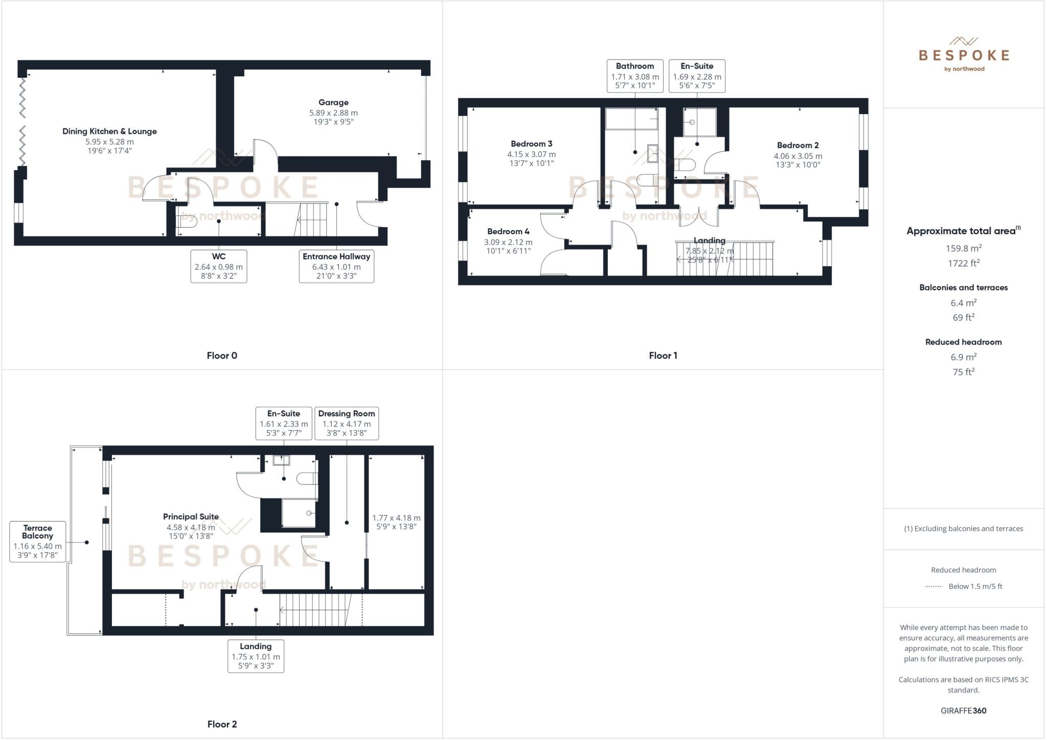
The Knightsley is a spacious three-storey home with four bedrooms, an integral garage, and a private roof terrace. On the ground floor, you’ll f...
Property Oracle says ..
Therefore, we give this property 8 / 10. *Disclaimer: This is our option and does constitute a recommendation or financial advice. Do your own research. *
- Price
- 8
- Condition
- 9
- Location
- 8
- Land
- 7
- Bedrooms
- 4
- Bathrooms
- 3
- Sqft (est)
- 1,620.21
The heatmap indicates the level of crime in the area. The color of the heatmap indicates the crime severity and recency.
Metrics Year-on-Year
- Average area value
- 327,231.00 £Decreased by 0.91 %
- Est sale value
- 763,118.91 £Increased by 45.37 %
- Average area rental value
- 949.00 £/moDecreased by 20.72 %
- Est letting value
- 1,620.21 £/moUnchanged by 0.00 %
- Est rental Yield
- 3.48 %Decreased by 20.00 %
- Crime Rate
- 7.00 %Unchanged by 0.00 %
from 330,241.00 £
from 524,948.04 £
from 1,197.00 £/mo
from 1,620.21 £/mo
from 4.35 %
from 7.00 %
Agent Activity
Northwood created the listing.
Nearby Schools
| Name | Type | Ofsted | Distance |
|---|---|---|---|
| Puss Bank School And Nursery | Academy Converter | 0.70 KM | |
| Hurdsfield Community Primary School | Community School | Requires improvement | 1.63 KM |
| Hurdsfield Children'S Centre | Children's Centre | 1.69 KM | |
| Christ The King Catholic And Church Of England Primary School | Academy Sponsor Led | 1.72 KM | |
| Parkroyal Community School | Academy Converter | Good | 1.99 KM |
Images
Nearby Streets
| Name | Average Price | Average Sqft | Distance |
|---|---|---|---|
| Mount Terrace | £ 190,000 | 0 | 0.00 KM |
| Blakelow Road | £ 465,000 | 0 | 0.00 KM |
| Beech Grove | £ 215,000 | 0 | 0.00 KM |
| Mill Road | £ 0 | 0 | 0.00 KM |
| A536 | £ 0 | 0 | 0.00 KM |
Nearby Transport
| Name | NLC | TLC | Distance |
|---|---|---|---|
| Macclesfield | 2871 | MAC | 0.87 KM |
| Prestbury | 2875 | PRB | 5.42 KM |
| Adlington (Cheshire) | 2939 | ADC | 7.48 KM |
Nearby Listings
| Address | Price | Type | Score | Distance |
|---|---|---|---|---|
| Bank Street, Macclesfield, SK11 | £ 435,000 | BUY | 7 / 10 | 0.00 KM |
| Greenhills Close, Macclesfield, SK11 | £ 400,000 | BUY | 7 / 10 | 0.00 KM |
| Greenhills Close | Knights View, Macclesfield, SK11 | £ 415,000 | BUY | 8 / 10 | 0.00 KM |
| Knights View, Macclesfield, SK11 | £ 350,000 | BUY | 8 / 10 | 0.00 KM |
| The Weavers | Knights View, Macclesfield, SK11 | £ 400,000 | BUY | 7 / 10 | 0.00 KM |
Nearby Properties
| Address | Price | Distance |
|---|---|---|
| 13 Greenhills Close | £ 185,000 | 0.00 KM |
| 21 Greenhills Close | £ 198,950 | 0.00 KM |
| 17 Greenhills Close | £ 275,100 | 0.00 KM |
| 25 Greenhills Close | £ 211,000 | 0.00 KM |
| 23 Greenhills Close | £ 370,000 | 0.00 KM |