86 Woodland Road, Northfield, Birmingham, B31 2HY
By Bond Wolfe
£ 150,000
Reviews
3 out of 5 stars
Bond Wolfe says ..
For Sale By Public Auction 23 October 2025 A vacant freehold three storey semi detached property in need of refurbishment, which may have potential for HMO subject to obtaining the necessary licence
Property Oracle says ..
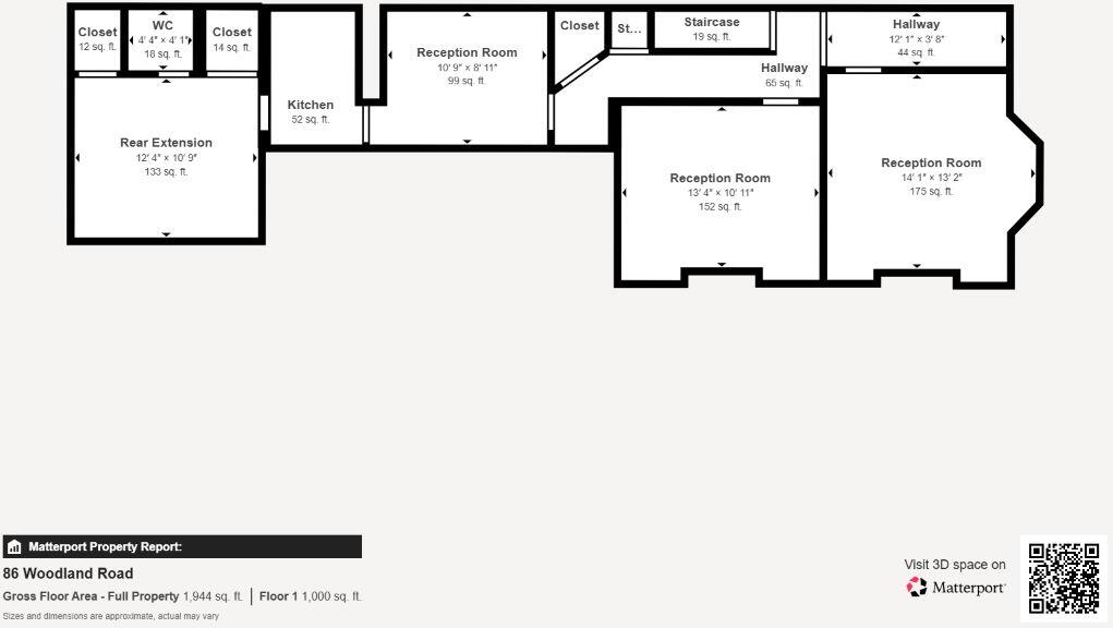
The property is a 5-bedroom semi-detached house located on Woodland Road in Northfield, Birmingham. The property is in poor condition and requires extensive renovation. The property is located close to local amenities, including schools and transportation links. The property has a large garden. The property is listed for £150,000, which is significantly lower than the average price for similar properties in the area. This property presents a significant opportunity for a buyer looking to renovate a property to their own taste and add value.
Therefore, we give this property 6 / 10. *Disclaimer: This is our option and does constitute a recommendation or financial advice. Do your own research. *
- Price
- 9
- Condition
- 2
- Location
- 7
- Land
- 7
- Bedrooms
- 5
- Bathrooms
- 0
- Sqft (est)
- 783.00
The heatmap indicates the level of crime in the area. The color of the heatmap indicates the crime severity and recency.
Metrics Year-on-Year
- Average area value
- 448,325.00 £Decreased by 13.51 %
- Est sale value
- 404,028.00 £Increased by 0.98 %
- Average area rental value
- 1,480.00 £/moDecreased by 11.32 %
- Est letting value
- 783.00 £/moUnchanged by 0.00 %
- Est rental Yield
- 3.96 %Increased by 2.59 %
- Crime Rate
- 3.00 %Unchanged by 0.00 %
Agent Activity
Bond Wolfe created the listing.
Nearby Schools
| Name | Type | Ofsted | Distance |
|---|---|---|---|
| St Laurence Church Junior School | Voluntary Aided School | Good | 0.51 KM |
| St Laurence Church Infant School | Voluntary Aided School | Good | 0.51 KM |
| West Heath Nursery School | Local Authority Nursery School | Good | 1.04 KM |
| The Edge Academy | Free Schools Alternative Provision | Good | 1.09 KM |
| King Edward Vi Northfield School For Girls | Academy Converter | 1.15 KM |
Images
Nearby Streets
| Name | Average Price | Average Sqft | Distance |
|---|---|---|---|
| Church Hill | £ 272,857 | 0 | 0.00 KM |
| Middlemore Road | £ 0 | 0 | 0.00 KM |
| Norton Close | £ 0 | 0 | 0.00 KM |
| Copse Close | £ 273,000 | 0 | 0.00 KM |
| Norman Road | £ 750,000 | 0 | 0.00 KM |
Nearby Transport
| Name | NLC | TLC | Distance |
|---|---|---|---|
| Northfield | 1111 | NFD | 0.40 KM |
| Longbridge | 1110 | LOB | 2.56 KM |
| Kings Norton | 1109 | KNN | 3.41 KM |
| Bournville | 1112 | BRV | 4.44 KM |
| Selly Oak | 1105 | SLY | 4.62 KM |
Nearby Listings
| Address | Price | Type | Score | Distance |
|---|---|---|---|---|
| 86 Woodland Road, Northfield, Birmingham, B31 2HY | £ 150,000 | BUY | 6 / 10 | 0.00 KM |
| Woodland Road, Northfield, Birmingham, West Midlands, B31 | £ 275,000 | BUY | 7 / 10 | 0.06 KM |
| Woodland Road, Northfield, Birmingham, West Midlands, B31 | £ 420,000 | BUY | 7 / 10 | 0.07 KM |
| Woodland Road, Northfield, Birmingham, B31 | £ 250,000 | BUY | Unknown | 0.08 KM |
| Woodland Road, Northfield, Birmingham, B31 | £ 500,000 | BUY | 7 / 10 | 0.08 KM |
Nearby Properties
| Address | Price | Distance |
|---|---|---|
| 90 Woodland Road | £ 202,500 | 0.07 KM |
| 84 Woodland Road | £ 425,000 | 0.07 KM |
| 70 Woodland Road | £ 337,000 | 0.07 KM |
| 92 Woodland Road | £ 195,000 | 0.07 KM |
| 56 Woodland Road | £ 210,000 | 0.07 KM |