11 Mountcastle Drive South, Duddingston, Edinburgh, EH15 1QA
McEwan Fraser Legal logo

11 Mountcastle Drive South, Duddingston, Edinburgh, EH15 1QA

By McEwan Fraser Legal

£ 600,000

Reviews

3 out of 5 stars

McEwan Fraser Legal says ..

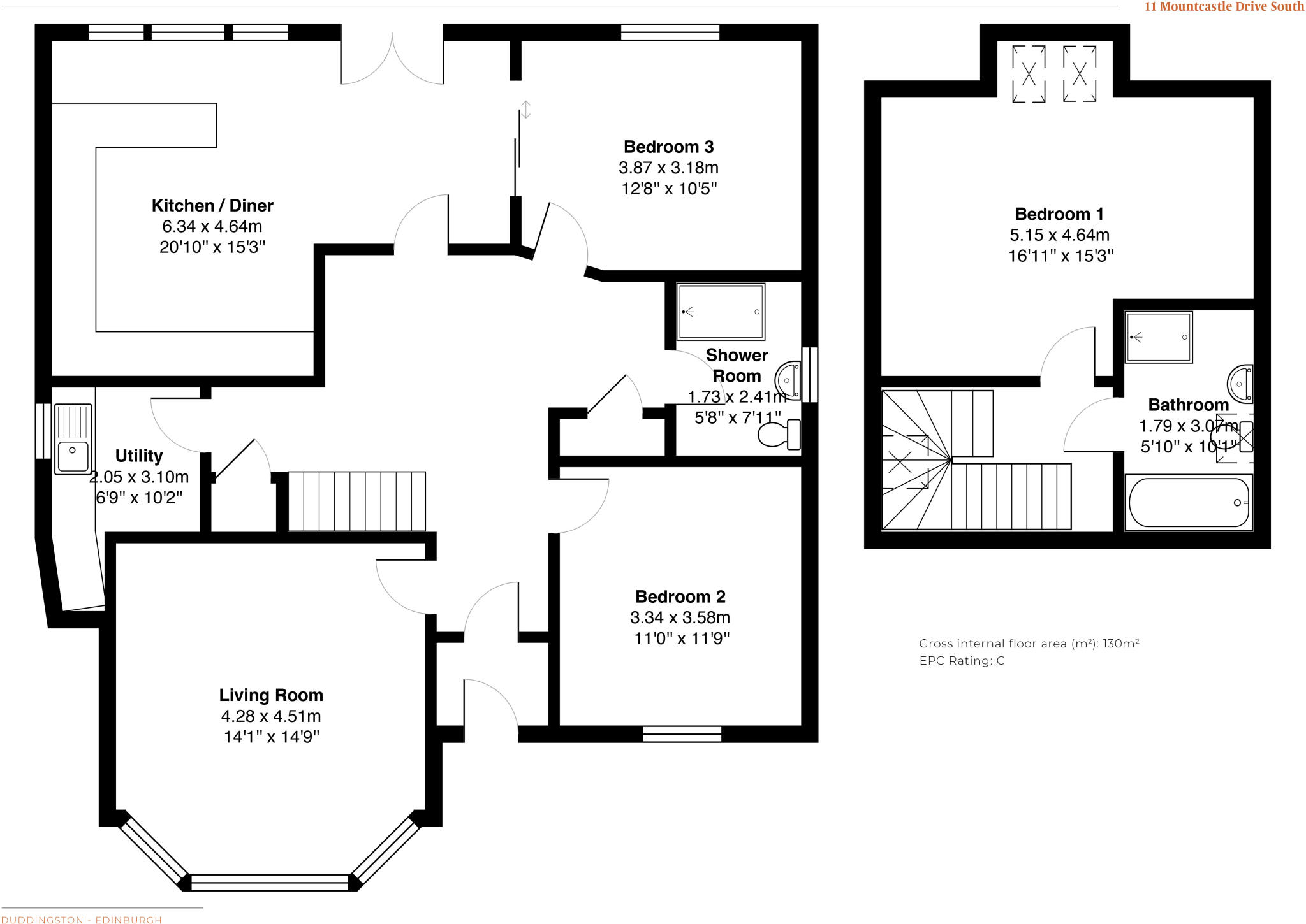
Spacious Three Bedroom Detached Converted Bungalow in Edinburgh's Popular Duddingston/Mountcastle area

Property Oracle says ..

Therefore, we give this property 7 / 10. *Disclaimer: This is our option and does constitute a recommendation or financial advice. Do your own research. *

Price
8
Condition
9
Location
7
Land
7
Bedrooms
3
Bathrooms
2
Sqft (est)
1,399.31

The heatmap indicates the level of crime in the area. The color of the heatmap indicates the crime severity and recency.

Metrics Year-on-Year

Average area value
416,650.00 £
Decreased by 15.87 %
from 495,266.00 £
Est sale value
474,366.09 £
Decreased by 19.29 %
from 587,710.20 £
Average area rental value
2,750.00 £/mo
Increased by 103.70 %
from 1,350.00 £/mo
Est letting value
2,798.62 £/mo
Increased by 100.00 %
from 1,399.31 £/mo
Est rental Yield
7.92 %
Increased by 142.20 %
from 3.27 %
Crime Rate
0.00 %
from 0.00 %

Agent Activity

  • McEwan Fraser Legal created the listing.

Images

MFL2244539_278.jpg MFL2244539_795.jpg MFL2244539_125.jpg MFL2244539_457.jpg MFL2244539_715.jpg MFL2244539_528.jpg MFL2244539_211.jpg MFL2244539_199.jpg MFL2244539_993.jpg MFL2244539_203.jpg MFL2244539_546.jpg MFL2244539_901.jpg MFL2244539_393.jpg MFL2244539_538.jpg MFL2244539_087.jpg MFL2244539_454.jpg MFL2244539_796.jpg MFL2244539_881.jpg MFL2244539_101.jpg MFL2244539_256.jpg MFL2244539_873.jpg MFL2244539_951.jpg MFL2244539_349.jpg MFL2244539_544.jpg MFL2244539_780.jpg MFL2244539_652.jpg MFL2244539_353.jpg MFL2244539_388.jpg MFL2244539_576.jpg MFL2244539_254.jpg

Nearby Streets

NameAverage PriceAverage SqftDistance
Southfield Gardens East £ 000.00 KM
Southfield Bank £ 000.00 KM
Duddingston Square East £ 000.00 KM
Durham Grove £ 000.00 KM
Hamilton Grove £ 340,00000.00 KM

Nearby Transport

NameNLCTLCDistance
Brunstane8807BSU2.60 KM
Newcraighall8808NEW3.96 KM
Shawfair6963SFI5.81 KM
Musselburgh9304MUB5.81 KM
Edinburgh9328EDB7.11 KM

Nearby Listings

AddressPriceTypeScoreDistance
11 Mountcastle Drive South, Duddingston, Edinburgh, EH15 1QA £ 600,000BUY7 / 100.00 KM
Mountcastle Drive South, Edinburgh £ 750,000BUY7 / 100.15 KM
13 Durham Terrace, Edinburgh EH15 1QJ £ 375,000BUY6 / 100.24 KM
10 1f2, Southfield Loan, Edinburgh, EH15 1QR £ 160,000BUY6 / 100.27 KM
5 Durham Grove, Duddingston, EH15 1PX £ 650,000BUY7 / 100.32 KM