Patterson Street, Newton-le-Willows, Merseyside, WA12
By Redwing
£ 80,000
Reviews
2 out of 5 stars
Redwing says ..
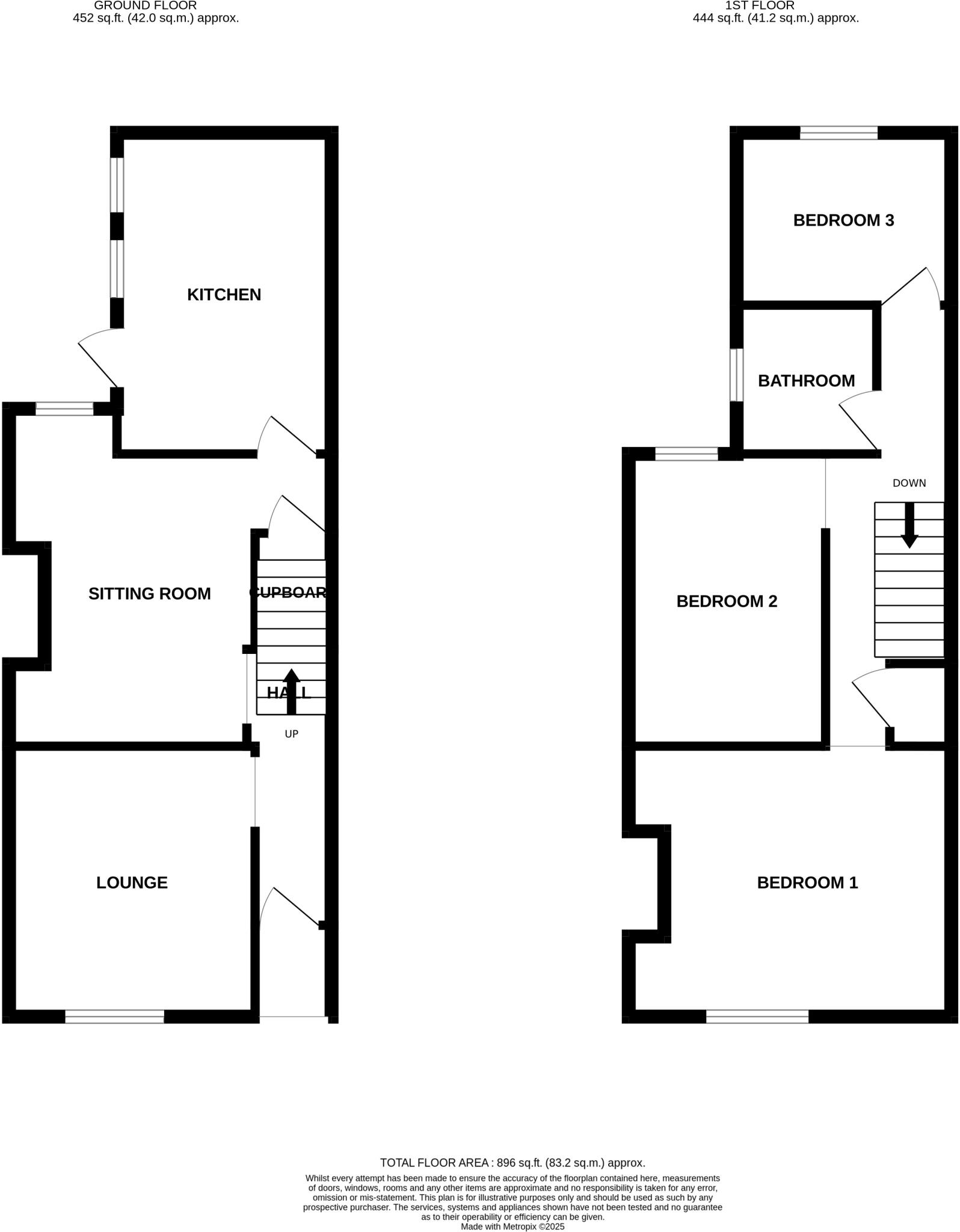
Redwing are offering for sale this traditional three-bedroom mid terraced property, located within Newton-Le-Willows with all amenities and facilities close by. The property will require some updating and improving. Offering a good first time buy or potential investment opportunity. The property ...
Property Oracle says ..
This is a three-bedroom terraced house located on Patterson Street in Earlestown, St. Helens. The property requires significant renovation throughout. The location offers proximity to schools and transportation, but the condition of the property is poor. The asking price of £80,000 reflects the need for extensive work, presenting an opportunity for investors or buyers willing to undertake a renovation project. The property has a small yard.
Therefore, we give this property 5 / 10. *Disclaimer: This is our option and does constitute a recommendation or financial advice. Do your own research. *
- Price
- 9
- Condition
- 2
- Location
- 6
- Land
- 3
- Bedrooms
- 3
- Bathrooms
- 1
- Sqft (est)
- 895.56
The heatmap indicates the level of crime in the area. The color of the heatmap indicates the crime severity and recency.
Metrics Year-on-Year
- Average area value
- 543,800.00 £Increased by 17.00 %
- Est sale value
- 480,915.72 £Increased by 32.27 %
- Average area rental value
- 1,669.00 £/moDecreased by 26.99 %
- Est letting value
- 895.56 £/moDecreased by 50.00 %
- Est rental Yield
- 3.68 %Decreased by 37.63 %
- Crime Rate
- 10.00 %Unchanged by 0.00 %
Agent Activity
Redwing created the listing.
Nearby Schools
| Name | Type | Ofsted | Distance |
|---|---|---|---|
| Newton-Le-Willows Children'S Centre | Children's Centre Linked Site | 0.01 KM | |
| The District Cofe Primary School | Voluntary Controlled School | Good | 0.12 KM |
| St Mary'S Catholic Junior School | Voluntary Aided School | Requires improvement | 0.40 KM |
| St Mary'S Catholic Infant School | Voluntary Aided School | Requires improvement | 0.79 KM |
| Wargrave Cofe Primary School | Voluntary Controlled School | Good | 1.31 KM |
Images
Nearby Streets
| Name | Average Price | Average Sqft | Distance |
|---|---|---|---|
| Derby Close | £ 110,000 | 0 | 0.00 KM |
| Derby Street | £ 0 | 0 | 0.00 KM |
| Barn Way | £ 230,000 | 0 | 0.00 KM |
| The Copse | £ 395,000 | 0 | 0.00 KM |
| Princess Street | £ 0 | 0 | 0.00 KM |
Nearby Transport
| Name | NLC | TLC | Distance |
|---|---|---|---|
| Earlestown | 2292 | ERL | 0.45 KM |
| Newton-Le-Willows | 2257 | NLW | 2.93 KM |
| Bryn | 2222 | BYN | 5.11 KM |
| Garswood | 2335 | GSW | 5.19 KM |
| Warrington West | 6583 | WAW | 6.72 KM |
Nearby Listings
| Address | Price | Type | Score | Distance |
|---|---|---|---|---|
| Patterson Street, Newton-le-Willows, Merseyside, WA12 | £ 80,000 | BUY | 5 / 10 | 0.00 KM |
| Paterson Street, Birkenhead, Merseyside, CH41 | £ 65,000 | BUY | 5 / 10 | 0.00 KM |
| Cross Lane, Newton-Le-Willows, WA12 | £ 285,000 | BUY | 7 / 10 | 0.13 KM |
| Cross Lane, Newton-Le-Willows, WA12 | £ 260,000 | BUY | Unknown | 0.14 KM |
| The Copse, Newton-Le-Willows, WA12 | £ 420,000 | BUY | 7 / 10 | 0.18 KM |
Nearby Properties
| Address | Price | Distance |
|---|---|---|
| 27 Patterson Street | £ 69,000 | 0.01 KM |
| 14 Patterson Street | £ 114,950 | 0.01 KM |
| 2 Patterson Street | £ 104,000 | 0.01 KM |
| 16 Patterson Street | £ 65,500 | 0.01 KM |
| 29 Patterson Street | £ 125,000 | 0.01 KM |