RO
Dale Hill, Blackwell, Bromsgrove, Worcestershire, B60
By Robert Oulsnam & Company
£ 1,695,000
Reviews
3 out of 5 stars
Robert Oulsnam & Company says ..
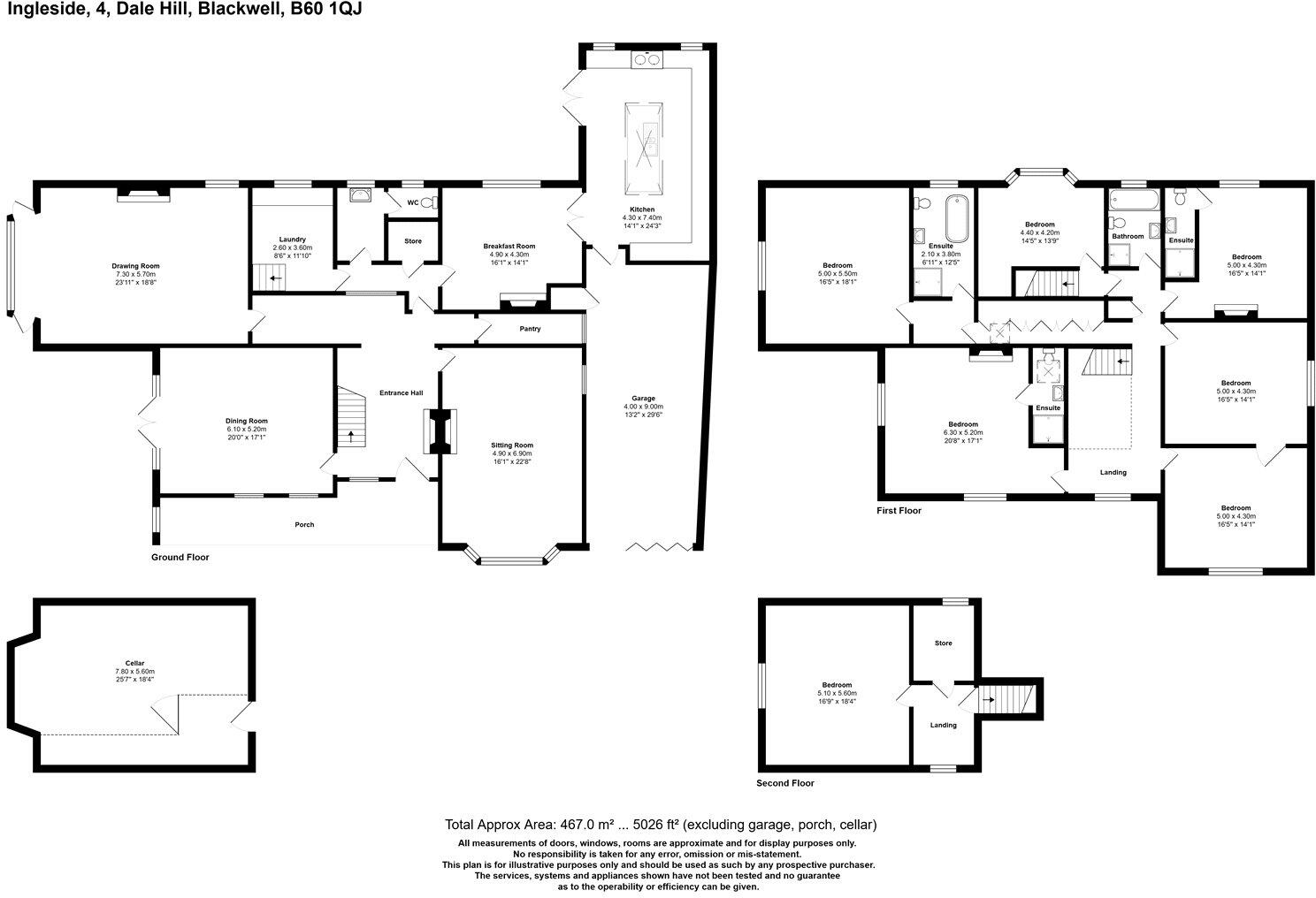
A truly magnificent seven bedroom Victorian residence, situated in the hugely desirable and sought after village of Blackwell. Behind secure electric gates, this stunning property boasts a generous plot, offering a perfect blend of privacy and charm. Finished to an exceptional standard, the home...
Property Oracle says ..
Therefore, we give this property 7 / 10. *Disclaimer: This is our option and does constitute a recommendation or financial advice. Do your own research. *
- Price
- 6
- Condition
- 8
- Location
- 8
- Land
- 9
- Bedrooms
- 7
- Bathrooms
- 0
The heatmap indicates the level of crime in the area. The color of the heatmap indicates the crime severity and recency.
Metrics Year-on-Year
- Average area value
- 956,598.00 £Increased by 11.44 %
- Average area rental value
- 2,934.00 £/moIncreased by 6.69 %
- Est rental Yield
- 3.68 %Decreased by 4.17 %
- Crime Rate
- 3.00 %Unchanged by 0.00 %
from 858,407.00 £
from 2,750.00 £/mo
from 3.84 %
from 3.00 %
Agent Activity
Robert Oulsnam & Company created the listing.
Nearby Schools
| Name | Type | Ofsted | Distance |
|---|---|---|---|
| Blackwell First School | Community School | Outstanding | 0.57 KM |
| Lickey Hills Primary School And Nursery | Community School | Good | 1.99 KM |
| Lickey End First School | Community School | Requires improvement | 2.84 KM |
| St Andrew'S Cofe First School | Voluntary Aided School | Outstanding | 3.42 KM |
| Beaconside Primary And Nursery School | Community School | Good | 3.89 KM |
Images
Nearby Streets
| Name | Average Price | Average Sqft | Distance |
|---|---|---|---|
| The Avenue | £ 925,000 | 0 | 0.00 KM |
| The Glen | £ 232,500 | 0 | 0.00 KM |
| Blackwell Road | £ 0 | 0 | 0.00 KM |
| Woodshill Avenue | £ 0 | 0 | 0.00 KM |
| Lickey Square | £ 425,000 | 0 | 0.00 KM |
Nearby Transport
| Name | NLC | TLC | Distance |
|---|---|---|---|
| Barnt Green | 1096 | BTG | 3.03 KM |
| Bromsgrove | 4715 | BMV | 4.77 KM |
| Alvechurch | 1198 | ALV | 5.77 KM |
| Longbridge | 1110 | LOB | 6.24 KM |
| Northfield | 1111 | NFD | 8.37 KM |
Nearby Listings
| Address | Price | Type | Score | Distance |
|---|---|---|---|---|
| Dale Hill, Blackwell, Bromsgrove, Worcestershire, B60 | £ 1,695,000 | BUY | 7 / 10 | 0.00 KM |
| Dale Hill, Blackwell, B60 | £ 850,000 | BUY | Unknown | 0.10 KM |
| 18 St Catherines Road, Blackwell, B60 | £ 1,500,000 | BUY | 8 / 10 | 0.46 KM |
| The Avenue, Blackwell, B60 | £ 899,000 | BUY | 8 / 10 | 0.50 KM |
| St. Catherines Road, Blackwell, B60 | £ 975,000 | BUY | 8 / 10 | 0.53 KM |
Nearby Properties
| Address | Price | Distance |
|---|---|---|
| 7 Dale Hill | £ 550,000 | 0.01 KM |
| 15 Dale Hill | £ 275,000 | 0.01 KM |
| 21 Dale Hill | £ 1,330,000 | 0.01 KM |
| 12 Dale Hill | £ 425,000 | 0.01 KM |
| 10 Dale Hill | £ 540,000 | 0.01 KM |