Oxford Grove, Ilfracombe, EX34
By John Smale & Co
£ 190,000
Reviews
2 out of 5 stars
John Smale & Co says ..
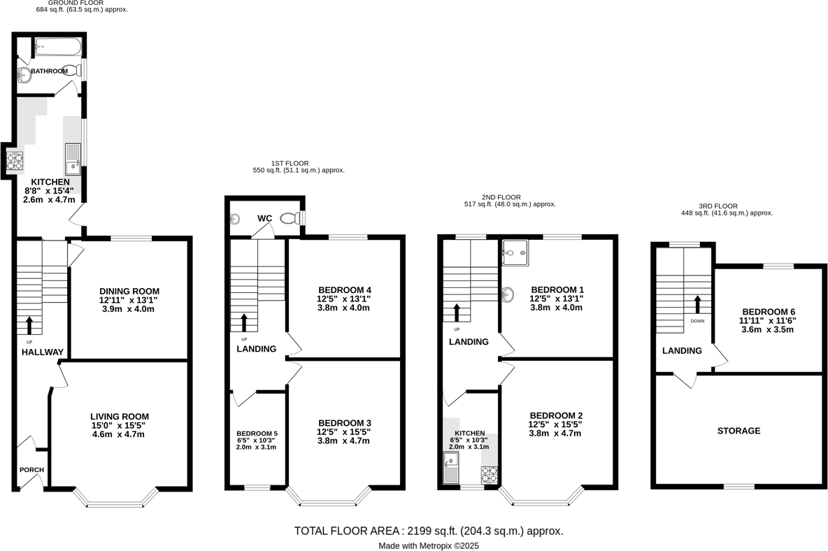
‘P’ FOR ‘POTENTIAL’! Offering incredible value for money, this SIX BEDROOM house with accommodation over FOUR FLOORS is a very rare gem indeed! Ready now for some updating following the last owners long time in residence, this is a real opportunity to add value! Call JO...
Property Oracle says ..
This property is a six-bedroom terraced house located in Ilfracombe, North Devon. The list price is £190,000. The property is in need of significant renovation, as evidenced by the images provided. The average house price in the area is £239,771, with an average price per square foot of £260. This property is 1,703.10 sqft, making the price per sqft approximately £111.50. This is significantly lower than the average price per sqft in the area. However, given the extensive renovations required, the price may be reasonable. The property does benefit from a small rear yard. There are several schools nearby, including Ilfracombe Church Of England Junior School and Ilfracombe Infant And Nursery School, both rated as ‘Good’ by Ofsted.
Therefore, we give this property 4 / 10. *Disclaimer: This is our option and does constitute a recommendation or financial advice. Do your own research. *
- Price
- 6
- Condition
- 3
- Location
- 7
- Land
- 2
- Bedrooms
- 6
- Bathrooms
- 1
- Sqft (est)
- 1,703.10
- Lot (est)
- 2,199.00
The heatmap indicates the level of crime in the area. The color of the heatmap indicates the crime severity and recency.
Metrics Year-on-Year
- Average area value
- 327,409.00 £Increased by 17.57 %
- Est sale value
- 340,620.00 £Decreased by 15.25 %
- Average area rental value
- 1,063.00 £/moIncreased by 27.46 %
- Est letting value
- 0.00 £/mo
- Est rental Yield
- 3.90 %Increased by 8.64 %
- Crime Rate
- 60.00 %Unchanged by 0.00 %
Agent Activity
John Smale & Co marked this listing as sold.
John Smale & Co created the listing.
Nearby Schools
| Name | Type | Ofsted | Distance |
|---|---|---|---|
| Ilfracombe Church Of England Junior School | Voluntary Controlled School | Good | 0.24 KM |
| Braunton Children'S Centre | Children's Centre | 0.37 KM | |
| Ilfracombe Children'S Centre | Children's Centre | 0.37 KM | |
| Ilfracombe Infant And Nursery School | Community School | Good | 0.43 KM |
| The Ilfracombe Church Of England Academy | Academy Sponsor Led | Good | 0.85 KM |
Images
Nearby Streets
| Name | Average Price | Average Sqft | Distance |
|---|---|---|---|
| Cow Lane | £ 0 | 0 | 0.00 KM |
| Meridian Place | £ 0 | 0 | 0.00 KM |
| Springfield Road | £ 234,167 | 0 | 0.00 KM |
| Market Street | £ 215,107 | 0 | 0.00 KM |
| Montpelier Road | £ 325,000 | 0 | 0.00 KM |
Nearby Listings
| Address | Price | Type | Score | Distance |
|---|---|---|---|---|
| Oxford Grove, Ilfracombe, EX34 | £ 190,000 | BUY | 4 / 10 | 0.00 KM |
| Oxford Grove, Ilfracombe, North Devon, EX34 | £ 149,000 | BUY | 5 / 10 | 0.02 KM |
| Oxford Grove, Ilfracombe, Devon, EX34 | £ 150,000 | BUY | 6 / 10 | 0.03 KM |
| Oxford Grove, Ilfracombe, EX34 | £ 65,000 | BUY | 4 / 10 | 0.03 KM |
| Oxford Grove, Ilfracombe, EX34 | £ 95,000 | BUY | 5 / 10 | 0.03 KM |
Nearby Properties
| Address | Price | Distance |
|---|---|---|
| 33 Oxford Grove | £ 60,000 | 0.03 KM |
| 4 Oxford Grove | £ 75,000 | 0.03 KM |
| 3 Oxford Grove | £ 65,000 | 0.03 KM |
| 32 Oxford Grove | £ 158,000 | 0.03 KM |
| 7 Oxford Grove | £ 135,000 | 0.03 KM |