Simmons & Sons says ..
Forming part of a brand new development of 2 houses situated on a large semi-rural plot being constructed by highly renowned local developers, Siloam Construction. Completion expected 1st quarter 2026
Property Oracle says ..
This is a modern, well-presented four-bedroom house in Wokingham Without, Berkshire. The property benefits from a recently renovated interior, including modern bathrooms and a kitchen. While the location is desirable with good schools and reasonable transport links, the asking price appears high compared to the local market. The property includes a garden and is surrounded by trees.
Therefore, we give this property 7 / 10. *Disclaimer: This is our option and does constitute a recommendation or financial advice. Do your own research. *
- Price
- 5
- Condition
- 9
- Location
- 7
- Land
- 7
- Bedrooms
- 4
- Bathrooms
- 3
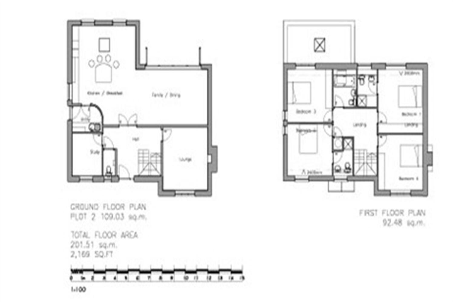
- Sqft (est)
- 2,169.04
The heatmap indicates the level of crime in the area. The color of the heatmap indicates the crime severity and recency.
Metrics Year-on-Year
- Average area value
- 693,125.00 £Increased by 6.96 %
- Est sale value
- 1,353,480.96 £Increased by 48.93 %
- Average area rental value
- 1,250.00 £/moDecreased by 20.94 %
- Est letting value
- 2,169.04 £/moUnchanged by 0.00 %
- Est rental Yield
- 2.16 %Decreased by 26.28 %
- Crime Rate
- 0.00 %
Agent Activity
Simmons & Sons created the listing.
Nearby Schools
| Name | Type | Ofsted | Distance |
|---|---|---|---|
| Saint Sebastians Church Of England Primary School | Academy Converter | Good | 0.42 KM |
| Holme Grange School | Other Independent School | 1.41 KM | |
| Oaklands Infant School | Academy Converter | 1.78 KM | |
| Oaklands Junior School | Academy Converter | 1.78 KM | |
| Hatch Ride Primary School | Academy Converter | 1.89 KM |
Images
Nearby Streets
| Name | Average Price | Average Sqft | Distance |
|---|---|---|---|
| Sweetbriar | £ 0 | 0 | 0.00 KM |
| Holyhook Close | £ 0 | 0 | 0.00 KM |
| Greenside | £ 0 | 0 | 0.00 KM |
| Duchess Close | £ 0 | 0 | 0.00 KM |
| Coppice Gardens | £ 0 | 0 | 0.00 KM |
Nearby Transport
| Name | NLC | TLC | Distance |
|---|---|---|---|
| Crowthorne | 5628 | CRN | 2.14 KM |
| Wokingham | 5696 | WKM | 4.20 KM |
| Sandhurst (Berks) | 5646 | SND | 4.43 KM |
| Blackwater | 5625 | BAW | 7.32 KM |
| Bracknell | 5693 | BCE | 7.62 KM |
Nearby Listings
| Address | Price | Type | Score | Distance |
|---|---|---|---|---|
| Hatch Ride | £ 1,495,000 | BUY | 8 / 10 | 0.00 KM |
| Hatch Ride | £ 1,495,000 | BUY | 7 / 10 | 0.00 KM |
| Heathlands Court, Wokingham, Berkshire, RG40 | £ 550,000 | BUY | 8 / 10 | 0.18 KM |
| Heathlands Court, Wokingham, Wokingham, Berkshire, RG40 | £ 600,000 | BUY | Unknown | 0.18 KM |
| The Clockhouse, Heathlands Road, Wokingham, Berkshire, RG40 3AS | £ 295,000 | BUY | 6 / 10 | 0.19 KM |
Nearby Properties
| Address | Price | Distance |
|---|---|---|
| Heathfield | £ 287,500 | 0.15 KM |
| Sulby Croft | £ 1,550,000 | 0.16 KM |
| 4 Heathlands Court | £ 458,000 | 0.17 KM |
| 14 Heathlands Court | £ 450,000 | 0.17 KM |
| 9 Heathlands Court | £ 910,000 | 0.17 KM |