TH
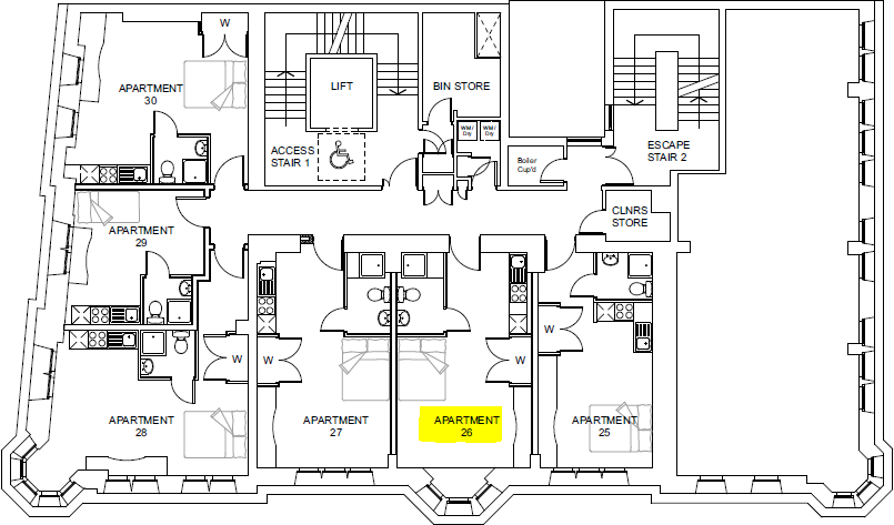
Flat 26, Gladstone Buildings, 1 St James Row, S1 2EU
By Thornsett Properties
£ 700
Thornsett Properties says ..
Located in the prestigious Gladstone Buildings overlooking the Cathedral square, this fantastic studio development offers city views and unique features. The flats are ideal for individuals, couples or sharers, studying at The University of Sheffield, Sheffield Hallam University or Sheffield Inte...
- Bedrooms
- 0
- Bathrooms
- 1
The heatmap indicates the level of crime in the area. The color of the heatmap indicates the crime severity and recency.
Metrics Year-on-Year
- Average area value
- 123,441.00 £Decreased by 13.64 %
- Average area rental value
- 1,222.00 £/moIncreased by 27.69 %
- Est rental Yield
- 11.88 %Increased by 47.95 %
- Crime Rate
- 50.00 %Unchanged by 0.00 %
from 142,936.00 £
from 957.00 £/mo
from 8.03 %
from 50.00 %
Agent Activity
Thornsett Properties created the listing.
Nearby Schools
| Name | Type | Ofsted | Distance |
|---|---|---|---|
| Sheffield Hallam University | Higher Education Institutions | Requires improvement | 0.60 KM |
| Freeman College | Special Post 16 Institution | Good | 0.62 KM |
| Utc Sheffield City Centre | University Technical College | Good | 0.85 KM |
| Astrea Academy Sheffield | Free Schools | 1.22 KM | |
| Springfield Primary School | Community School | Good | 1.27 KM |
Images
Nearby Streets
| Name | Average Price | Average Sqft | Distance |
|---|---|---|---|
| Orchard Square | £ 90,000 | 0 | 0.00 KM |
| Saint James' Street | £ 0 | 0 | 0.00 KM |
| Paradise Street | £ 0 | 0 | 0.00 KM |
| Lee Croft | £ 0 | 0 | 0.00 KM |
| Sims Street | £ 0 | 0 | 0.00 KM |
Nearby Transport
| Name | NLC | TLC | Distance |
|---|---|---|---|
| Sheffield | 6691 | SHF | 1.02 KM |
| Darnall | 6729 | DAN | 6.37 KM |
| Meadowhall | 6663 | MHS | 7.43 KM |
| Dore And Totley | 6690 | DOR | 7.90 KM |
| Chapeltown (South Yorkshire) | 6664 | CLN | 8.88 KM |
Nearby Listings
| Address | Price | Type | Score | Distance |
|---|---|---|---|---|
| Flat 10, Gladstone Buildings, 1 St James Row, S1 2EU | £ 825 | RENT | Unknown | 0.00 KM |
| Flat 20, Gladstone Buildings, 1 St James Row, S1 2EU | £ 800 | RENT | Unknown | 0.00 KM |
| Flat 37, Gladstone Buildings, 1 St James Row, S1 2EU | £ 800 | RENT | Unknown | 0.00 KM |
| Flat 1, Gladstone Buildings, 1 St James Row, S1 2EU | £ 750 | RENT | Unknown | 0.00 KM |
| Flat 31, Gladstone Buildings, 1 St James Row, S1 2EU | £ 850 | RENT | Unknown | 0.00 KM |
Nearby Properties
| Address | Price | Distance |
|---|---|---|
| 1 St Peters Close | £ 204,125 | 0.20 KM |
| 71 Hawley Street | £ 121,000 | 0.31 KM |
| 21a Hawley Street | £ 96,500 | 0.31 KM |
| 99 Hawley Street | £ 114,000 | 0.31 KM |
| 101 Hawley Street | £ 110,000 | 0.31 KM |