Jordan Fishwick says ..
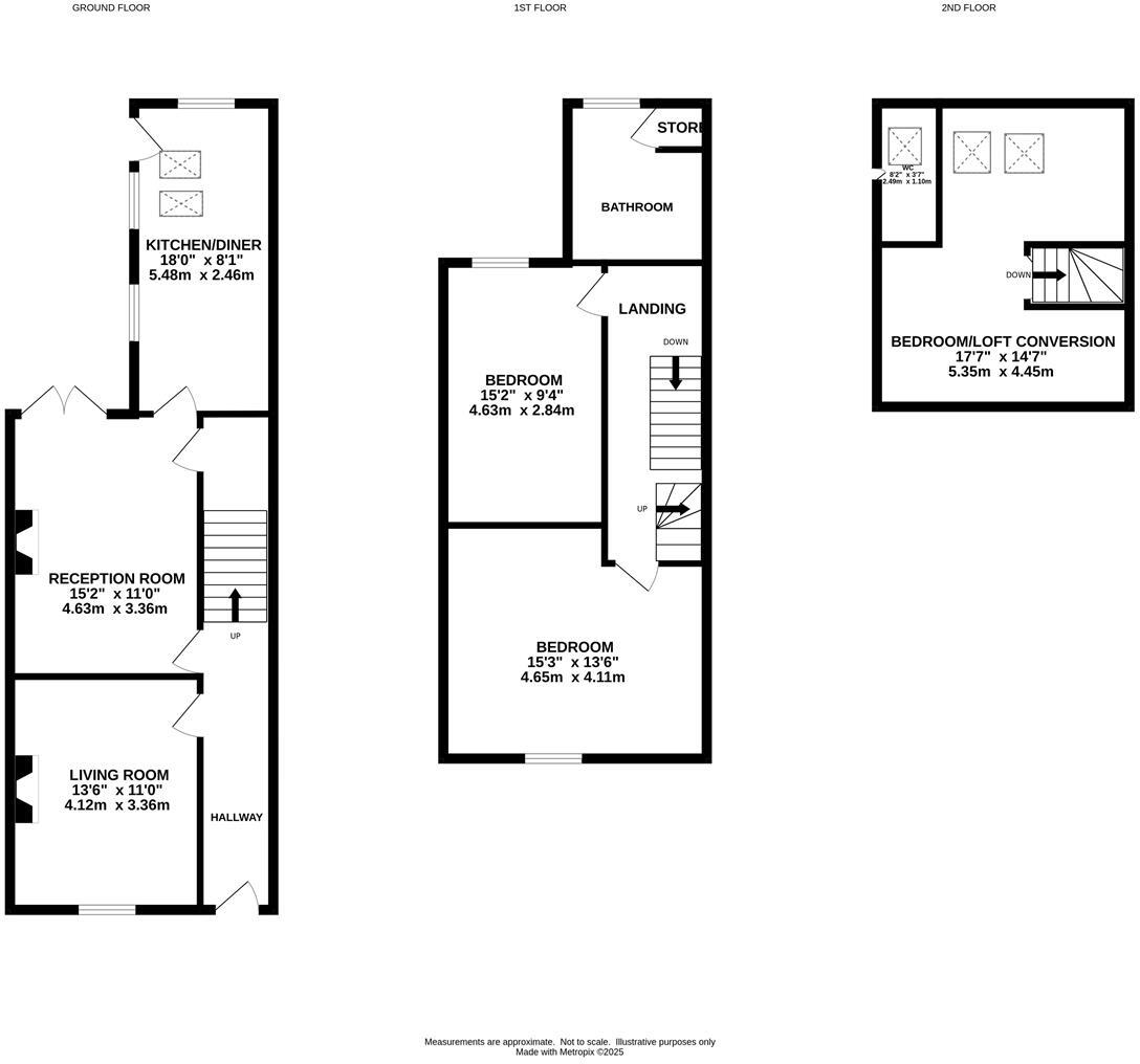
A three bedroom Period semi detached property located within South Wilmslow on the ever popular South Oak Lane. The property consists of an entrance hallway, two separate reception rooms with the living room featuring a fantastic original style fireplace. The rear reception room comprises of a fe...
Property Oracle says ..
This property is a 3-bedroom semi-detached house located in South Oak Lane, Wilmslow. Wilmslow is a desirable town in Cheshire, known for its excellent schools and convenient location. The property itself shows signs of age and would benefit from some modernisation. The small garden is a positive feature. While the list price is slightly below the average for the area, the need for renovations should be considered when evaluating its value.
Therefore, we give this property 6 / 10. *Disclaimer: This is our option and does constitute a recommendation or financial advice. Do your own research. *
- Price
- 7
- Condition
- 6
- Location
- 8
- Land
- 4
- Bedrooms
- 3
- Bathrooms
- 1
The heatmap indicates the level of crime in the area. The color of the heatmap indicates the crime severity and recency.
Metrics Year-on-Year
- Average area value
- 646,257.00 £Increased by 0.56 %
- Average area rental value
- 2,875.00 £/moIncreased by 74.77 %
- Est rental Yield
- 5.34 %Increased by 73.94 %
- Crime Rate
- 6.00 %Unchanged by 0.00 %
Agent Activity
Jordan Fishwick created the listing.
Nearby Schools
| Name | Type | Ofsted | Distance |
|---|---|---|---|
| St Anne'S Fulshaw C Of E Primary School | Voluntary Controlled School | Good | 0.30 KM |
| Ashdene Primary School | Community School | Outstanding | 0.47 KM |
| Gorsey Bank Primary School | Academy Converter | Good | 0.77 KM |
| Pownall Hall School | Other Independent School | 1.35 KM | |
| Wilmslow Preparatory School | Other Independent School | 1.45 KM |
Images
Nearby Streets
| Name | Average Price | Average Sqft | Distance |
|---|---|---|---|
| Sylvan Avenue | £ 0 | 0 | 0.00 KM |
| Regent Park Court | £ 0 | 0 | 0.00 KM |
| Hartford Avenue | £ 0 | 0 | 0.00 KM |
| Ashdene Road | £ 775,000 | 0 | 0.00 KM |
| Beech Lane | £ 622,500 | 0 | 0.00 KM |
Nearby Transport
| Name | NLC | TLC | Distance |
|---|---|---|---|
| Alderley Edge | 2760 | ALD | 2.23 KM |
| Wilmslow | 2774 | WML | 2.27 KM |
| Styal | 2868 | SYA | 3.05 KM |
| Handforth | 2767 | HTH | 4.54 KM |
| Heald Green | 2860 | HDG | 5.43 KM |
Nearby Listings
| Address | Price | Type | Score | Distance |
|---|---|---|---|---|
| South Oak Lane, Wilmslow | £ 499,950 | BUY | 6 / 10 | 0.00 KM |
| South Oak Lane, Wilmslow, Cheshire, SK9 | £ 400,000 | BUY | 7 / 10 | 0.01 KM |
| South Oak Lane, Wilmslow | £ 560,000 | BUY | 7 / 10 | 0.01 KM |
| South Oak Lane, Wilmslow | £ 595,000 | BUY | 8 / 10 | 0.02 KM |
| South Oak Lane, Wilmslow | £ 500,000 | BUY | 7 / 10 | 0.03 KM |
Nearby Properties
| Address | Price | Distance |
|---|---|---|
| 37 South Oak Lane | £ 307,500 | 0.04 KM |
| 21 South Oak Lane | £ 125,750 | 0.04 KM |
| 24 South Oak Lane | £ 395,000 | 0.04 KM |
| 14 South Oak Lane | £ 295,000 | 0.04 KM |
| 32 South Oak Lane | £ 237,500 | 0.04 KM |