LE
Tattenhoe Lane, Bletchley, Milton Keynes
By Leaders Sales
£ 575,000
Reviews
2 out of 5 stars
Leaders Sales says ..
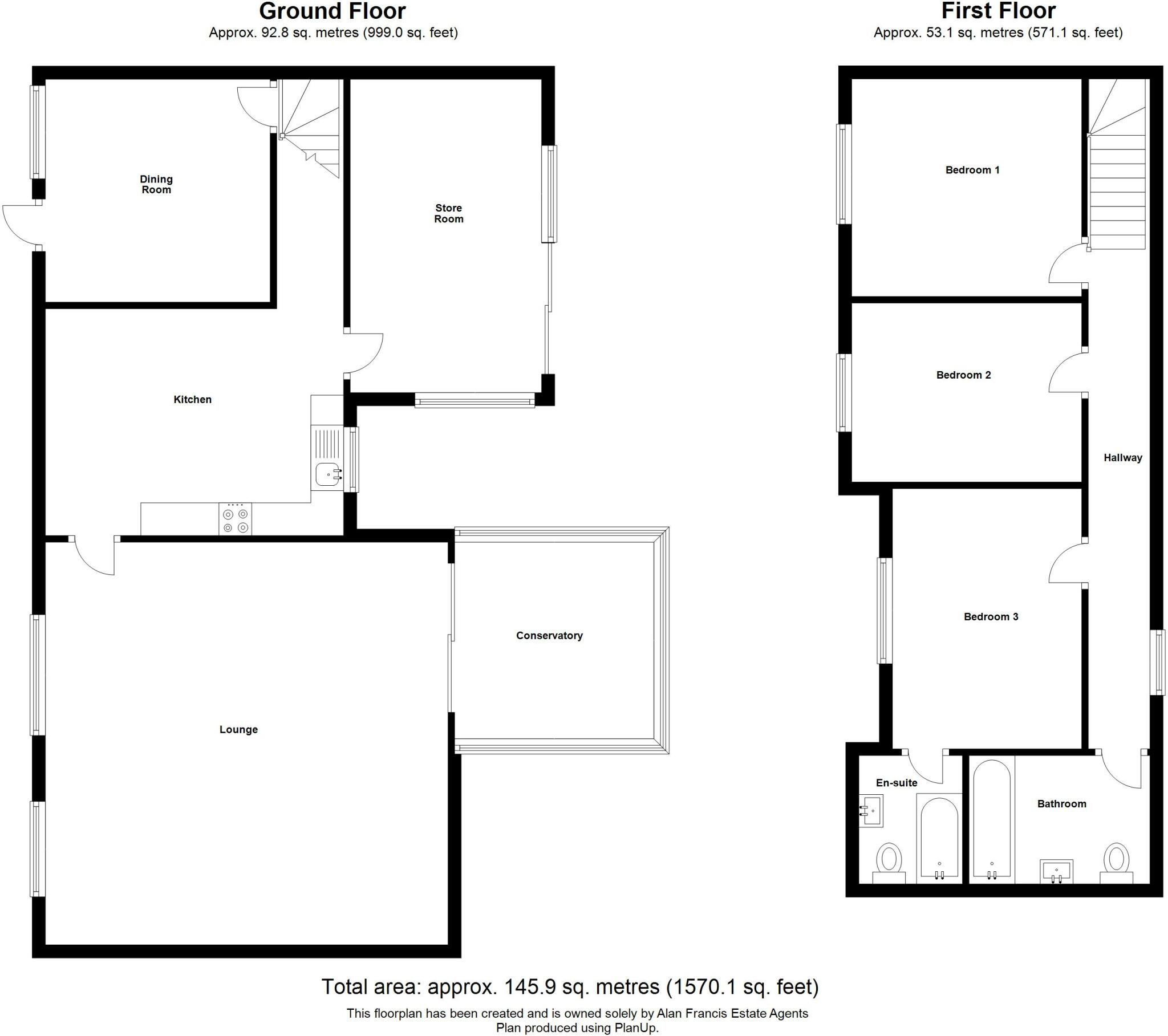
Charming and modern 3-bedroom detached house in a peaceful and secluded location. Enjoy the scenic views from the conservatory and relax in the spacious garden. Off-street parking available. Perfect for those seeking a quiet retreat.
Property Oracle says ..
Therefore, we give this property 5 / 10. *Disclaimer: This is our option and does constitute a recommendation or financial advice. Do your own research. *
- Price
- 4
- Condition
- 5
- Location
- 7
- Land
- 7
- Bedrooms
- 3
- Bathrooms
- 2
- Sqft (est)
- 1,033.34
The heatmap indicates the level of crime in the area. The color of the heatmap indicates the crime severity and recency.
Metrics Year-on-Year
- Average area value
- 448,500.00 £Increased by 31.07 %
- Est sale value
- 633,437.42 £Increased by 79.24 %
- Average area rental value
- 1,209.00 £/moDecreased by 8.41 %
- Est letting value
- 1,033.34 £/moUnchanged by 0.00 %
- Est rental Yield
- 3.23 %Decreased by 30.24 %
- Crime Rate
- 3.00 %Unchanged by 0.00 %
from 342,182.00 £
from 353,402.28 £
from 1,320.00 £/mo
from 1,033.34 £/mo
from 4.63 %
from 3.00 %
Agent Activity
Leaders Sales created the listing.
Nearby Schools
| Name | Type | Ofsted | Distance |
|---|---|---|---|
| Milton Keynes Preparatory School | Other Independent School | 0.45 KM | |
| Howe Park School | Community School | Outstanding | 0.95 KM |
| Emerson Valley School | Community School | Good | 1.08 KM |
| Chestnuts Primary School | Academy Converter | Good | 1.14 KM |
| Sunshine Children'S Centre | Children's Centre | 1.28 KM |
Images
Nearby Streets
| Name | Average Price | Average Sqft | Distance |
|---|---|---|---|
| Muirfield Drive | £ 0 | 0 | 0.00 KM |
| Denham Close | £ 0 | 0 | 0.00 KM |
| Ainsdale Close | £ 0 | 0 | 0.00 KM |
| Taunton Deane redway | £ 0 | 0 | 0.00 KM |
| Temple Close | £ 475,000 | 0 | 0.00 KM |
Nearby Transport
| Name | NLC | TLC | Distance |
|---|---|---|---|
| Bletchley | 1360 | BLY | 3.91 KM |
| Milton Keynes Central | 1378 | MKC | 4.19 KM |
| Fenny Stratford | 1377 | FEN | 6.17 KM |
| Bow Brickhill | 1381 | BWB | 8.40 KM |
| Wolverton | 1364 | WOL | 8.50 KM |
Nearby Listings
| Address | Price | Type | Score | Distance |
|---|---|---|---|---|
| Tattenhoe Lane, Bletchley, Milton Keynes | £ 575,000 | BUY | 5 / 10 | 0.00 KM |
| Denham Close, Bletchley, MK3 | £ 550,000 | BUY | 7 / 10 | 0.21 KM |
| Denham Close, Bletchley, Milton Keynes | £ 450,000 | BUY | 6 / 10 | 0.24 KM |
| Denham Close, Bletchley | £ 450,000 | BUY | Unknown | 0.24 KM |
| Sunningdale Way, Bletchley, Milton Keynes | £ 260,000 | BUY | 7 / 10 | 0.29 KM |
Nearby Properties
| Address | Price | Distance |
|---|---|---|
| 1 Portmarnock Close | £ 262,500 | 0.17 KM |
| 5 Portmarnock Close | £ 232,500 | 0.17 KM |
| 9 Portmarnock Close | £ 390,000 | 0.17 KM |
| 1 Denham Close | £ 331,200 | 0.23 KM |
| 8 Denham Close | £ 436,500 | 0.23 KM |