Downs Barn Boulevard, Downs Barn, Milton Keynes, MK14
By Visum
£ 179,900
Reviews
3 out of 5 stars
Visum says ..
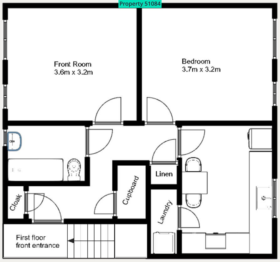
Property number 51084. • Newly Decorated Throughout • one bedroom Apartment • New floors • New kitchen appliances (worth over £3000) • New security fire entrance door • Easy Access to M1 • Good Size Bedroom • Allocated Parking Space • Close Proximity to CMK Shopping District • Quiet ...
Property Oracle says ..
This is a one-bedroom flat located in Downs Barn, Milton Keynes. The property appears to be in good condition, with a modern kitchen and bathroom. It benefits from proximity to local schools and transportation links. While it lacks a private garden, there is communal green space nearby. The asking price seems reasonable for the size and location of the property. The interior has a slightly dated style, but overall, it presents as a well-maintained and liveable space.
Therefore, we give this property 6 / 10. *Disclaimer: This is our option and does constitute a recommendation or financial advice. Do your own research. *
- Price
- 7
- Condition
- 7
- Location
- 7
- Land
- 3
- Bedrooms
- 1
- Bathrooms
- 1
- Sqft (est)
- 78.58
The heatmap indicates the level of crime in the area. The color of the heatmap indicates the crime severity and recency.
Metrics Year-on-Year
- Average area value
- 412,000.00 £Increased by 9.61 %
- Est sale value
- 31,746.32 £Increased by 21.32 %
- Average area rental value
- 1,398.00 £/moDecreased by 1.96 %
- Est letting value
- 78.58 £/moUnchanged by 0.00 %
- Est rental Yield
- 4.07 %Decreased by 10.55 %
- Crime Rate
- 6.00 %Unchanged by 0.00 %
Agent Activity
Visum created the listing.
Nearby Schools
| Name | Type | Ofsted | Distance |
|---|---|---|---|
| Downs Barn School | Community School | Good | 0.77 KM |
| Brooksward School | Foundation School | Good | 0.90 KM |
| St Monica'S Catholic Primary School | Voluntary Aided School | Good | 1.35 KM |
| Southwood School | Foundation School | Good | 1.49 KM |
| Willen Primary School | Community School | Good | 1.55 KM |
Images
Nearby Streets
| Name | Average Price | Average Sqft | Distance |
|---|---|---|---|
| H5 Portway | £ 0 | 0 | 0.00 KM |
| Pelham Place | £ 0 | 0 | 0.00 KM |
| Wheelwright Mews | £ 190,000 | 0 | 0.00 KM |
| Grand Union Broadwalk | £ 0 | 0 | 0.00 KM |
| Encore Roundabout | £ 0 | 0 | 0.00 KM |
Nearby Transport
| Name | NLC | TLC | Distance |
|---|---|---|---|
| Milton Keynes Central | 1378 | MKC | 4.24 KM |
| Bletchley | 1360 | BLY | 6.79 KM |
| Fenny Stratford | 1377 | FEN | 6.89 KM |
| Wolverton | 1364 | WOL | 6.89 KM |
| Bow Brickhill | 1381 | BWB | 7.73 KM |
Nearby Listings
| Address | Price | Type | Score | Distance |
|---|---|---|---|---|
| Downs Barn Boulevard, Downs Barn, Milton Keynes, MK14 | £ 179,900 | BUY | 6 / 10 | 0.00 KM |
| Downs Barn Boulevard, Downs Barn, Milton Keynes, Buckinghamshire, MK14 | £ 155,000 | BUY | 6 / 10 | 0.01 KM |
| Downs Barn Boulevard, Downs Barn, Milton Keynes, Buckinghamshire, MK14 | £ 175,000 | BUY | 6 / 10 | 0.01 KM |
| Loriner Place, Downs Barn, Milton Keynes, MK14 | £ 265,000 | BUY | Unknown | 0.09 KM |
| Chapman Avenue, Milton Keynes | £ 155,000 | BUY | 5 / 10 | 0.10 KM |
Nearby Properties
| Address | Price | Distance |
|---|---|---|
| 235a Downs Barn Boulevard | £ 110,000 | 0.01 KM |
| 231 Downs Barn Boulevard | £ 245,000 | 0.01 KM |
| 237a Downs Barn Boulevard | £ 116,000 | 0.01 KM |
| 235b Downs Barn Boulevard | £ 120,000 | 0.01 KM |
| 62 Chapman Avenue | £ 300,000 | 0.10 KM |