Lavender Grove, York
Churchills Estate Agents logo

Lavender Grove, York

By Churchills Estate Agents

£ 299,995

Reviews

3 out of 5 stars

Churchills Estate Agents says ..

NO ONWARD CHAIN - CUL-DE-SAC LOCATION - EXTENDED GROUND FLOOR - A fabulous two bedroom semi-detached house in this convenient location, close to York City Centre and Acomb Front Street. Benefiting from frequent transport links, nearby amenities and popular schools. Suitable for first time buy...

Property Oracle says ..

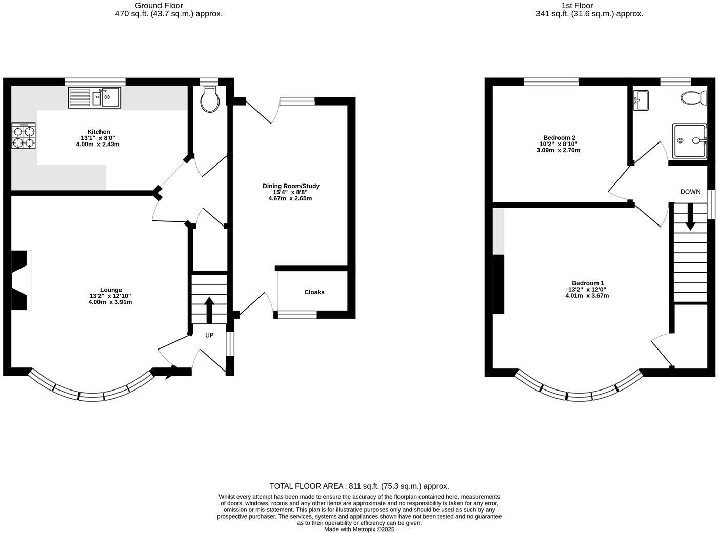
This is a semi-detached property in Holgate, York. The house has two bedrooms and one bathroom, with a total area of 811 sqft. The property benefits from a modern kitchen and bathroom, and a garden with a shed. The location is convenient, with nearby schools and transportation links. The asking price is £299,995, which is slightly above the average for the area but potentially justified by the property’s condition and features.

Therefore, we give this property 7 / 10. *Disclaimer: This is our option and does constitute a recommendation or financial advice. Do your own research. *

Price
7
Condition
8
Location
7
Land
6
Bedrooms
2
Bathrooms
1
Sqft (est)
811.00

The heatmap indicates the level of crime in the area. The color of the heatmap indicates the crime severity and recency.

Metrics Year-on-Year

Average area value
205,714.00 £
Decreased by 35.49 %
from 318,893.00 £
Est sale value
270,063.00 £
Decreased by 12.14 %
from 307,369.00 £
Average area rental value
1,183.00 £/mo
Increased by 12.03 %
from 1,056.00 £/mo
Est letting value
811.00 £/mo
Unchanged by 0.00 %
from 811.00 £/mo
Est rental Yield
6.90 %
Increased by 73.80 %
from 3.97 %
Crime Rate
2.00 %
Unchanged by 0.00 %
from 2.00 %

Agent Activity

  • Churchills Estate Agents created the listing.

Nearby Schools

NameTypeOfstedDistance
Poppleton Road Primary SchoolCommunity SchoolGood0.24 KM
Acomb Primary SchoolAcademy Converter1.25 KM
Carr Junior SchoolAcademy Converter1.27 KM
Carr Children'S CentreChildren's Centre1.27 KM
Carr Infant SchoolCommunity SchoolGood1.45 KM

Images

DSC_1608a.jpg DSC_1523.jpg DSC_1518.jpg DSC_1516.jpg DSC_1528.jpg DSC_1535.jpg DSC_1573.jpg DSC_1558.jpg DSC_1543.jpg DSC_1551.jpg DSC_1555.jpg DSC_1604a.jpg DSC_1613.jpg DSC_1569.jpg DSC_1563.jpg DSC_1462.jpg DSC_1476.jpg DSC_1483.jpg DSC_1501.jpg DSC_1508.jpg DSC_1593.jpg DSC_1602.jpg DSC_1486.jpg DSC_1578.jpg DSC_1583.jpg DSC_1589.jpg DSC_1468.jpg DSC_1471.jpg

Nearby Streets

NameAverage PriceAverage SqftDistance
Ouse Acres £ 000.00 KM
Thompson Place £ 000.00 KM
Glebe Avenue £ 000.00 KM
Woodlea Grove £ 000.00 KM
Fairfax Close £ 120,00000.00 KM

Nearby Transport

NameNLCTLCDistance
York8263YRK2.65 KM
Poppleton8254POP3.79 KM

Nearby Listings

AddressPriceTypeScoreDistance
Lavender Grove, York £ 299,995BUY7 / 100.00 KM
Lavender Grove, York, YO26 5RX £ 325,000BUY7 / 100.04 KM
Lavender Grove, Acomb, York £ 325,000BUY7 / 100.05 KM
Manor Drive North, York £ 475,000BUY7 / 100.24 KM
Poppleton Road, Holgate, York YO26 4UW £ 280,000BUY6 / 100.29 KM

Nearby Properties

AddressPriceDistance
20 Lavender Grove £ 189,5000.05 KM
12 Lavender Grove £ 212,0000.05 KM
7 Lavender Grove £ 155,0000.05 KM
29 Lavender Grove £ 275,0000.05 KM
28 Lavender Grove £ 215,0000.05 KM