Higher Marsh Row, Exminster
WE

Higher Marsh Row, Exminster

By West of Exe

£ 700,000

Reviews

3 out of 5 stars

West of Exe says ..

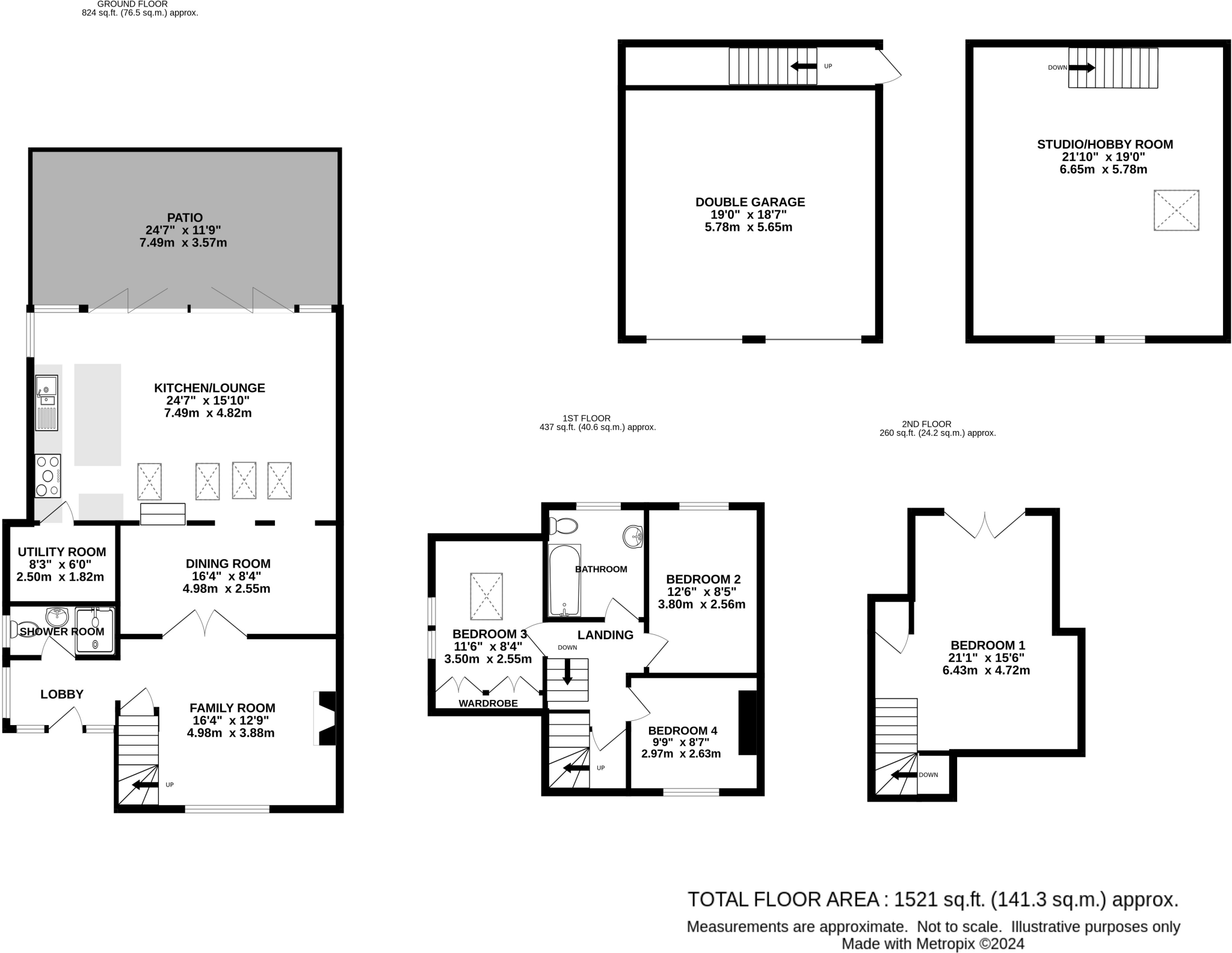
This remarkable four bed semi-detached period cottage dates back to the late 18th century, constructed from local red sandstone. This exceptional home has been thoughtfully extended and completely refurbished to an impeccable standard, seamlessly blending historic charm with modern luxury. The pr...

Property Oracle says ..

This property is located in Higher Marsh Row, Exminster, Devon, a village in the Kenn Valley. The location benefits from being relatively close to the town of Exeter, with good access to transportation links via nearby train stations. There are also a number of schools in the area, including Exminster Community Primary School which is rated as “Good” by Ofsted. The property itself is a large detached house with a significant plot size, offering ample outdoor space. The house appears to be in excellent condition, having undergone recent renovations or extensions. The property includes a modern kitchen, multiple bathrooms, and multiple bedrooms. The list price is significantly higher than the average price for the area, however, given the size, condition, and plot size, it is within a reasonable range for a property of this type in this location.

Therefore, we give this property 7 / 10. *Disclaimer: This is our option and does constitute a recommendation or financial advice. Do your own research. *

Price
6
Condition
9
Location
7
Land
8
Bedrooms
4
Bathrooms
2
Sqft (est)
2,471.35
Lot (est)
1,521.00

The heatmap indicates the level of crime in the area. The color of the heatmap indicates the crime severity and recency.

Metrics Year-on-Year

Average area value
287,463.00 £
Decreased by 27.54 %
from 396,735.00 £
Est sale value
832,844.95 £
Increased by 8.71 %
from 766,118.50 £
Average area rental value
1,250.00 £/mo
Decreased by 10.65 %
from 1,399.00 £/mo
Est letting value
2,471.35 £/mo
Unchanged by 0.00 %
from 2,471.35 £/mo
Est rental Yield
5.22 %
Increased by 23.40 %
from 4.23 %
Crime Rate
17.00 %
Unchanged by 0.00 %
from 17.00 %

Agent Activity

  • West of Exe created the listing.

Nearby Schools

NameTypeOfstedDistance
The New SchoolOther Independent School1.81 KM
Exminster Community PrimaryCommunity SchoolGood1.81 KM
The Topsham SchoolCommunity SchoolGood2.43 KM
Countess Wear ExeterChildren's Centre3.20 KM
Countess Wear Community SchoolCommunity SchoolRequires improvement3.25 KM

Images

1 Higher Marsh Ro... 1 Higher Marsh Ro... 1 Higher Marsh Ro... 1 Higher Marsh Ro... 1 Higher Marsh Ro... 1 Higher Marsh Ro... 1 Higher Marsh Ro... 1 Higher Marsh Ro... 1 Higher Marsh Ro... 1 Higher Marsh Ro... 1 Higher Marsh Ro... 1 Higher Marsh Ro... 1 Higher Marsh Ro... 1 Higher Marsh Ro... 1 Higher Marsh Ro... 1 Higher Marsh Ro... 1 Higher Marsh Ro... 1 Higher Marsh Ro... 1 Higher Marsh Ro... 1 Higher Marsh Ro...

Nearby Streets

NameAverage PriceAverage SqftDistance
River View Terrace £ 310,00000.00 KM
Lower Duck Street £ 295,00000.00 KM
Hill Crest £ 275,00000.00 KM

Nearby Transport

NameNLCTLCDistance
Topsham5758TOP2.87 KM
Newcourt9589NCO4.19 KM
Exton5760EXN4.38 KM
Lympstone Commando5762LYC4.80 KM
Digby And Sowton5753DIG5.13 KM

Nearby Listings

AddressPriceTypeScoreDistance
Higher Marsh Row, Exminster £ 700,000BUY7 / 100.00 KM
Sentrys Orchard, Exminster, EX6 £ 350,000BUY6 / 100.83 KM
Sentrys Orchard, Exminster £ 265,000BUY6 / 100.83 KM
61 Sentrys Orchard, Exminster, Exeter, EX6 £ 340,000BUY8 / 100.83 KM
Sentrys Orchard, Exminster, Exeter, Devon, EX6 £ 118,000BUY7 / 100.86 KM

Nearby Properties

AddressPriceDistance
11 Sentrys Orchard £ 250,7500.84 KM
17 Sentrys Orchard £ 296,5000.84 KM
51 Sentrys Orchard £ 310,0000.84 KM
35 Sentrys Orchard £ 315,0000.84 KM
2 Ducks Orchard £ 475,0000.84 KM