Chancellors says ..
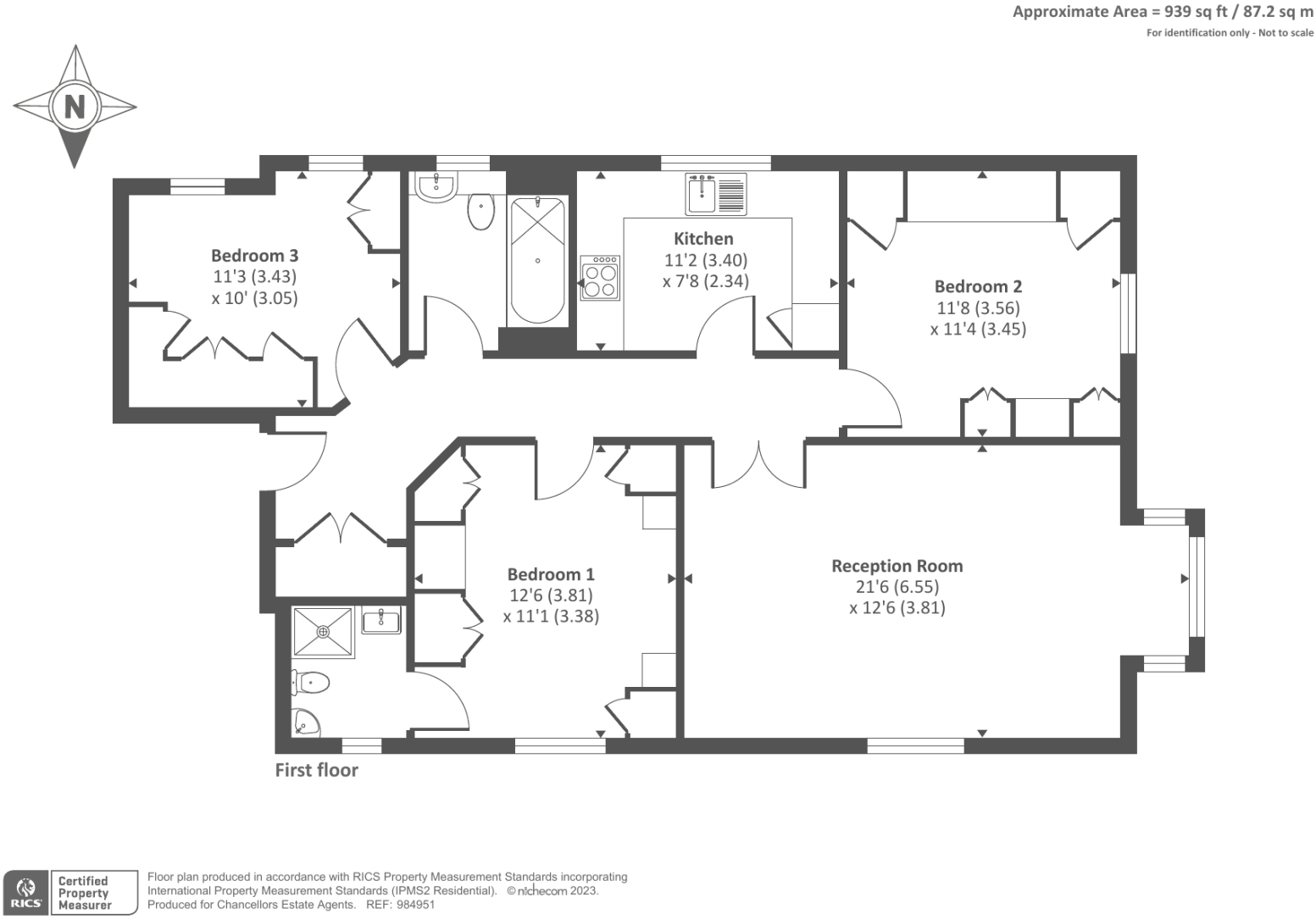
A fantastic three bedroom top floor apartment with spacious accommodation, which benefits from a pleasant southern and westerly aspect and includes a large private loft and airing cupboard. Additional benefits include en-suite to the master bedroom, secure gated parking and a share of the freehold.
Property Oracle says ..
This three-bedroom apartment on the High Road in Whetstone offers a convenient location with good access to transport links and local amenities, including well-regarded schools. The interior, while clean and habitable, shows a dated style and would benefit from a modernisation to enhance its appeal. The property’s lack of outdoor space is a significant drawback. The list price of £675,000 seems reasonably competitive considering similar properties in the vicinity, however a lack of outdoor space would depress the value slightly. Buyers should carefully weigh the advantages of the location and access to amenities against the need for renovation and the absence of a garden. More precise information on the square footage of the property and comparable properties would assist in a more precise valuation. The nearby listings suggest a range of prices, highlighting the importance of in-person viewings to accurately assess the property’s condition and market worth.
Therefore, we give this property 5 / 10. *Disclaimer: This is our option and does constitute a recommendation or financial advice. Do your own research. *
- Price
- 7
- Condition
- 6
- Location
- 7
- Land
- 1
- Bedrooms
- 3
- Bathrooms
- 2
- Sqft (est)
- 939.00
The heatmap indicates the level of crime in the area. The color of the heatmap indicates the crime severity and recency.
Metrics Year-on-Year
- Average area value
- 461,429.00 £Increased by 13.94 %
- Est sale value
- 518,328.00 £Increased by 13.58 %
- Average area rental value
- 1,822.00 £/moIncreased by 0.77 %
- Est letting value
- 1,878.00 £/moUnchanged by 0.00 %
- Est rental Yield
- 4.74 %Decreased by 11.57 %
- Crime Rate
- 6.00 %Unchanged by 0.00 %
Agent Activity
Chancellors created the listing.
Nearby Schools
| Name | Type | Ofsted | Distance |
|---|---|---|---|
| St John'S Cofe Primary School | Voluntary Aided School | Good | 0.30 KM |
| Finchley Catholic High School | Voluntary Aided School | Good | 0.45 KM |
| Alma Primary | Free Schools | Good | 0.50 KM |
| Woodside School | Other Independent Special School | 0.70 KM | |
| Queenswell Junior School | Community School | Good | 0.84 KM |
Images
Nearby Streets
| Name | Average Price | Average Sqft | Distance |
|---|---|---|---|
| High Road | £ 0 | 0 | 0.00 KM |
| Woodside Court | £ 850,000 | 0 | 0.00 KM |
| Lawrence Campe Close | £ 0 | 0 | 0.00 KM |
| Oakleigh Road North | £ 485,000 | 0 | 0.00 KM |
| Castle Mews | £ 0 | 0 | 0.00 KM |
Nearby Transport
| Name | NLC | TLC | Distance |
|---|---|---|---|
| Oakleigh Park | 6020 | OKL | 1.93 KM |
| New Barnet | 6018 | NBA | 2.77 KM |
| New Southgate | 6019 | NSG | 3.91 KM |
| Hadley Wood | 6075 | HDW | 4.95 KM |
| Bowes Park | 6027 | BOP | 6.52 KM |
Nearby Listings
| Address | Price | Type | Score | Distance |
|---|---|---|---|---|
| High Road, Whetstone, N20 | £ 675,000 | BUY | 5 / 10 | 0.00 KM |
| High Road, Whetstone, London, N20 | £ 450,000 | BUY | Unknown | 0.01 KM |
| High Road, Whetstone, London, N20 | £ 425,000 | BUY | Unknown | 0.01 KM |
| High Road, London, N20 | £ 425,000 | BUY | Unknown | 0.02 KM |
| High Road, London, N20 | £ 700,000 | BUY | 7 / 10 | 0.03 KM |
Nearby Properties
| Address | Price | Distance |
|---|---|---|
| 1023 High Road | £ 360,000 | 0.08 KM |
| 1021 High Road | £ 405,000 | 0.08 KM |
| 1013 High Road | £ 64,000 | 0.08 KM |
| 1009c High Road | £ 215,000 | 0.08 KM |
| 1056 High Road | £ 105,000 | 0.12 KM |