Woodside Grove, Woodside Park, N12
By So Home London
£ 520,000
Reviews
3 out of 5 stars
So Home London says ..
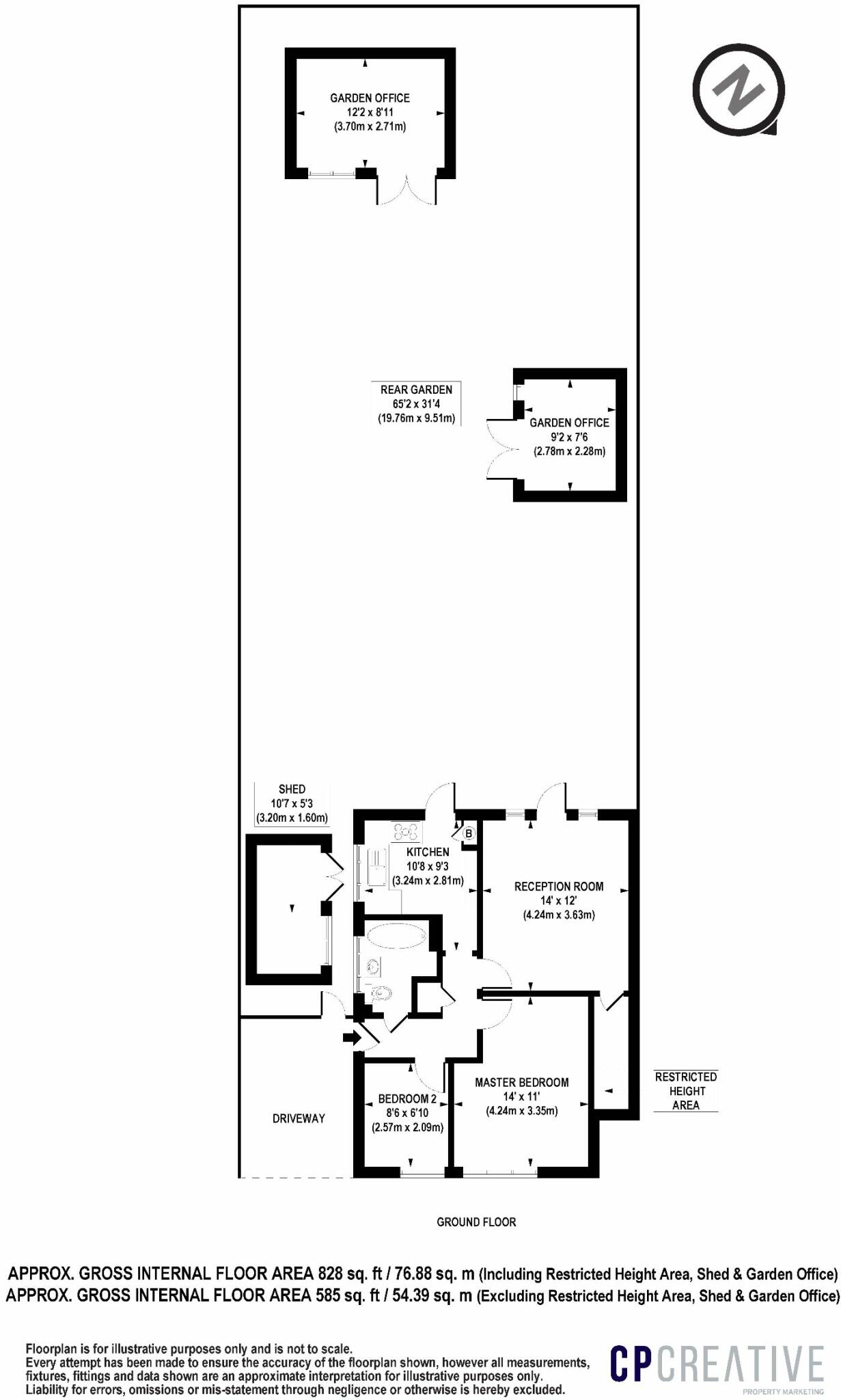
A well-presented two bedroom maisonette with a large garden in a sought after location in Woodside Park.
Property Oracle says ..
This two-bedroom maisonette in Woodside Grove, Woodside Park, N12, presents as a well-maintained and updated property. The images showcase a modern interior with a fresh, updated aesthetic. The kitchen and bathroom appear to be recently renovated, with modern fittings and fixtures. Both bedrooms are of a reasonable size, adequately furnished, and benefit from natural light. The living space is open-plan, connecting the dining area with the lounge which opens onto the significant rear garden. This garden is a notable feature, featuring ample space for both relaxation and potential for further landscaping or development. The property’s location offers access to local schools and transport, though further details on the convenience and quality of local amenities would be beneficial. The price point must be further investigated against current market data for precise assessment. The property would appeal to those seeking a move-in ready home with a good-sized garden in this popular north London location.
Therefore, we give this property 7 / 10. *Disclaimer: This is our option and does constitute a recommendation or financial advice. Do your own research. *
- Price
- 7
- Condition
- 8
- Location
- 7
- Land
- 8
- Bedrooms
- 2
- Bathrooms
- 1
- Sqft (est)
- 827.53
- Lot (est)
- 2,032.76
The heatmap indicates the level of crime in the area. The color of the heatmap indicates the crime severity and recency.
Metrics Year-on-Year
- Average area value
- 461,429.00 £Increased by 13.94 %
- Est sale value
- 456,796.56 £Increased by 13.58 %
- Average area rental value
- 1,822.00 £/moIncreased by 0.77 %
- Est letting value
- 1,655.06 £/moUnchanged by 0.00 %
- Est rental Yield
- 4.74 %Decreased by 11.57 %
- Crime Rate
- 7.00 %Unchanged by 0.00 %
Agent Activity
So Home London marked this listing as sold.
So Home London created the listing.
Nearby Schools
| Name | Type | Ofsted | Distance |
|---|---|---|---|
| Finchley Catholic High School | Voluntary Aided School | Good | 0.28 KM |
| St John'S Cofe Primary School | Voluntary Aided School | Good | 0.54 KM |
| Woodside School | Other Independent Special School | 0.65 KM | |
| Northside Primary School | Community School | Outstanding | 0.68 KM |
| Alma Primary | Free Schools | Good | 0.77 KM |
Images
Nearby Streets
| Name | Average Price | Average Sqft | Distance |
|---|---|---|---|
| Woodside Court | £ 850,000 | 0 | 0.00 KM |
| High Road | £ 0 | 0 | 0.00 KM |
| Coleridge Road | £ 0 | 0 | 0.00 KM |
| Station Approach | £ 0 | 0 | 0.00 KM |
| Castle Mews | £ 0 | 0 | 0.00 KM |
Nearby Transport
| Name | NLC | TLC | Distance |
|---|---|---|---|
| Oakleigh Park | 6020 | OKL | 2.21 KM |
| New Barnet | 6018 | NBA | 3.01 KM |
| New Southgate | 6019 | NSG | 4.02 KM |
| Hadley Wood | 6075 | HDW | 5.18 KM |
| Bowes Park | 6027 | BOP | 6.62 KM |
Nearby Listings
| Address | Price | Type | Score | Distance |
|---|---|---|---|---|
| Woodside Grove, North Finchley, N12 | £ 895,000 | BUY | 6 / 10 | 0.03 KM |
| Inkwell Close, Woodside Park, London, N12 | £ 400,000 | BUY | 5 / 10 | 0.04 KM |
| Woodside Grove, London | £ 1,150,000 | BUY | 5 / 10 | 0.05 KM |
| Woodside Lane, Woodside Park, N12 | £ 345,000 | BUY | 5 / 10 | 0.06 KM |
| Inkwell Close, Woodside Park, N12 | £ 450,000 | BUY | 7 / 10 | 0.07 KM |
Nearby Properties
| Address | Price | Distance |
|---|---|---|
| 27 Woodside Grove | £ 234,950 | 0.01 KM |
| 19 Woodside Grove | £ 395,000 | 0.01 KM |
| 3 Woodside Grove | £ 300,000 | 0.01 KM |
| 9d Woodside Grove | £ 250,000 | 0.04 KM |
| 9a Woodside Grove | £ 215,000 | 0.04 KM |