Nicholls Tyreman says ..
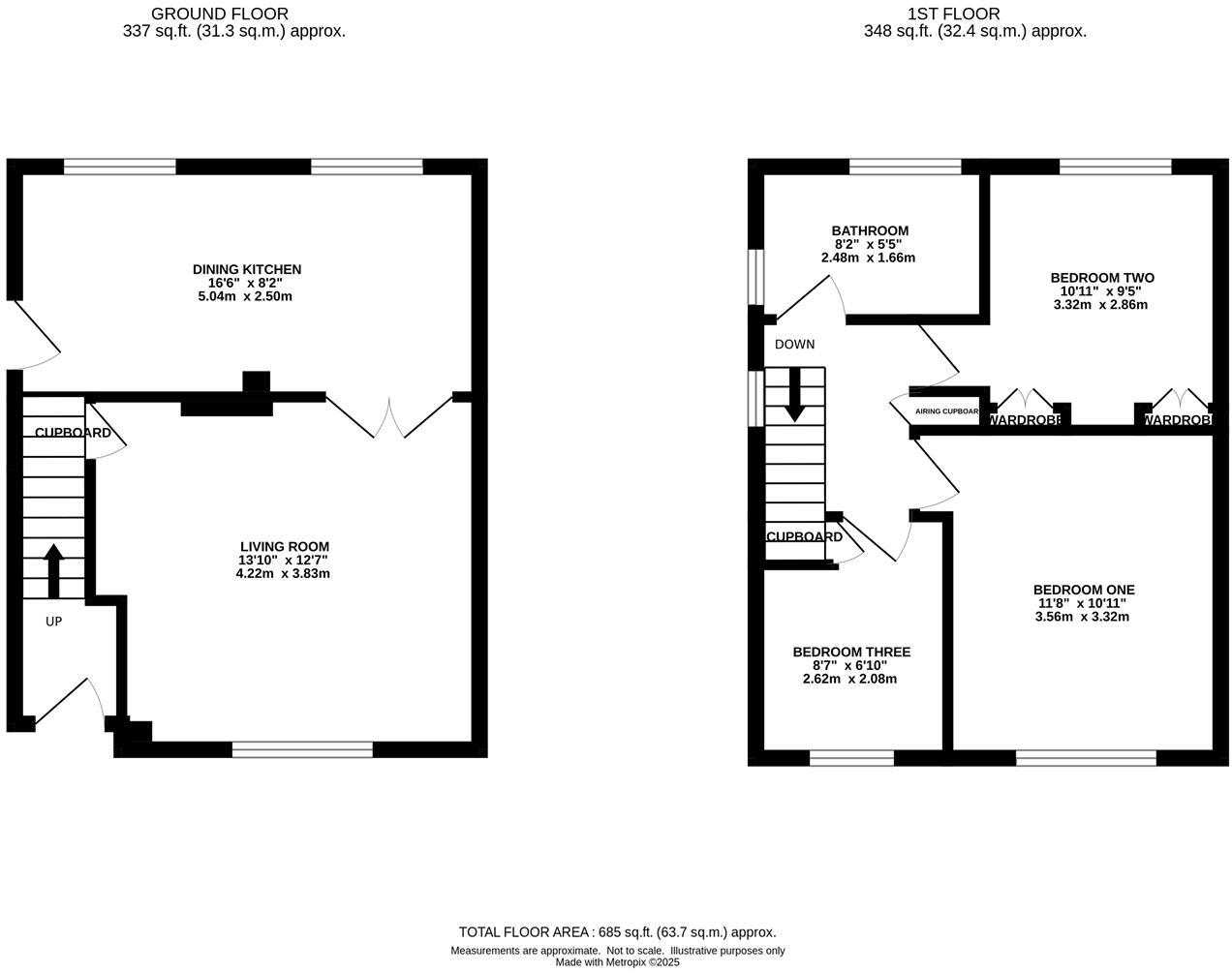
A brick built semi-detached property located in this extremely popular residential location. The property is close to local amenities and only a short distance from Harrogate town centre. Having the benefit of double glazing and central heating the accommodation in brief comprises: good ...
Property Oracle says ..
This property is a 3-bedroom semi-detached house located in Harrogate, North Yorkshire. The property is situated on Tennyson Avenue in the Harrogate Old Bilton area and is within close proximity to several primary schools, including Richard Taylor Church of England Primary School (rated Good by Ofsted) and Harrogate Bilton Grange Primary School (also rated Good). There are also several train stations within a reasonable distance, offering convenient access to other towns and cities. The house itself appears to be in good condition, with a modern kitchen and bathroom. The property benefits from a small garden. While the list price of £285,000 is significantly lower than the average house price in the area (£712,586), it is important to note that the average house size is substantially larger (1,164 sqft vs 685 sqft). Considering the smaller size and the lower average price of nearby properties, the list price may be reasonable. However, additional information on the property’s condition and any potential repairs needed would help to confirm this.
Therefore, we give this property 6 / 10. *Disclaimer: This is our option and does constitute a recommendation or financial advice. Do your own research. *
- Price
- 7
- Condition
- 8
- Location
- 7
- Land
- 3
- Bedrooms
- 3
- Bathrooms
- 1
- Sqft (est)
- 685.00
The heatmap indicates the level of crime in the area. The color of the heatmap indicates the crime severity and recency.
Metrics Year-on-Year
- Average area value
- 340,248.00 £Increased by 14.37 %
- Est sale value
- 289,755.00 £Increased by 80.00 %
- Average area rental value
- 1,335.00 £/moDecreased by 2.91 %
- Est letting value
- 685.00 £/moUnchanged by 0.00 %
- Est rental Yield
- 4.71 %Decreased by 15.14 %
- Crime Rate
- 5.00 %Unchanged by 0.00 %
Agent Activity
Nicholls Tyreman created the listing.
Nearby Schools
| Name | Type | Ofsted | Distance |
|---|---|---|---|
| Richard Taylor Church Of England Primary School | Academy Converter | Good | 0.85 KM |
| Harrogate Bilton Children'S Centre | Children's Centre | 1.16 KM | |
| Woodfield Primary School | Community School | Special Measures | 1.16 KM |
| St Robert'S Catholic Primary School, A Voluntary Academy | Academy Converter | 1.55 KM | |
| Harrogate, Bilton Grange Primary School | Academy Converter | Good | 1.63 KM |
Images
Nearby Streets
| Name | Average Price | Average Sqft | Distance |
|---|---|---|---|
| Meadow Drive | £ 0 | 0 | 0.00 KM |
| Meadow Rise | £ 0 | 0 | 0.00 KM |
| Byland Grove | £ 160,000 | 0 | 0.00 KM |
| Brooke Close | £ 460,000 | 0 | 0.00 KM |
| Pine Street | £ 0 | 0 | 0.00 KM |
Nearby Transport
| Name | NLC | TLC | Distance |
|---|---|---|---|
| Harrogate | 8213 | HGT | 2.68 KM |
| Starbeck | 8221 | SBE | 3.31 KM |
| Hornbeam Park | 8212 | HBP | 3.87 KM |
| Knaresborough | 8214 | KNA | 6.25 KM |
| Pannal | 8479 | PNL | 6.31 KM |
Nearby Listings
| Address | Price | Type | Score | Distance |
|---|---|---|---|---|
| Tennyson Avenue, Harrogate | £ 285,000 | BUY | 6 / 10 | 0.00 KM |
| Tennyson Avenue, Harrogate | £ 250,000 | BUY | 5 / 10 | 0.10 KM |
| Fieldway Close, Harrogate | £ 225,000 | BUY | 6 / 10 | 0.17 KM |
| Meadow Drive, Harrogate, HG1 | £ 225,000 | BUY | 7 / 10 | 0.18 KM |
| Bilton Lane, Harrogate, HG1 | £ 350,000 | BUY | 6 / 10 | 0.20 KM |
Nearby Properties
| Address | Price | Distance |
|---|---|---|
| 17 Chaucer Green | £ 113,000 | 0.09 KM |
| 27 Chaucer Green | £ 133,000 | 0.09 KM |
| 25 Chaucer Green | £ 175,000 | 0.09 KM |
| 43 Chaucer Green | £ 170,000 | 0.09 KM |
| 15 Chaucer Green | £ 165,000 | 0.09 KM |