Reigate Road, Hookwood, Surrey, RH6
MA

Reigate Road, Hookwood, Surrey, RH6

By Mayhew Estates

£ 750,000

Reviews

3 out of 5 stars

Mayhew Estates says ..

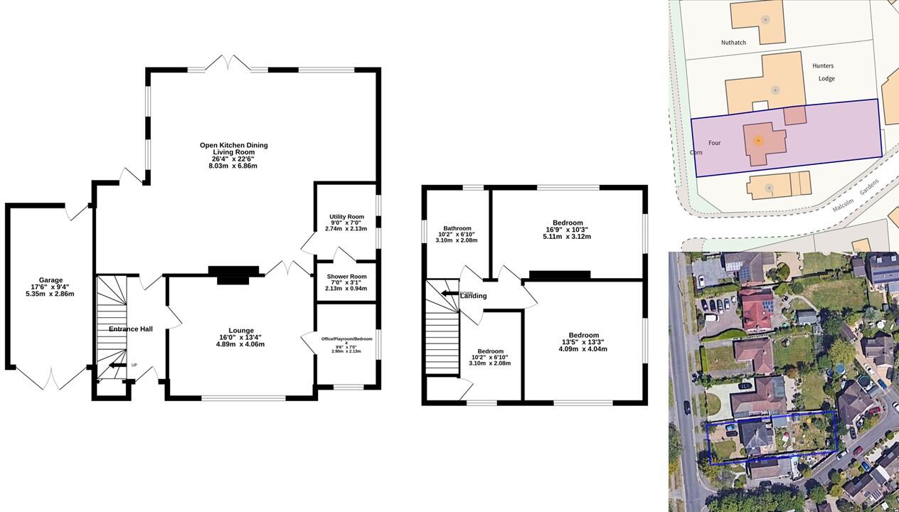
Guide Price £750,000 - £800,000. A large and attractive 3 bedroom detached house that has been extended and beautifully modernised to provide a stunning family home that is set in just under 1/5 of an acre of gardens.

Property Oracle says ..

This property is a 3 bedroom, 1 bathroom detached house located in Hookwood, Surrey. It benefits from a large garden, a recently updated kitchen and bathroom, and is within a reasonable distance of local schools and transport links. The property is well presented and appears to be in good condition. While the plot size is not specified, the images show a significant garden area. The asking price of £750,000 is slightly higher than the average price for the area (£680,455), but considering the property’s condition, size, and amenities, it could be considered reasonable, especially if the plot size is larger than average.

Therefore, we give this property 7 / 10. *Disclaimer: This is our option and does constitute a recommendation or financial advice. Do your own research. *

Price
7
Condition
9
Location
7
Land
8
Bedrooms
3
Bathrooms
1
Sqft (est)
1,456.00

The heatmap indicates the level of crime in the area. The color of the heatmap indicates the crime severity and recency.

Metrics Year-on-Year

Average area value
991,818.00 £
Increased by 31.85 %
from 752,222.00 £
Est sale value
412,048.00 £
Increased by 16.94 %
from 352,352.00 £
Average area rental value
2,500.00 £/mo
Increased by 13.64 %
from 2,200.00 £/mo
Est letting value
0.00 £/mo
from 0.00 £/mo
Est rental Yield
3.02 %
Decreased by 13.96 %
from 3.51 %
Crime Rate
5.00 %
Unchanged by 0.00 %
from 5.00 %

Agent Activity

  • Mayhew Estates created the listing.

Nearby Schools

NameTypeOfstedDistance
Manorfield Primary And Nursery SchoolCommunity SchoolGood1.54 KM
Meath Green Junior SchoolCommunity SchoolGood2.27 KM
Westvale Park Primary AcademyFree Schools2.30 KM
Horley Community Sure Start Children'S CentreChildren's Centre2.65 KM
Meath Green Infant SchoolCommunity SchoolOutstanding2.66 KM

Images

Picture No. 47 Picture No. 32 Picture No. 34 Picture No. 35 Picture No. 30 Picture No. 58 Picture No. 60 Picture No. 22 Picture No. 41 Picture No. 42 Picture No. 36 Picture No. 29 Picture No. 48 Picture No. 33 Picture No. 31 Picture No. 51 Picture No. 57 Picture No. 38 Picture No. 39 Picture No. 37 Picture No. 43 Picture No. 44 Picture No. 45 Picture No. 49 Picture No. 40 Picture No. 46 Picture No. 28 Picture No. 50 Picture No. 52 Picture No. 53 Picture No. 54 Picture No. 55 Picture No. 56

Nearby Streets

NameAverage PriceAverage SqftDistance
London Road £ 000.00 KM
Farmfield Drive £ 000.00 KM
Maple Close £ 000.00 KM
Church View Close £ 691,83300.00 KM
Gratton Road £ 000.00 KM

Nearby Transport

NameNLCTLCDistance
Horley5365HOR2.84 KM
Gatwick Airport5416GTW2.99 KM
Salfords (Surrey)5380SAF4.83 KM
Crawley5484CRW5.93 KM
Three Bridges5491TBD6.08 KM

Nearby Listings

AddressPriceTypeScoreDistance
Reigate Road, Hookwood, Surrey, RH6 £ 750,000BUY7 / 100.00 KM
Reigate Road, Hookwood, Horley, Surrey, RH6 £ 400,000BUY6 / 100.05 KM
Ref: SM - Reigate Road, Hookwood, RH6 0AR £ 450,000BUYUnknown0.08 KM
Ref: SB - Reigate Road, Hookwood, RH6 0AR £ 500,000BUY7 / 100.08 KM
Ref: GK - Donald Gardens, Hookwood, RH6 0GS £ 475,000BUY8 / 100.08 KM

Nearby Properties

AddressPriceDistance
Oaklands £ 540,0000.13 KM
Tudor House £ 240,0000.13 KM
Appledore £ 239,0000.13 KM
Mimosa £ 550,0000.13 KM
Willow Tree Cottage £ 160,0000.13 KM