EX
St. Davids Avenue,Woodfieldside,Blackwood,NP12 0PD
By eXp UK
£ 300,000
Reviews
3 out of 5 stars
eXp UK says ..
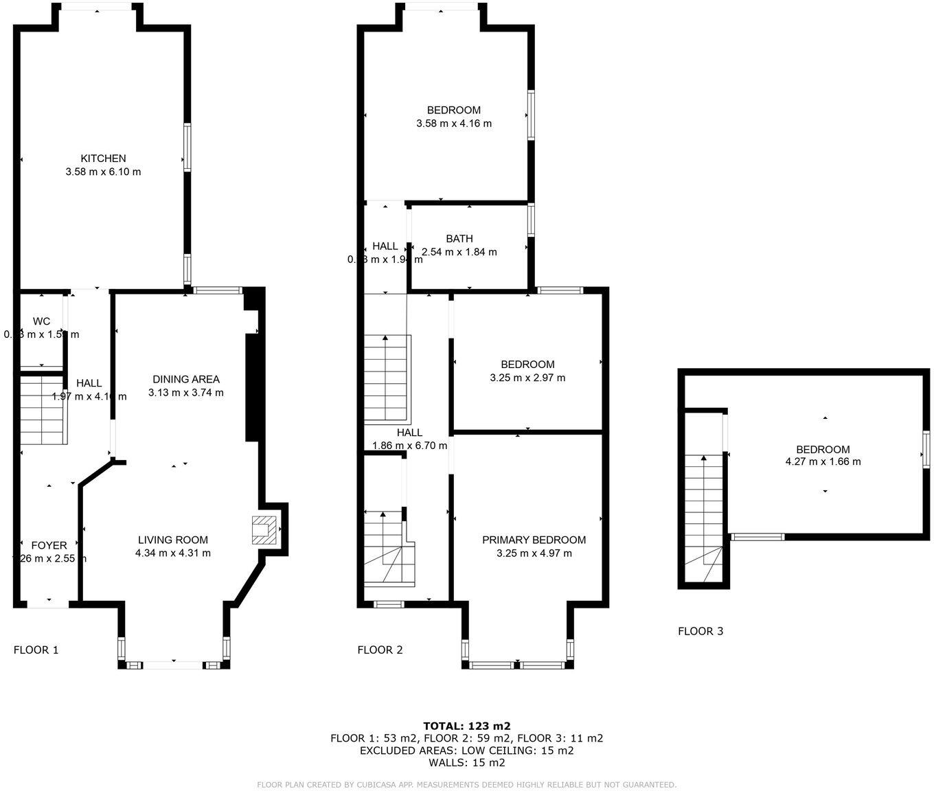
Welcome to this stunning semi-detached period property, beautifully maintained and full of original features. Located near Blackwood town centre, within walking distance of the rugby club and Bistro 8 pub, this home combines character with modern living. Enjoy a cosy lounge with a log burner, ...
Property Oracle says ..
Therefore, we give this property 7 / 10. *Disclaimer: This is our option and does constitute a recommendation or financial advice. Do your own research. *
- Price
- 8
- Condition
- 8
- Location
- 7
- Land
- 7
- Bedrooms
- 3
- Bathrooms
- 2
- Sqft (est)
- 1,365.36
The heatmap indicates the level of crime in the area. The color of the heatmap indicates the crime severity and recency.
Metrics Year-on-Year
- Average area value
- 333,429.00 £Increased by 23.91 %
- Est sale value
- 390,492.96 £Increased by 10.85 %
- Average area rental value
- 995.00 £/moIncreased by 7.57 %
- Est letting value
- 0.00 £/mo
- Est rental Yield
- 3.58 %Decreased by 13.32 %
- Crime Rate
- 1.00 %Unchanged by 0.00 %
from 269,090.00 £
from 352,262.88 £
from 925.00 £/mo
from 0.00 £/mo
from 4.13 %
from 1.00 %
Agent Activity
eXp UK created the listing.
Nearby Schools
| Name | Type | Ofsted | Distance |
|---|---|---|---|
| Libanus Primary School | Welsh Establishment | 0.74 KM | |
| Pontllanfraith Primary School | Welsh Establishment | 1.09 KM | |
| Blackwood Primary School | Welsh Establishment | 1.54 KM | |
| Blackwood Comprehensive School | Welsh Establishment | 1.74 KM | |
| Penllwyn Primary School | Welsh Establishment | 1.79 KM |
Images
Nearby Streets
| Name | Average Price | Average Sqft | Distance |
|---|---|---|---|
| Factory Lane | £ 0 | 0 | 0.00 KM |
| Woodfieldside Road | £ 0 | 0 | 0.00 KM |
| A4048 | £ 0 | 0 | 0.00 KM |
| Ladysmith Road | £ 0 | 0 | 0.00 KM |
| Penmaen Estate | £ 0 | 0 | 0.00 KM |
Nearby Transport
| Name | NLC | TLC | Distance |
|---|---|---|---|
| Hengoed | 4028 | HNG | 4.40 KM |
| Pengam | 4021 | PGM | 4.58 KM |
| Gilfach Fargoed | 4022 | GFF | 4.64 KM |
| Newbridge | 9919 | NBE | 5.09 KM |
| Bargoed | 4011 | BGD | 5.38 KM |
Nearby Listings
| Address | Price | Type | Score | Distance |
|---|---|---|---|---|
| St. Davids Avenue,Woodfieldside,Blackwood,NP12 0PD | £ 300,000 | BUY | 7 / 10 | 0.00 KM |
| Woodfieldside, Blackwood | £ 294,000 | BUY | 6 / 10 | 0.04 KM |
| Park Terrace, Woodfieldside, NP12 | £ 250,000 | BUY | 6 / 10 | 0.10 KM |
| Park Terrace, Blackwood | £ 220,000 | BUY | 6 / 10 | 0.11 KM |
| Elm Court, Blackwood | £ 190,000 | BUY | 7 / 10 | 0.17 KM |
Nearby Properties
| Address | Price | Distance |
|---|---|---|
| 7 St Davids Avenue | £ 236,000 | 0.02 KM |
| Hazeldene | £ 228,000 | 0.02 KM |
| 3 Park Terrace | £ 140,000 | 0.10 KM |
| Newlyn Bungalow | £ 145,000 | 0.10 KM |
| 7 Park Terrace | £ 122,000 | 0.10 KM |