Plot 45, The Read, The Willows, Silsden
By Wilman & Wilman
£ 340,000
Reviews
3 out of 5 stars
Wilman & Wilman says ..
A DETACHED NATURAL STONE home with EAST facing garden and OPEN-PLAN layout, SOLAR PANELS, fitted kitchen with ELECTROLUX appliances.
Property Oracle says ..
This newly built or recently renovated three-bedroom, one-bathroom house in Silsden, West Yorkshire, presents a modern and well-maintained property. The images reveal a contemporary interior design with high-quality finishes and fixtures, showcasing a sleek and stylish aesthetic. The property’s location offers convenient access to Steeton and Silsden train station, enhancing its commuter appeal. Proximity to several primary schools with ‘Good’ Ofsted ratings adds to its family-friendliness. However, information concerning the size of the plot and detailed information on local amenities is lacking, hindering a fully comprehensive assessment. The asking price seems competitive with other properties in the area, though the lack of precise sqft data for a price-per-sqft comparison makes definitive value judgements challenging. Overall, this property provides a good balance of modern living, convenient location, and good condition; although additional data would strengthen the evaluation significantly.
Therefore, we give this property 6 / 10. *Disclaimer: This is our option and does constitute a recommendation or financial advice. Do your own research. *
- Price
- 7
- Condition
- 9
- Location
- 7
- Land
- 3
- Bedrooms
- 3
- Bathrooms
- 1
- Sqft (est)
- 920.00
The heatmap indicates the level of crime in the area. The color of the heatmap indicates the crime severity and recency.
Metrics Year-on-Year
- Average area value
- 422,431.00 £Increased by 29.36 %
- Est sale value
- 628,360.00 £Increased by 163.71 %
- Average area rental value
- 902.00 £/moDecreased by 19.75 %
- Est letting value
- 920.00 £/mo
- Est rental Yield
- 2.56 %Decreased by 38.01 %
- Crime Rate
- 4.00 %Unchanged by 0.00 %
Agent Activity
Wilman & Wilman created the listing.
Nearby Schools
| Name | Type | Ofsted | Distance |
|---|---|---|---|
| Steeton Primary School | Community School | Good | 0.43 KM |
| Daisy Chain Children'S Centre | Children's Centre Linked Site | 1.77 KM | |
| Silsden Primary School | Community School | Good | 1.96 KM |
| Eastburn Junior And Infant School | Community School | Good | 2.58 KM |
| Laycock Primary School | Academy Converter | 3.55 KM |
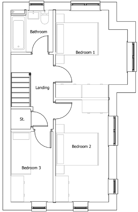
Images
Nearby Streets
| Name | Average Price | Average Sqft | Distance |
|---|---|---|---|
| Summer Hill Lane | £ 0 | 0 | 0.00 KM |
| Ashgrove | £ 169,950 | 0 | 0.00 KM |
| Ramstone Close | £ 0 | 0 | 0.00 KM |
| Riverside Road | £ 0 | 0 | 0.00 KM |
| Fitch Drive | £ 330,000 | 0 | 0.00 KM |
Nearby Transport
| Name | NLC | TLC | Distance |
|---|---|---|---|
| Steeton And Silsden | 8469 | SON | 0.57 KM |
| Keighley | 8468 | KEI | 6.28 KM |
| Cononley | 8470 | CEY | 7.23 KM |
Nearby Listings
| Address | Price | Type | Score | Distance |
|---|---|---|---|---|
| St. Stephens Road, Steeton | £ 695,000 | BUY | 8 / 10 | 0.10 KM |
| Yew Tree Cottage, Steeton | £ 595,000 | BUY | 8 / 10 | 0.10 KM |
| Willow Avenue, Steeton | £ 130,000 | BUY | Unknown | 0.17 KM |
| Willow Avenue, Steeton, BD20 | £ 128,000 | BUY | Unknown | 0.17 KM |
| Elmsley Street, Steeton, BD20 | £ 280,000 | BUY | 7 / 10 | 0.27 KM |
Nearby Properties
| Address | Price | Distance |
|---|---|---|
| 10 Steeton Hall Gardens | £ 505,000 | 0.12 KM |
| 2 St Stephens Road | £ 320,000 | 0.14 KM |
| 1 St Stephens Road | £ 427,500 | 0.14 KM |
| Steeton Hall Farm | £ 540,000 | 0.14 KM |
| The Coach House | £ 387,500 | 0.14 KM |