Makins Road, Henley-on-Thames, Oxfordshire, RG9
By Davis Tate
£ 800,000
Reviews
3 out of 5 stars
Davis Tate says ..
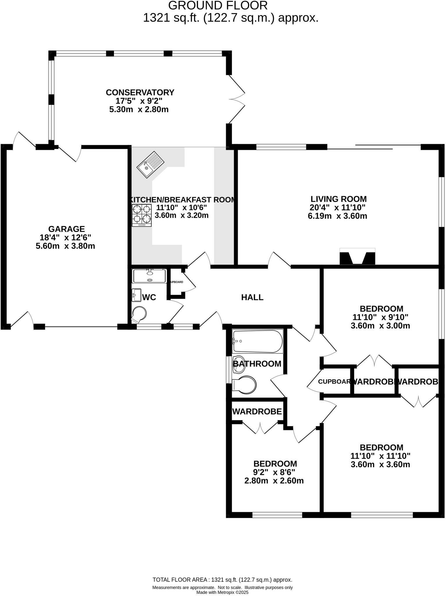
This well-presented link-detached bungalow is situated 1.1 miles from Henley town centre. The accommodation includes three double bedrooms, an open plan kitchen/dining area and a generous reception room. There is a landscaped south facing garden, garage and off-road parking. EPC Rating D.
Property Oracle says ..
This is a three-bedroom bungalow on Makins Road, Henley-on-Thames. The property includes two bathrooms, a well-sized garden, and a garage. The house appears to be in good condition, although some modernisation could be beneficial. The location is desirable, with proximity to schools and local amenities. The property offers 1,059.10 sqft of living space. The property benefits from a conservatory. The listing price is £800,000.
Therefore, we give this property 7 / 10. *Disclaimer: This is our option and does constitute a recommendation or financial advice. Do your own research. *
- Price
- 7
- Condition
- 7
- Location
- 7
- Land
- 8
- Bedrooms
- 3
- Bathrooms
- 2
- Sqft (est)
- 1,059.10
The heatmap indicates the level of crime in the area. The color of the heatmap indicates the crime severity and recency.
Metrics Year-on-Year
- Average area value
- 757,941.00 £Decreased by 5.91 %
- Est sale value
- 837,748.10 £Increased by 13.65 %
- Average area rental value
- 1,911.00 £/moDecreased by 16.51 %
- Est letting value
- 1,059.10 £/moUnchanged by 0.00 %
- Est rental Yield
- 3.03 %Decreased by 11.14 %
- Crime Rate
- 4.00 %Unchanged by 0.00 %
Agent Activity
Davis Tate created the listing.
Nearby Schools
| Name | Type | Ofsted | Distance |
|---|---|---|---|
| Gillotts School | Academy Converter | Good | 0.28 KM |
| Valley Road School | Community School | Good | 0.42 KM |
| Sacred Heart Catholic Primary School, Henley-On-Thames | Voluntary Aided School | Good | 1.41 KM |
| The Henley College | Further Education | Good | 1.66 KM |
| Badgemore Primary School | Community School | Good | 1.75 KM |
Images
Nearby Streets
| Name | Average Price | Average Sqft | Distance |
|---|---|---|---|
| Thorne Close | £ 0 | 0 | 0.00 KM |
| Wootton Road | £ 0 | 0 | 0.00 KM |
| Harpsden Hall Cottages | £ 0 | 0 | 0.00 KM |
| Parkside | £ 0 | 0 | 0.00 KM |
| Paradise Road | £ 0 | 0 | 0.00 KM |
Nearby Transport
| Name | NLC | TLC | Distance |
|---|---|---|---|
| Henley-On-Thames | 3146 | HOT | 2.31 KM |
| Shiplake | 3150 | SHI | 4.43 KM |
| Wargrave | 3158 | WGV | 5.72 KM |
| Twyford | 3155 | TWY | 8.44 KM |
| Reading | 3149 | RDG | 9.50 KM |
Nearby Listings
| Address | Price | Type | Score | Distance |
|---|---|---|---|---|
| Makins Road, Henley-on-Thames, Oxfordshire, RG9 | £ 800,000 | BUY | 7 / 10 | 0.00 KM |
| Henley -On-Thames, Oxfordshire, RG9 | £ 975,000 | BUY | 7 / 10 | 0.06 KM |
| Makins Road, RG9 1PR | £ 935,000 | BUY | Unknown | 0.07 KM |
| Land Adjacent to 251 Greys Road, Henley-on-Thames, Oxfordshire, RG9 1QS | £ 1,000 | BUY | 5 / 10 | 0.16 KM |
| Makins Road, RG9 1PR | £ 1,095,000 | BUY | 6 / 10 | 0.20 KM |
Nearby Properties
| Address | Price | Distance |
|---|---|---|
| 80 Makins Road | £ 460,000 | 0.01 KM |
| 96 Makins Road | £ 650,000 | 0.01 KM |
| 78 Makins Road | £ 613,500 | 0.01 KM |
| 60 Makins Road | £ 750,000 | 0.01 KM |
| 68 Makins Road | £ 640,000 | 0.01 KM |