Via Lambert Meadow, Tyldesley, Greater Manchester, M29
By LSL Land & New Homes
£ 589,995
Reviews
3 out of 5 stars
LSL Land & New Homes says ..
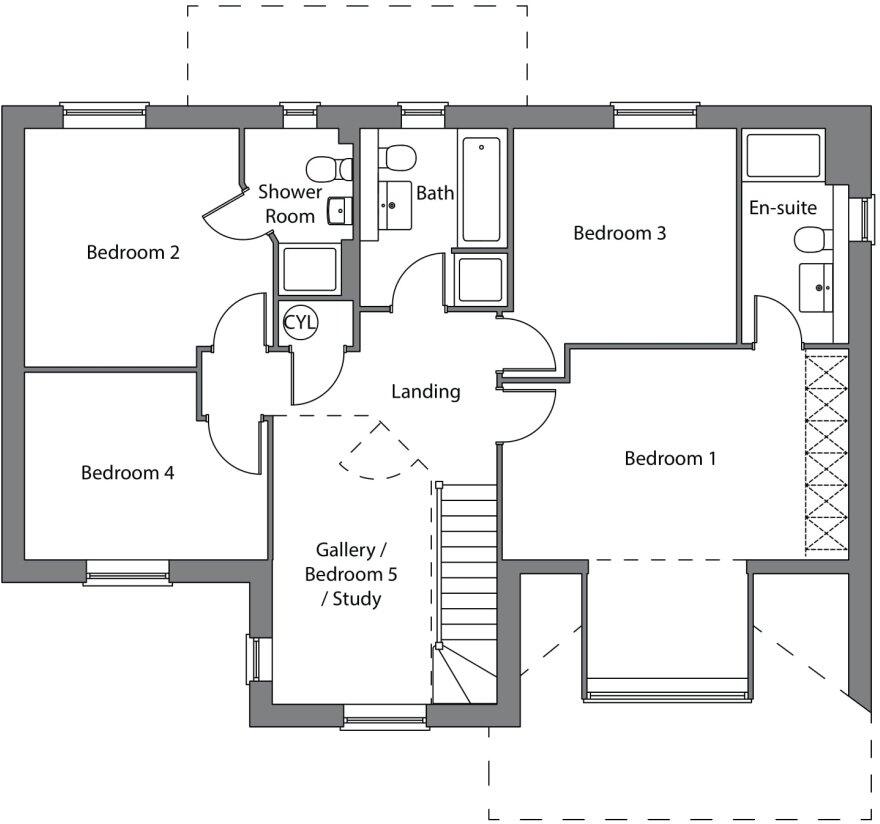
New Year, New Home The Chesham is a prestigious 4 / 5 bedroom detached home offers a well- planned living space.
Property Oracle says ..
This new build property in Tyldesley, Greater Manchester, is presented as a four-bedroom home with what appears to be a modern and well-maintained interior. The images showcase a contemporary design with high-quality fixtures and finishes throughout. The location offers a reasonable compromise between a quiet residential setting and access to primary schools, rated ‘Good’ and ‘Outstanding’ by Ofsted, and several nearby train stations providing commute options to broader Greater Manchester. The absence of comprehensive details regarding the square footage and plot size makes it challenging to fully assess the value for money. However, while the list price is on the higher end compared to other properties in the area, it reflects the property’s apparent high-quality construction and desirable features. More detailed information on plot size and property square footage would provide a more robust assessment of value. The lack of bathroom information in the property details is also a considerable oversight.
Therefore, we give this property 6 / 10. *Disclaimer: This is our option and does constitute a recommendation or financial advice. Do your own research. *
- Price
- 6
- Condition
- 9
- Location
- 7
- Land
- 4
- Bedrooms
- 4
- Bathrooms
- 0
- Sqft (est)
- 1,200.00
The heatmap indicates the level of crime in the area. The color of the heatmap indicates the crime severity and recency.
Metrics Year-on-Year
- Average area value
- 357,688.00 £Increased by 10.28 %
- Est sale value
- 433,200.00 £Increased by 25.35 %
- Average area rental value
- 1,099.00 £/moDecreased by 6.63 %
- Est letting value
- 1,200.00 £/moUnchanged by 0.00 %
- Est rental Yield
- 3.69 %Decreased by 15.17 %
- Crime Rate
- 0.00 %
Agent Activity
LSL Land & New Homes created the listing.
Nearby Schools
| Name | Type | Ofsted | Distance |
|---|---|---|---|
| Garrett Hall Primary School | Community School | Outstanding | 0.52 KM |
| Holy Family Catholic Primary School | Voluntary Aided School | Good | 0.67 KM |
| St John'S Cofe Primary School Mosley Common | Voluntary Aided School | Good | 1.19 KM |
| Mosley Common Childrens Centre | Children's Centre Linked Site | 1.36 KM | |
| Boothstown Methodist Primary School | Voluntary Controlled School | Good | 1.71 KM |
Images
Nearby Streets
| Name | Average Price | Average Sqft | Distance |
|---|---|---|---|
| Westacre Close | £ 0 | 0 | 0.00 KM |
| North Ridge Close | £ 252,000 | 0 | 0.00 KM |
| Fern Green Close | £ 0 | 0 | 0.00 KM |
| Meadowgrass Gardens | £ 244,990 | 0 | 0.00 KM |
| Laburnum Grove | £ 0 | 0 | 0.00 KM |
Nearby Transport
| Name | NLC | TLC | Distance |
|---|---|---|---|
| Walkden | 2612 | WKD | 4.74 KM |
| Atherton | 2584 | ATN | 4.94 KM |
| Moses Gate | 2606 | MSS | 6.48 KM |
| Hag Fold | 2585 | HGF | 6.76 KM |
| Farnworth | 2811 | FNW | 7.07 KM |
Nearby Listings
| Address | Price | Type | Score | Distance |
|---|---|---|---|---|
| Via Lambert Meadow, Tyldesley, Greater Manchester, M29 | £ 269,995 | BUY | 8 / 10 | 0.00 KM |
| Via Lambert Meadow, Tyldesley, Greater Manchester, M29 | £ 589,995 | BUY | 6 / 10 | 0.00 KM |
| Wareham Special, Plot 435, Tyldesley, Greater Manchester, M29 | £ 239,995 | BUY | 6 / 10 | 0.00 KM |
| Via Lambert Meadow, Tyldesley, Greater Manchester, M29 | £ 639,995 | BUY | 7 / 10 | 0.00 KM |
| Via Lambert Meadow, Tyldesley, Greater Manchester, M29 | £ 599,995 | BUY | Unknown | 0.00 KM |
Nearby Properties
| Address | Price | Distance |
|---|---|---|
| 4 Lynton Road | £ 82,995 | 0.28 KM |
| 74 Lynton Road | £ 192,000 | 0.28 KM |
| 16 Lynton Road | £ 182,864 | 0.28 KM |
| 36 Lynton Road | £ 80,000 | 0.28 KM |
| 26 Lynton Road | £ 85,000 | 0.28 KM |