Lavenham Road, London
By Marcus Reilly Estates
£ 1,350,000
Reviews
3 out of 5 stars
Marcus Reilly Estates says ..
5 Bedroom family home near OFSTED Outstanding rated schools in the desirable Wimbledon Park.
Property Oracle says ..
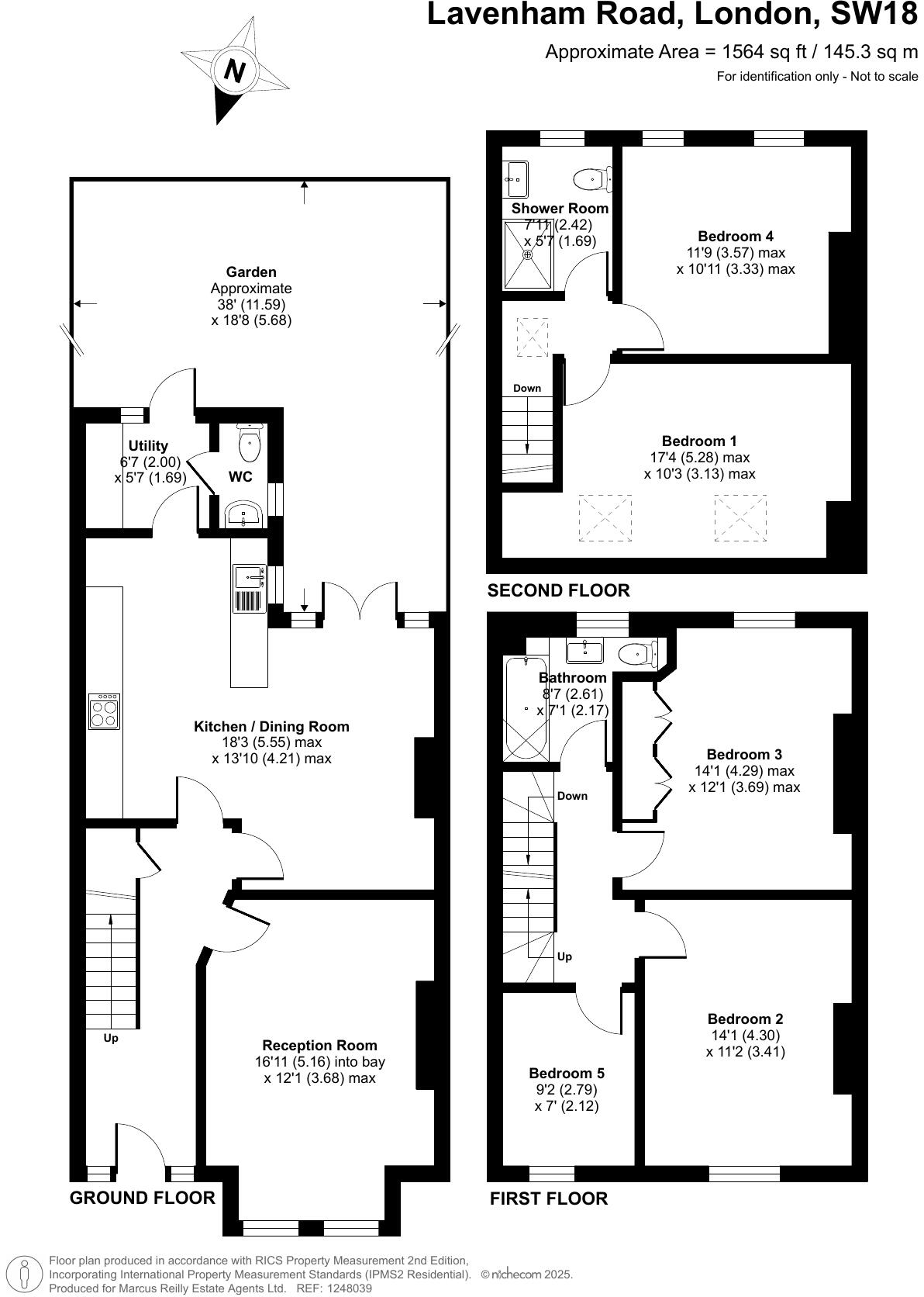
This property is a 5 bedroom, 2 bathroom house located in Southfields, Wandsworth. The property benefits from being close to local amenities and transport links. The property is in relatively good condition, although some minor repairs or upgrades may be necessary. The property has a garden. The list price seems slightly above average for the area, but considering the size and features of the property, it may be considered reasonable.
Therefore, we give this property 7 / 10. *Disclaimer: This is our option and does constitute a recommendation or financial advice. Do your own research. *
- Price
- 7
- Condition
- 7
- Location
- 8
- Land
- 6
- Bedrooms
- 5
- Bathrooms
- 2
- Sqft (est)
- 3,668.00
- Lot (est)
- 1,564.00
The heatmap indicates the level of crime in the area. The color of the heatmap indicates the crime severity and recency.
Metrics Year-on-Year
- Average area value
- 719,333.00 £Increased by 1.81 %
- Est sale value
- 2,872,044.00 £Decreased by 0.38 %
- Average area rental value
- 2,472.00 £/moDecreased by 10.69 %
- Est letting value
- 7,336.00 £/moDecreased by 33.33 %
- Est rental Yield
- 4.12 %Decreased by 12.34 %
- Crime Rate
- 2.00 %Unchanged by 0.00 %
Agent Activity
Marcus Reilly Estates created the listing.
Nearby Schools
| Name | Type | Ofsted | Distance |
|---|---|---|---|
| Sheringdale Primary School | Community School | Outstanding | 0.56 KM |
| Saint Cecilia'S Church Of England School | Academy Converter | Good | 0.72 KM |
| Riversdale Primary School | Community School | Good | 0.81 KM |
| Southfields Academy | Academy Converter | Good | 0.92 KM |
| Linden Lodge School | Academy Special Converter | 0.96 KM |
Images
Nearby Streets
| Name | Average Price | Average Sqft | Distance |
|---|---|---|---|
| Normanton Avenue | £ 0 | 0 | 0.00 KM |
| Southfields Court | £ 0 | 0 | 0.00 KM |
| Alba Mews | £ 0 | 0 | 0.00 KM |
| Squires Court | £ 0 | 0 | 0.00 KM |
| Glenville Mews | £ 0 | 0 | 0.00 KM |
Nearby Transport
| Name | NLC | TLC | Distance |
|---|---|---|---|
| Earlsfield | 5584 | EAD | 1.87 KM |
| Wimbledon | 5578 | WIM | 2.29 KM |
| Haydons Road | 5289 | HYR | 2.52 KM |
| Putney | 5603 | PUT | 2.54 KM |
| Wandsworth Town | 5576 | WNT | 2.82 KM |
Nearby Listings
| Address | Price | Type | Score | Distance |
|---|---|---|---|---|
| Lavenham Road, London | £ 1,350,000 | BUY | 7 / 10 | 0.00 KM |
| Heythorp Street, London | £ 1,399,950 | BUY | 7 / 10 | 0.06 KM |
| Elsenham Street, London | £ 1,350,000 | BUY | 7 / 10 | 0.12 KM |
| Elsenham Street, London, SW18 | £ 700,000 | BUY | 7 / 10 | 0.14 KM |
| Elsenham Street, London | £ 1,395,000 | BUY | Unknown | 0.15 KM |
Nearby Properties
| Address | Price | Distance |
|---|---|---|
| 6 Lavenham Road | £ 1,200,000 | 0.04 KM |
| 36 Lavenham Road | £ 710,000 | 0.04 KM |
| 34b Lavenham Road | £ 620,000 | 0.04 KM |
| 26 Lavenham Road | £ 725,000 | 0.04 KM |
| 20 Lavenham Road | £ 1,410,105 | 0.04 KM |