Robert Owen Court, Worcester, Worcestershire, WR1
By R A Bennett & Partners
£ 80,000
Reviews
2 out of 5 stars
R A Bennett & Partners says ..
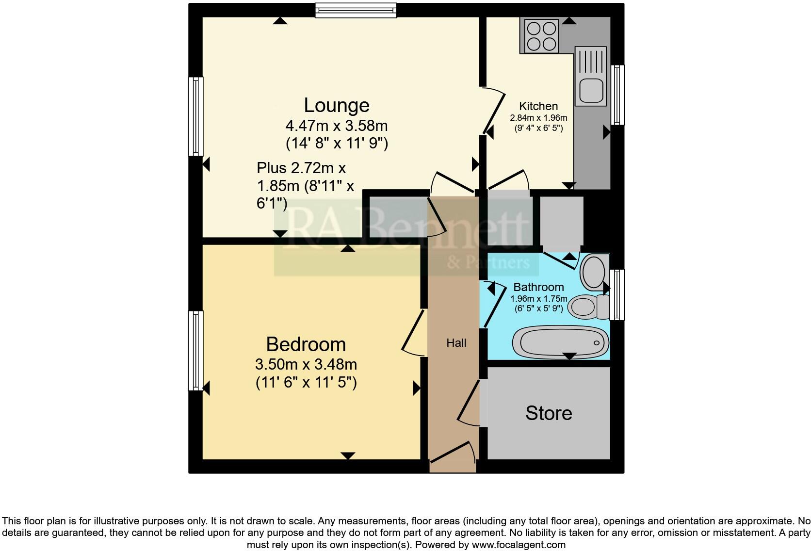
This one bedroom third floor apartment is located within the boundaries of the city centre and offered with no onward chain. The accommodation consists of an entrance hall which leads through to the lounge, bedroom and bathroom. The spacious lounge has space for a table and chairs and opens into ...
Property Oracle says ..
This is a one-bedroom flat located in the Cathedral area of Worcester. The property benefits from its central location, with convenient access to transportation and local amenities. However, the flat is in need of renovation, as evidenced by the dated kitchen, bathroom, and general interior. While there is no private garden, the building is surrounded by communal green spaces. The asking price of £80,000 reflects the condition of the property and offers an opportunity for modernisation.
Therefore, we give this property 5 / 10. *Disclaimer: This is our option and does constitute a recommendation or financial advice. Do your own research. *
- Price
- 8
- Condition
- 3
- Location
- 7
- Land
- 2
- Bedrooms
- 1
- Bathrooms
- 1
- Sqft (est)
- 460.70
The heatmap indicates the level of crime in the area. The color of the heatmap indicates the crime severity and recency.
Metrics Year-on-Year
- Average area value
- 306,076.00 £Increased by 13.87 %
- Est sale value
- 126,692.50 £Increased by 0.36 %
- Average area rental value
- 1,012.00 £/moIncreased by 13.33 %
- Est letting value
- 0.00 £/mo
- Est rental Yield
- 3.97 %Decreased by 0.50 %
- Crime Rate
- 17.00 %Unchanged by 0.00 %
Agent Activity
R A Bennett & Partners created the listing.
Nearby Schools
| Name | Type | Ofsted | Distance |
|---|---|---|---|
| Saffron Children'S Centre | Children's Centre | 0.46 KM | |
| Sunflower Children'S Centre | Children's Centre Linked Site | 0.46 KM | |
| Stanley Road Primary School | Academy Converter | 0.50 KM | |
| Newbridge School | Academy Alternative Provision Sponsor Led | 0.52 KM | |
| Fort Royal | Community Special School | Good | 0.66 KM |
Images
Nearby Streets
| Name | Average Price | Average Sqft | Distance |
|---|---|---|---|
| St Paul's Street | £ 0 | 0 | 0.00 KM |
| Saint Martin's Gate | £ 0 | 0 | 0.00 KM |
| Clare Street | £ 0 | 0 | 0.00 KM |
| Richmond Hill | £ 0 | 0 | 0.00 KM |
| Westbury Street | £ 0 | 0 | 0.00 KM |
Nearby Transport
| Name | NLC | TLC | Distance |
|---|---|---|---|
| Worcester Shrub Hill | 4891 | WOS | 0.65 KM |
| Worcester Foregate Street | 4893 | WOF | 0.85 KM |
| Worcestershire Parkway | 6580 | WOP | 7.23 KM |
Nearby Listings
| Address | Price | Type | Score | Distance |
|---|---|---|---|---|
| Robert Owen Court, Worcester | £ 80,000 | BUY | 4 / 10 | 0.00 KM |
| Robert Owen Court, Worcester, Worcestershire, WR1 | £ 80,000 | BUY | 5 / 10 | 0.00 KM |
| Wellington Close | £ 105,000 | BUY | 5 / 10 | 0.07 KM |
| Vesta Tilley Court, Worcester, Worcestershire | £ 130,000 | BUY | 5 / 10 | 0.09 KM |
| Lock Steet, Worcester | £ 5,000 | BUY | 3 / 10 | 0.24 KM |
Nearby Properties
| Address | Price | Distance |
|---|---|---|
| 16 Vesta Tilley Court | £ 59,000 | 0.06 KM |
| 12 Vesta Tilley Court | £ 135,000 | 0.06 KM |
| 9 Vesta Tilley Court | £ 119,000 | 0.06 KM |
| 13 Vesta Tilley Court | £ 90,000 | 0.06 KM |
| 5 Vesta Tilley Court | £ 56,500 | 0.06 KM |