Sargeants says ..
Welcome to this beautifully presented three-bedroom, one-bathroom terraced home, ideally located in the heart of Hanwell. Recently renovated to a high standard, this property boasts thoughtfully designed interiors, with each room offering its own unique character and charm.
Property Oracle says ..
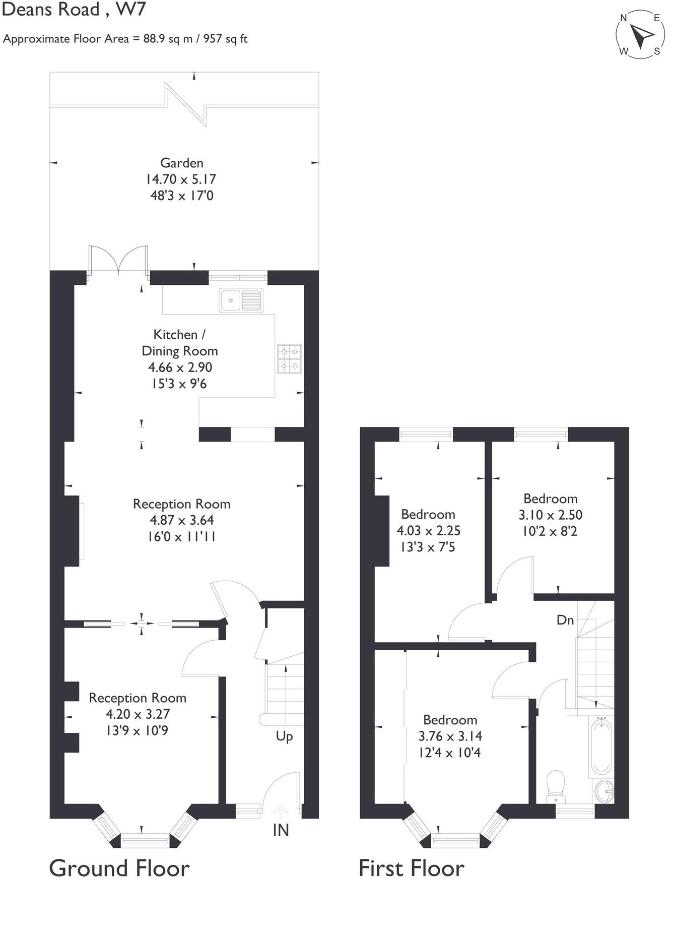
This is a three-bedroom terraced house located on Deans Road in Hanwell, London. The property is listed by Sargeants Estate Agents for £825,000. It features one bathroom and has a square footage of 956.91 sqft. The property is situated in a convenient location, close to local schools and transportation links. The house appears to be in good condition, with a modern kitchen and bathroom. It also benefits from a garden, which is a desirable feature for many buyers. The price is slightly higher than some comparable properties in the area, but this may be justified by the condition and location of the property. Overall, this property offers a comfortable and well-located home for potential buyers looking in the Hanwell area.
Therefore, we give this property 7 / 10. *Disclaimer: This is our option and does constitute a recommendation or financial advice. Do your own research. *
- Price
- 6
- Condition
- 8
- Location
- 7
- Land
- 7
- Bedrooms
- 3
- Bathrooms
- 1
- Sqft (est)
- 956.91
The heatmap indicates the level of crime in the area. The color of the heatmap indicates the crime severity and recency.
Metrics Year-on-Year
- Average area value
- 526,250.00 £Increased by 3.90 %
- Est sale value
- 764,571.09 £Increased by 15.30 %
- Average area rental value
- 1,876.00 £/moIncreased by 3.25 %
- Est letting value
- 1,913.82 £/moUnchanged by 0.00 %
- Est rental Yield
- 4.28 %Decreased by 0.47 %
- Crime Rate
- 6.00 %Unchanged by 0.00 %
Agent Activity
Sargeants created the listing.
Nearby Schools
| Name | Type | Ofsted | Distance |
|---|---|---|---|
| Oaklands Primary School | Community School | Good | 0.13 KM |
| Elthorne Park High School | Community School | Outstanding | 0.70 KM |
| St Joseph'S Catholic Primary School | Voluntary Aided School | Good | 0.82 KM |
| St Ann'S School | Community Special School | Outstanding | 0.91 KM |
| St Mark'S Primary School | Community School | Good | 0.94 KM |
Images
Nearby Streets
| Name | Average Price | Average Sqft | Distance |
|---|---|---|---|
| Edinburgh Road | £ 799,950 | 0 | 0.00 KM |
| Rosedale Close | £ 0 | 0 | 0.00 KM |
| Filanco Court | £ 600,000 | 0 | 0.00 KM |
| Aria Mews | £ 0 | 0 | 0.00 KM |
| Boston Road | £ 0 | 0 | 0.00 KM |
Nearby Transport
| Name | NLC | TLC | Distance |
|---|---|---|---|
| Hanwell | 3191 | HAN | 0.98 KM |
| Drayton Green | 3099 | DRG | 1.23 KM |
| West Ealing | 3188 | WEA | 1.59 KM |
| Castle Bar Park | 3098 | CBP | 1.91 KM |
| Syon Lane | 5609 | SYL | 2.79 KM |
Nearby Listings
| Address | Price | Type | Score | Distance |
|---|---|---|---|---|
| Deans Road, Hanwell, W7 | £ 825,000 | BUY | 7 / 10 | 0.00 KM |
| Deans Road, Hanwell, W7 | £ 650,000 | BUY | 6 / 10 | 0.04 KM |
| Montague Road, Hanwell, W7 | £ 800,000 | BUY | 8 / 10 | 0.08 KM |
| Southfield Cottages, Hanwell, London, W7 2DS | £ 735,000 | BUY | Unknown | 0.10 KM |
| Edinburgh Road, Hanwell | £ 625,000 | BUY | 7 / 10 | 0.15 KM |
Nearby Properties
| Address | Price | Distance |
|---|---|---|
| 85 Montague Road | £ 540,000 | 0.08 KM |
| 79 Montague Road | £ 390,000 | 0.08 KM |
| 75 Montague Road | £ 625,000 | 0.08 KM |
| 69 Montague Road | £ 585,000 | 0.08 KM |
| 14 Southfield Cottages | £ 575,000 | 0.09 KM |