BE
Gough Lane, Bamber Bridge, Preston
By Ben Rose Estate Agents
£ 499,950
Reviews
3 out of 5 stars
Ben Rose Estate Agents says ..
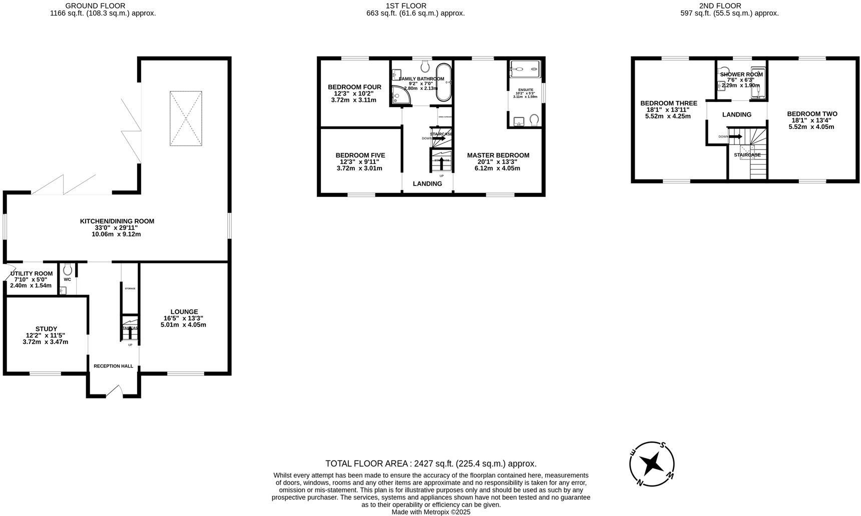
Ben Rose Estate Agents are pleased to present to market this stunning, newly built five-bedroom detached home, offered with NO CHAIN and situated in a peaceful, private setting in Bamber Bridge. Currently having its finishing touches added, the property will be completed upon sale, presenting an ...
Property Oracle says ..
Therefore, we give this property 6 / 10. *Disclaimer: This is our option and does constitute a recommendation or financial advice. Do your own research. *
- Price
- 6
- Condition
- 6
- Location
- 7
- Land
- 5
- Bedrooms
- 5
- Bathrooms
- 3
- Sqft (est)
- 2,509.20
The heatmap indicates the level of crime in the area. The color of the heatmap indicates the crime severity and recency.
Metrics Year-on-Year
- Average area value
- 445,205.00 £Decreased by 3.69 %
- Est sale value
- 1,618,434.00 £Increased by 20.34 %
- Average area rental value
- 1,836.00 £/moIncreased by 4.79 %
- Est letting value
- 5,018.40 £/moUnchanged by 0.00 %
- Est rental Yield
- 4.95 %Increased by 8.79 %
- Crime Rate
- 34.00 %Unchanged by 0.00 %
from 462,259.00 £
from 1,344,931.20 £
from 1,752.00 £/mo
from 5,018.40 £/mo
from 4.55 %
from 34.00 %
Agent Activity
Ben Rose Estate Agents created the listing.
Nearby Schools
| Name | Type | Ofsted | Distance |
|---|---|---|---|
| Clayton Brook Primary School | Community School | Good | 0.27 KM |
| Clayton Brook Children'S Centre | Children's Centre | 0.31 KM | |
| Progress School | Other Independent Special School | Outstanding | 0.45 KM |
| Westwood Primary School | Community School | Good | 0.78 KM |
| Cambian Red Rose School | Other Independent Special School | Good | 0.88 KM |
Images
Nearby Streets
| Name | Average Price | Average Sqft | Distance |
|---|---|---|---|
| Regent Gardens | £ 0 | 0 | 0.00 KM |
| Lilac Mead | £ 290,000 | 0 | 0.00 KM |
| Stonehouse Green | £ 280,000 | 0 | 0.00 KM |
| Clayton Green Road | £ 0 | 0 | 0.00 KM |
| Greenacres | £ 0 | 0 | 0.00 KM |
Nearby Transport
| Name | NLC | TLC | Distance |
|---|---|---|---|
| Bamber Bridge | 2561 | BMB | 2.81 KM |
| Buckshaw Parkway | 7501 | BSV | 5.25 KM |
| Lostock Hall | 2689 | LOH | 5.53 KM |
| Leyland | 2710 | LEY | 5.68 KM |
| Chorley | 2745 | CRL | 7.05 KM |
Nearby Listings
| Address | Price | Type | Score | Distance |
|---|---|---|---|---|
| Gough Lane, Bamber Bridge, Preston | £ 499,950 | BUY | 6 / 10 | 0.00 KM |
| Masonfield, Bamber Bridge, Preston | £ 155,000 | BUY | 5 / 10 | 0.06 KM |
| Gough Lane, Bamber Bridge, PR5 | £ 619,995 | BUY | 7 / 10 | 0.09 KM |
| Crow Trees House, Gough Lane, Bamber Bridge, Preston, Lancashire PR5 6AQ | £ 400,000 | BUY | 6 / 10 | 0.12 KM |
| Gough Lane, Bamber Bridge, Preston | £ 625,000 | BUY | 7 / 10 | 0.14 KM |
Nearby Properties
| Address | Price | Distance |
|---|---|---|
| 47 Masonfield | £ 93,000 | 0.10 KM |
| 64 Masonfield | £ 130,000 | 0.10 KM |
| 71 Masonfield | £ 63,000 | 0.10 KM |
| 53 Masonfield | £ 134,000 | 0.10 KM |
| 67 Masonfield | £ 60,000 | 0.10 KM |