Varcoe Road, Bermondsey, London, SE16
By Kinleigh Folkard & Hayward - Sales
£ 450,000
Reviews
4 out of 5 stars
Kinleigh Folkard & Hayward - Sales says ..
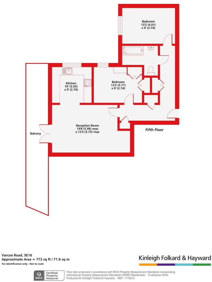
Located a short walk to South Bermondsey rail service is this chain free two bedroom modern apartment. Boasting a large attic storage and an abundance of natural light throughout, with an impressive sized terrace. The property boast incredible views of Canary Wharf and the City.
Property Oracle says ..
This property is a 2-bedroom, 1-bathroom flat located in Bermondsey, London. The flat is modern and well-maintained, as seen in the provided images. It features a spacious open-plan living area with hardwood floors and access to a private balcony or terrace with city views. The kitchen is modern and includes integrated appliances. The property benefits from being close to excellent schools such as Ilderton Primary School and Galleywall Primary School, both rated Outstanding by Ofsted. Transportation links are also convenient, with South Bermondsey train station within walking distance. The list price of £450,000 seems slightly high compared to the average price per square foot in the area, but the modern condition, private outdoor space, and excellent location could justify the premium.
Therefore, we give this property 8 / 10. *Disclaimer: This is our option and does constitute a recommendation or financial advice. Do your own research. *
- Price
- 7
- Condition
- 9
- Location
- 9
- Land
- 7
- Bedrooms
- 2
- Bathrooms
- 1
- Sqft (est)
- 554.40
- Lot (est)
- 773.00
The heatmap indicates the level of crime in the area. The color of the heatmap indicates the crime severity and recency.
Metrics Year-on-Year
- Average area value
- 448,750.00 £Increased by 43.15 %
- Est sale value
- 194,040.00 £Increased by 2.64 %
- Average area rental value
- 1,650.00 £/moIncreased by 60.98 %
- Est letting value
- 554.40 £/moUnchanged by 0.00 %
- Est rental Yield
- 4.41 %Increased by 12.50 %
- Crime Rate
- 3.00 %Unchanged by 0.00 %
Agent Activity
Kinleigh Folkard & Hayward - Sales created the listing.
Nearby Schools
| Name | Type | Ofsted | Distance |
|---|---|---|---|
| Ilderton Primary School | Community School | Outstanding | 0.40 KM |
| Galleywall Primary School | Free Schools | Outstanding | 0.49 KM |
| Pilgrims' Way Primary School | Community School | Good | 0.62 KM |
| Treasure House (London) Cic | Other Independent Special School | Good | 0.64 KM |
| Pilgrims Way Primary School & Children'S Centre | Children's Centre | 0.65 KM |
Images
Nearby Streets
| Name | Average Price | Average Sqft | Distance |
|---|---|---|---|
| Edenbridge Close | £ 0 | 0 | 0.00 KM |
| Barry House | £ 0 | 0 | 0.00 KM |
| Rollins Street | £ 569,000 | 0 | 0.00 KM |
| Stockholm Road | £ 0 | 0 | 0.00 KM |
| Anchor Street | £ 0 | 0 | 0.00 KM |
Nearby Transport
| Name | NLC | TLC | Distance |
|---|---|---|---|
| South Bermondsey | 5425 | SBM | 0.45 KM |
| Queens Road Peckham | 5424 | QRP | 1.35 KM |
| Surrey Quays | 1083 | SQE | 1.42 KM |
| Canada Water | 1659 | ZCW | 1.64 KM |
| New Cross | 5150 | NWX | 1.64 KM |
Nearby Listings
| Address | Price | Type | Score | Distance |
|---|---|---|---|---|
| Varcoe Road, Bermondsey, London, SE16 | £ 450,000 | BUY | 8 / 10 | 0.00 KM |
| Varcoe Road, Bermondsey, SE16 | £ 275,000 | BUY | 6 / 10 | 0.03 KM |
| Varcoe Road, South Bermondsey, London, SE16 | £ 435,000 | BUY | 6 / 10 | 0.03 KM |
| Varcoe Road, South Bermondsey, SE16 | £ 305,000 | BUY | Unknown | 0.04 KM |
| Varcoe Road, Bermondsey, SE16 | £ 285,000 | BUY | Unknown | 0.04 KM |
Nearby Properties
| Address | Price | Distance |
|---|---|---|
| 3 Credon Road | £ 318,000 | 0.13 KM |
| 11 Credon Road | £ 580,000 | 0.13 KM |
| 84 Varcoe Road | £ 422,500 | 0.15 KM |
| 88 Varcoe Road | £ 159,000 | 0.15 KM |
| 10 Kingsdown Close | £ 350,000 | 0.16 KM |