Keatons says ..
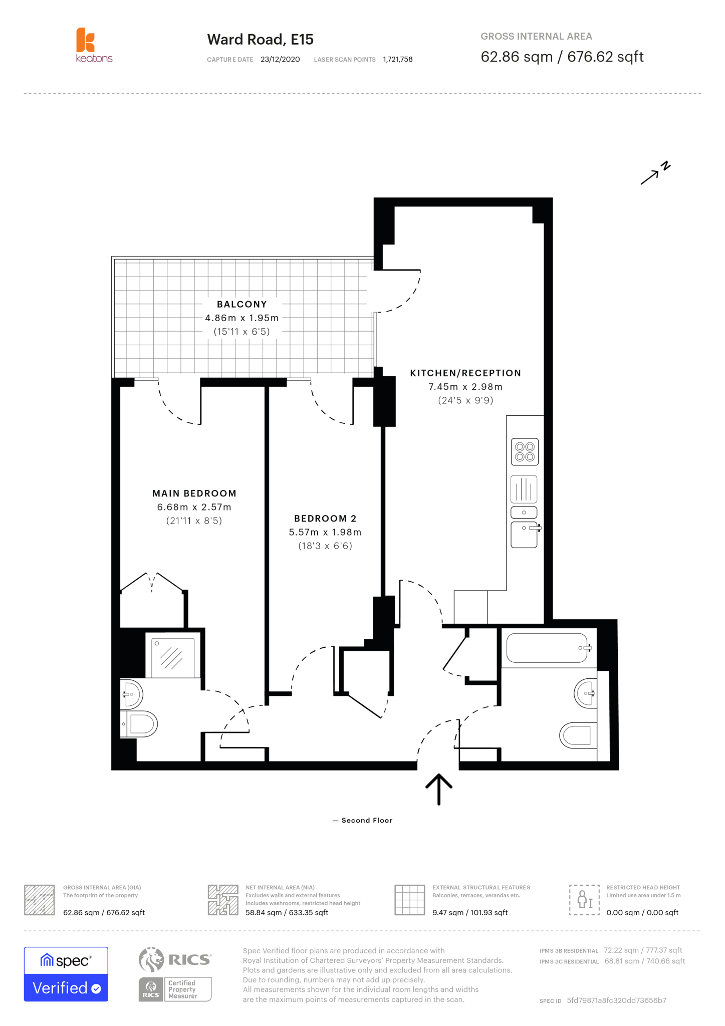
A superb two-bedroom apartment positioned on the second floor of this prestigious modern development, that would make an ideal first time buy, pied-a-terre or rental investment. Immaculately presented throughout, the property consists of two good sized double bedrooms (main with en-suite), spacio...
Property Oracle says ..
This property is a 2-bedroom, 2-bathroom flat located in Stratford, London. The flat is modern and well-presented, with a good-sized balcony. The location is excellent, with easy access to Stratford station and various amenities. The price seems slightly below average for the area, considering the size and condition of the property. However, comparable properties in the area are selling for similar prices, suggesting that the listing price is reasonable.
Therefore, we give this property 7 / 10. *Disclaimer: This is our option and does constitute a recommendation or financial advice. Do your own research. *
- Price
- 7
- Condition
- 8
- Location
- 9
- Land
- 4
- Bedrooms
- 2
- Bathrooms
- 2
- Sqft (est)
- 645.38
- Lot (est)
- 676.62
The heatmap indicates the level of crime in the area. The color of the heatmap indicates the crime severity and recency.
Metrics Year-on-Year
- Average area value
- 414,997.00 £Decreased by 30.96 %
- Est sale value
- 436,276.88 £Decreased by 10.46 %
- Average area rental value
- 2,643.00 £/moDecreased by 19.49 %
- Est letting value
- 2,581.52 £/moUnchanged by 0.00 %
- Est rental Yield
- 7.64 %Increased by 16.64 %
- Crime Rate
- 11.00 %Unchanged by 0.00 %
Agent Activity
Keatons created the listing.
Nearby Schools
| Name | Type | Ofsted | Distance |
|---|---|---|---|
| Carpenters Primary School | Community School | Good | 0.29 KM |
| London Academy Of Excellence | Free Schools 16 To 19 | Outstanding | 0.31 KM |
| Abbey Lane Children'S Centre | Children's Centre | 0.54 KM | |
| John F Kennedy Special School | Academy Special Converter | Outstanding | 0.60 KM |
| School 21 | Free Schools | Outstanding | 0.83 KM |
Images
Nearby Streets
| Name | Average Price | Average Sqft | Distance |
|---|---|---|---|
| International Business Park | £ 0 | 0 | 0.00 KM |
| Meridian Square | £ 675,000 | 0 | 0.00 KM |
| Meridian Steps | £ 0 | 0 | 0.00 KM |
| Service Route No 1 | £ 475,000 | 0 | 0.00 KM |
| Cherry Park Lane | £ 0 | 0 | 0.00 KM |
Nearby Transport
| Name | NLC | TLC | Distance |
|---|---|---|---|
| Stratford | 6969 | SRA | 0.49 KM |
| Stratford International | 7222 | SFA | 1.01 KM |
| Maryland | 6970 | MYL | 1.40 KM |
| West Ham | 7474 | WEH | 1.40 KM |
| Hackney Wick | 6978 | HKW | 2.46 KM |
Nearby Listings
| Address | Price | Type | Score | Distance |
|---|---|---|---|---|
| Ward Road, Stratford, London, E15 | £ 375,000 | BUY | 7 / 10 | 0.00 KM |
| 1 Ward Road, London, E15 | £ 360,000 | BUY | 7 / 10 | 0.00 KM |
| 1 Ward Road, Stratford E15 | £ 400,000 | BUY | 5 / 10 | 0.00 KM |
| Velocity Building, Stratford, E15 | £ 400,000 | BUY | 6 / 10 | 0.01 KM |
| Velocity Building, Ward Road, London E15 | £ 400,000 | BUY | 6 / 10 | 0.01 KM |
Nearby Properties
| Address | Price | Distance |
|---|---|---|
| 10 Kerrison Road | £ 310,000 | 0.13 KM |
| 61 Kerrison Road | £ 190,000 | 0.13 KM |
| 34 Kerrison Road | £ 160,000 | 0.13 KM |
| 28 Kerrison Road | £ 320,000 | 0.13 KM |
| 33 Kerrison Road | £ 180,000 | 0.13 KM |