Newfields, St. Helens, WA10
By Ashtons Estate Agency
£ 220,000
Reviews
3 out of 5 stars
Ashtons Estate Agency says ..
Nestled in a sought-after location, this charming two-bedroom semi-detached bungalow offers a comfortable and convenient living space.
Property Oracle says ..
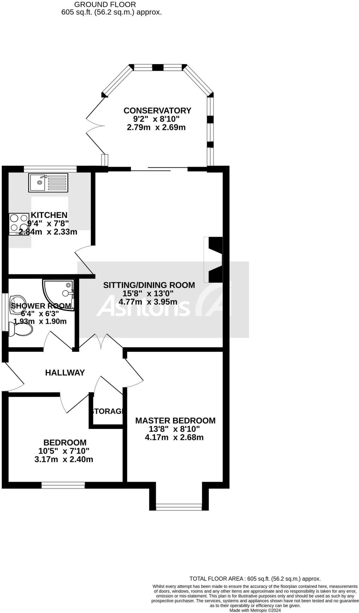
The property is a 2 bedroom semi-detached bungalow situated in Newfields, St Helens, Merseyside. The list price is £220,000. The property appears to be in good condition. The interior is presented well in the photographs, showing a modern kitchen and updated bathrooms. The flooring and decor are contemporary. There is no visible evidence of significant repairs or renovations needed. The exterior is also well-maintained, with a neat garden and landscaping. The plot size is 605 sqft, which is relatively small compared to the average house in the area. However, the garden is well-maintained and includes a conservatory, providing additional living space. Considering the average house price in the area is £159,375 and the average price per sqft is £184, this property, at £220,000, is priced above average. However, several comparable properties in the immediate vicinity have sold for similar or higher prices, suggesting the asking price may be reasonable given its condition and location. The lack of sqft data for nearby properties makes a precise comparison challenging. The property’s modern condition and the inclusion of a conservatory could justify the higher price point compared to other properties in the area. The location is positive. The property is within close proximity to several well-regarded primary schools with good Ofsted ratings. Several train stations are also within a reasonable distance, providing convenient access to public transportation.
Therefore, we give this property 7 / 10. *Disclaimer: This is our option and does constitute a recommendation or financial advice. Do your own research. *
- Price
- 7
- Condition
- 9
- Location
- 8
- Land
- 6
- Bedrooms
- 2
- Bathrooms
- 1
- Sqft (est)
- 521.00
- Lot (est)
- 605.00
The heatmap indicates the level of crime in the area. The color of the heatmap indicates the crime severity and recency.
Metrics Year-on-Year
- Average area value
- 108,927.00 £Decreased by 39.45 %
- Est sale value
- 80,755.00 £Decreased by 15.76 %
- Average area rental value
- 831.00 £/moDecreased by 0.60 %
- Est letting value
- 521.00 £/mo
- Est rental Yield
- 9.15 %Increased by 63.98 %
- Crime Rate
- 2.00 %Unchanged by 0.00 %
Agent Activity
Ashtons Estate Agency created the listing.
Nearby Schools
| Name | Type | Ofsted | Distance |
|---|---|---|---|
| St Teresa'S Catholic Primary School, Devon Street | Voluntary Aided School | Good | 0.54 KM |
| Queen'S Park Cofe/Urc Primary School | Voluntary Controlled School | Good | 0.68 KM |
| De La Salle School | Voluntary Aided School | Requires improvement | 0.88 KM |
| St Thomas Of Canterbury Catholic Primary School | Voluntary Aided School | Good | 1.04 KM |
| Bleak Hill Primary School | Community School | Outstanding | 1.17 KM |
Images
Nearby Streets
| Name | Average Price | Average Sqft | Distance |
|---|---|---|---|
| Tennis Street | £ 0 | 0 | 0.00 KM |
| Saint George's Avenue | £ 360,000 | 0 | 0.00 KM |
| Bridgeman Street | £ 105,000 | 0 | 0.00 KM |
| Silkstone Close | £ 0 | 0 | 0.00 KM |
| Chaucer Road | £ 0 | 0 | 0.00 KM |
Nearby Transport
| Name | NLC | TLC | Distance |
|---|---|---|---|
| Thatto Heath | 2264 | THH | 2.21 KM |
| Eccleston Park | 2227 | ECL | 3.49 KM |
| St Helens Central | 2341 | SNH | 3.49 KM |
| Rainhill | 2296 | RNH | 4.39 KM |
| Lea Green | 2339 | LEG | 5.22 KM |
Nearby Listings
| Address | Price | Type | Score | Distance |
|---|---|---|---|---|
| Newfields, St. Helens, WA10 | £ 220,000 | BUY | 7 / 10 | 0.00 KM |
| Newfields, Eccleston, St Helens, WA10 | £ 220,000 | BUY | 6 / 10 | 0.04 KM |
| Newfields, St Helens, WA10 | £ 210,000 | BUY | Unknown | 0.04 KM |
| Beaumont Avenue, St Helens | £ 319,950 | BUY | 6 / 10 | 0.08 KM |
| Fairclough Road, St. Helens, WA10 | £ 215,000 | BUY | 6 / 10 | 0.12 KM |
Nearby Properties
| Address | Price | Distance |
|---|---|---|
| 15 Newfields | £ 90,000 | 0.04 KM |
| 40 Newfields | £ 195,000 | 0.04 KM |
| 11 Newfields | £ 162,000 | 0.04 KM |
| 26 Newfields | £ 49,950 | 0.04 KM |
| 36 Newfields | £ 130,500 | 0.04 KM |