Yopa says ..
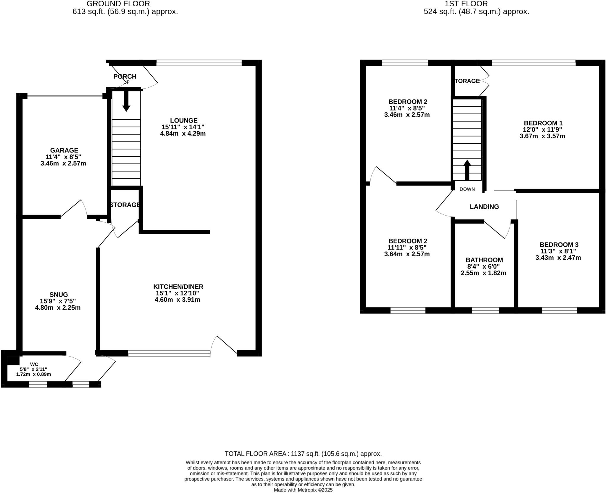
Stunning extended 3/4 bedroom home in Underwood, Plympton. High-quality finish with spacious lounge, stunning kitchen/diner, snug with W/C, and three double bedrooms. Bedroom split offers 4–5 bed potential. South-facing garden, small garage and off-road parking.
Property Oracle says ..
This is a semi-detached property in Plympton Erle, Plymouth. It features 4 bedrooms and 2 bathrooms, with a total square footage of 1,137. The property benefits from a modern interior, a garden with a decked area, and proximity to local schools and transportation links. While the listing price is above the average for the street, the property offers a larger square footage.
Therefore, we give this property 7 / 10. *Disclaimer: This is our option and does constitute a recommendation or financial advice. Do your own research. *
- Price
- 6
- Condition
- 8
- Location
- 7
- Land
- 7
- Bedrooms
- 4
- Bathrooms
- 2
- Sqft (est)
- 1,137.00
The heatmap indicates the level of crime in the area. The color of the heatmap indicates the crime severity and recency.
Metrics Year-on-Year
- Average area value
- 265,555.00 £Decreased by 8.31 %
- Est sale value
- 415,005.00 £Increased by 79.80 %
- Average area rental value
- 1,450.00 £/moIncreased by 26.53 %
- Est letting value
- 1,137.00 £/mo
- Est rental Yield
- 6.55 %Increased by 37.89 %
- Crime Rate
- 21.00 %Unchanged by 0.00 %
Agent Activity
Yopa created the listing.
Nearby Schools
| Name | Type | Ofsted | Distance |
|---|---|---|---|
| Plympton St Mary'S Cofe Infant School | Academy Converter | 0.44 KM | |
| Old Priory Junior Academy | Academy Converter | Requires improvement | 0.68 KM |
| Hele'S School | Academy Converter | Good | 0.86 KM |
| Boringdon Primary School | Academy Converter | 1.12 KM | |
| Plum Tree Children'S Centre | Children's Centre | 1.20 KM |
Images
Nearby Streets
| Name | Average Price | Average Sqft | Distance |
|---|---|---|---|
| Kennel Hill | £ 220,000 | 0 | 0.00 KM |
| Tommys Lane | £ 300,000 | 0 | 0.00 KM |
| St Mary's Road | £ 280,000 | 0 | 0.00 KM |
| St Stephen's Place | £ 120,000 | 0 | 0.00 KM |
| Merafield Road | £ 250,000 | 0 | 0.00 KM |
Nearby Transport
| Name | NLC | TLC | Distance |
|---|---|---|---|
| Plymouth | 3580 | PLY | 8.98 KM |
Nearby Listings
| Address | Price | Type | Score | Distance |
|---|---|---|---|---|
| Kennel Hill Close, Plymouth, PL7 | £ 325,000 | BUY | 7 / 10 | 0.00 KM |
| Kennel Hill Close, Plymouth, Devon | £ 220,000 | BUY | Unknown | 0.00 KM |
| Kennel Hill Close, Plymouth, Devon | £ 190,000 | BUY | 6 / 10 | 0.05 KM |
| Kennel Hill Close, Plymouth | £ 224,950 | BUY | 7 / 10 | 0.05 KM |
| Merafield Road, Plymouth, Devon | £ 160,000 | BUY | 6 / 10 | 0.06 KM |
Nearby Properties
| Address | Price | Distance |
|---|---|---|
| 27 Kennel Hill Close | £ 175,000 | 0.01 KM |
| 32 Kennel Hill Close | £ 131,000 | 0.01 KM |
| 23 Kennel Hill Close | £ 135,000 | 0.01 KM |
| 15 Kennel Hill Close | £ 137,000 | 0.01 KM |
| 9 Kennel Hill Close | £ 165,000 | 0.01 KM |