Henry Adams says ..
Stylish 2-bed detached bungalow in desirable location. Modern interior, south-facing garden, off-road parking for 3-4 cars, close to amenities & bus route. EPC-D, Council Tax-D
Property Oracle says ..
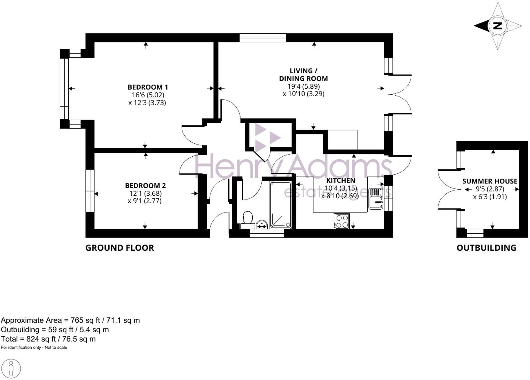
This two-bedroom detached bungalow located on Green Lane in Selsey, West Sussex, presents a desirable option for potential buyers. The property’s interior has undergone what appears to be recent refurbishment, resulting in a modern and updated living space. The kitchen and bathroom are particularly noteworthy for their contemporary styling and apparent good condition. The property benefits from a garden, offering outdoor space, along with various garden features. The location in Selsey offers a balance between coastal living and access to local amenities, including nearby well-regarded primary schools. While precise square footage is unavailable, preventing a definitive price-per-square-foot analysis, the list price appears to be reasonably competitive with comparable properties in the area. The lack of detailed information regarding plot size, property square footage, and proximity to public transportation somewhat limits a fully comprehensive analysis, but overall, the property presents itself favorably.
Therefore, we give this property 7 / 10. *Disclaimer: This is our option and does constitute a recommendation or financial advice. Do your own research. *
- Price
- 7
- Condition
- 8
- Location
- 7
- Land
- 6
- Bedrooms
- 2
- Bathrooms
- 1
The heatmap indicates the level of crime in the area. The color of the heatmap indicates the crime severity and recency.
Metrics Year-on-Year
- Average area value
- 291,999.00 £Decreased by 21.52 %
- Average area rental value
- 1,050.00 £/moIncreased by 9.95 %
- Est rental Yield
- 4.32 %Increased by 40.26 %
- Crime Rate
- 3.00 %Unchanged by 0.00 %
Agent Activity
Henry Adams created the listing.
Nearby Schools
| Name | Type | Ofsted | Distance |
|---|---|---|---|
| Selsey Children & Family Centre | Children's Centre | 0.57 KM | |
| Seal Primary Academy | Academy Sponsor Led | Good | 0.61 KM |
| Medmerry Primary School | Academy Converter | Good | 0.80 KM |
| The Academy, Selsey | Academy Sponsor Led | Good | 0.92 KM |
| Sidlesham Primary School | Community School | Good | 5.17 KM |
Images
Nearby Streets
| Name | Average Price | Average Sqft | Distance |
|---|---|---|---|
| Longacre | £ 0 | 0 | 0.00 KM |
| Latham Road | £ 572,500 | 0 | 0.00 KM |
| Croft Road | £ 375,000 | 0 | 0.00 KM |
| Malden Way | £ 335,000 | 0 | 0.00 KM |
| Pennycord Close | £ 320,000 | 0 | 0.00 KM |
Nearby Listings
| Address | Price | Type | Score | Distance |
|---|---|---|---|---|
| Green Lane, Selsey, PO20 | £ 415,000 | BUY | 7 / 10 | 0.00 KM |
| Ursula Avenue, Selsey, West Sussex, PO20 | £ 650,000 | BUY | 7 / 10 | 0.07 KM |
| Ursula Avenue, Selsey, PO20 | £ 560,000 | BUY | 7 / 10 | 0.09 KM |
| Longacre, Selsey, PO20 | £ 465,000 | BUY | 6 / 10 | 0.12 KM |
| Ursula Avenue, Selsey | £ 595,000 | BUY | 7 / 10 | 0.12 KM |
Nearby Properties
| Address | Price | Distance |
|---|---|---|
| 36a Green Lane | £ 465,000 | 0.09 KM |
| 48 Green Lane | £ 265,000 | 0.09 KM |
| 36 Green Lane | £ 485,000 | 0.09 KM |
| 40 Green Lane | £ 268,000 | 0.09 KM |
| 46 Green Lane | £ 130,000 | 0.09 KM |