Rock Terrace, Bakewell
By Eadon Lockwood & Riddle
£ 575,000
Reviews
3 out of 5 stars
Eadon Lockwood & Riddle says ..
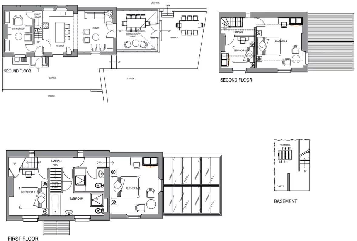
A substantial four bedroomed family home beautifully positioned in the market town of Bakewell, with extensive off-road parking, charming gardens and panoramic views across Bakewell golf course. This lovely family home has beautifully presented accommodation arranged over three floors and is ide...
Property Oracle says ..
Therefore, we give this property 7 / 10. *Disclaimer: This is our option and does constitute a recommendation or financial advice. Do your own research. *
- Price
- 7
- Condition
- 8
- Location
- 8
- Land
- 7
- Bedrooms
- 4
- Bathrooms
- 2
- Sqft (est)
- 1,445.00
The heatmap indicates the level of crime in the area. The color of the heatmap indicates the crime severity and recency.
Metrics Year-on-Year
- Average area value
- 396,667.00 £Decreased by 16.14 %
- Est sale value
- 341,020.00 £Decreased by 3.67 %
- Average area rental value
- 1,063.00 £/moDecreased by 17.08 %
- Est letting value
- 0.00 £/mo
- Est rental Yield
- 3.22 %Decreased by 0.92 %
- Crime Rate
- 18.00 %Unchanged by 0.00 %
from 473,026.00 £
from 354,025.00 £
from 1,282.00 £/mo
from 0.00 £/mo
from 3.25 %
from 18.00 %
Agent Activity
Eadon Lockwood & Riddle created the listing.
Nearby Schools
| Name | Type | Ofsted | Distance |
|---|---|---|---|
| Bakewell Cofe Infant School | Academy Converter | 0.29 KM | |
| St Anselm'S School | Other Independent School | 0.29 KM | |
| Bakewell Methodist Junior School | Voluntary Controlled School | Requires improvement | 0.97 KM |
| Lady Manners School | Foundation School | Good | 1.11 KM |
| Longstone Cofe Primary School | Voluntary Aided School | Good | 4.11 KM |
Images
Nearby Streets
| Name | Average Price | Average Sqft | Distance |
|---|---|---|---|
| Mill Street | £ 0 | 0 | 0.00 KM |
| Holme Lane | £ 385,000 | 0 | 0.00 KM |
| Bridge Street | £ 822,500 | 0 | 0.00 KM |
| Chapel Row | £ 285,000 | 0 | 0.00 KM |
| The Avenue | £ 625,000 | 0 | 0.00 KM |
Nearby Listings
| Address | Price | Type | Score | Distance |
|---|---|---|---|---|
| Rock Terrace, Bakewell | £ 575,000 | BUY | 7 / 10 | 0.00 KM |
| Rock Terrace, Bakewell | £ 150,000 | BUY | 5 / 10 | 0.01 KM |
| Dragonfly Cottage, Fly Hill, Bakewell, DE45 1DN | £ 525,000 | BUY | 8 / 10 | 0.09 KM |
| Bagshaw Hill, Bakewell | £ 550,000 | BUY | 7 / 10 | 0.12 KM |
| Buxton Road, Bakewell | £ 299,950 | BUY | 6 / 10 | 0.15 KM |
Nearby Properties
| Address | Price | Distance |
|---|---|---|
| 11 Rock Terrace | £ 516,500 | 0.01 KM |
| 8 Rock Terrace | £ 115,000 | 0.01 KM |
| 3 Rock Terrace | £ 157,500 | 0.01 KM |
| 5 Rock Terrace | £ 150,000 | 0.01 KM |
| 6 Rock Terrace | £ 147,000 | 0.01 KM |