Winkworth says ..
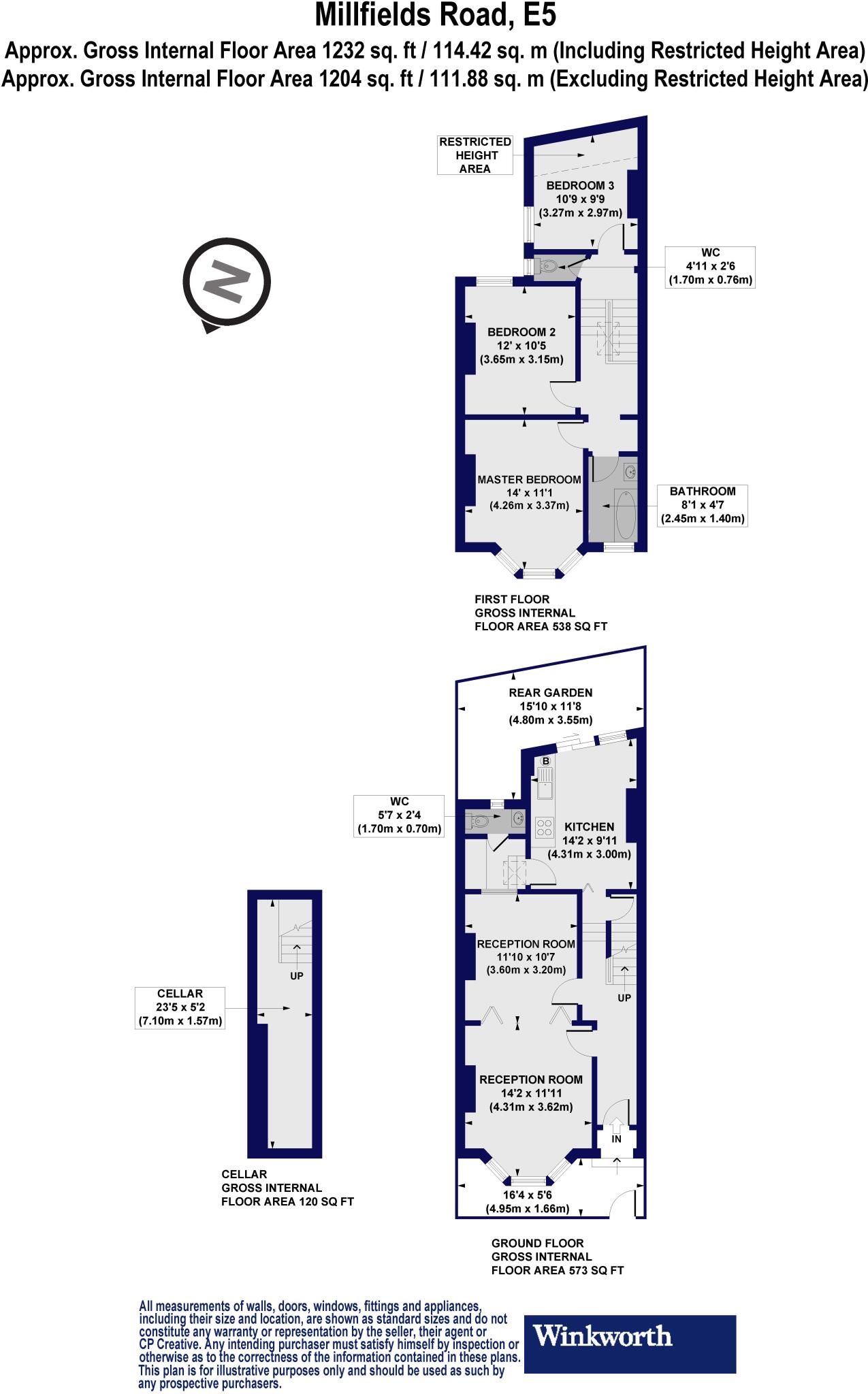
Nestled in the heart of vibrant Lower Clapton, this charming three-bedroom Victorian terrace seamlessly blends period character with modern comfort. Set on the ever-popular Millfields Road, the home offers generous living space, elegant proportions, and a bright, welcoming atmosphere throughout.<...
Property Oracle says ..
This is a three-bedroom house located on Millfields Road in Lower Clapton, Hackney. The property offers 1,231.61 square feet of living space and includes a garden. The house is situated in a desirable location, with good access to transportation, schools, and local amenities. While the property is in reasonable condition, it would benefit from some modernisation, particularly in the kitchen and bathroom. The asking price of £1,100,000 is relatively high compared to the average price in the area, but the location and size of the property contribute to its value. The property retains some of its original period features.
Therefore, we give this property 6 / 10. *Disclaimer: This is our option and does constitute a recommendation or financial advice. Do your own research. *
- Price
- 5
- Condition
- 6
- Location
- 8
- Land
- 6
- Bedrooms
- 3
- Bathrooms
- 1
- Sqft (est)
- 1,231.61
The heatmap indicates the level of crime in the area. The color of the heatmap indicates the crime severity and recency.
Metrics Year-on-Year
- Average area value
- 493,056.00 £Decreased by 16.30 %
- Est sale value
- 902,770.13 £Increased by 15.80 %
- Average area rental value
- 2,526.00 £/moIncreased by 9.40 %
- Est letting value
- 3,694.83 £/moIncreased by 50.00 %
- Est rental Yield
- 6.15 %Increased by 30.85 %
- Crime Rate
- 6.00 %Unchanged by 0.00 %
Agent Activity
Winkworth created the listing.
Nearby Schools
| Name | Type | Ofsted | Distance |
|---|---|---|---|
| Millfields Community School | Community School | Good | 0.13 KM |
| Clapton Girls' Academy | Academy Converter | Outstanding | 0.14 KM |
| Millfields Children'S Centre | Children's Centre | 0.20 KM | |
| Rushmore Primary School | Community School | Good | 0.58 KM |
| The Brooke House Sixth Form College | Further Education | Good | 0.63 KM |
Images
Nearby Streets
| Name | Average Price | Average Sqft | Distance |
|---|---|---|---|
| Laura Place | £ 0 | 0 | 0.00 KM |
| Maitland Place | £ 0 | 0 | 0.00 KM |
| Tilia Road | £ 425,000 | 0 | 0.00 KM |
| Chatsworth Road | £ 0 | 0 | 0.00 KM |
| Fletching Road | £ 0 | 0 | 0.00 KM |
Nearby Transport
| Name | NLC | TLC | Distance |
|---|---|---|---|
| Clapton | 6926 | CPT | 0.83 KM |
| Hackney Central | 6977 | HKC | 1.08 KM |
| Hackney Downs | 6867 | HAC | 1.26 KM |
| Homerton | 6979 | HMN | 1.47 KM |
| London Fields | 6966 | LOF | 1.77 KM |
Nearby Listings
| Address | Price | Type | Score | Distance |
|---|---|---|---|---|
| Millfields Road, London, E5 | £ 1,100,000 | BUY | 6 / 10 | 0.00 KM |
| Millfields Road, Clapton | £ 1,100,000 | BUY | 6 / 10 | 0.01 KM |
| Millfields Road, Clapton | £ 1,100,000 | BUY | 6 / 10 | 0.03 KM |
| Hilsea Street, London | £ 1,075,000 | BUY | 6 / 10 | 0.04 KM |
| Millfields Road, Lower Clapton, London, E5 | £ 1,250,000 | BUY | 6 / 10 | 0.05 KM |
Nearby Properties
| Address | Price | Distance |
|---|---|---|
| 32 Millfields Road | £ 875,000 | 0.01 KM |
| 28 Millfields Road | £ 280,000 | 0.01 KM |
| 26b Millfields Road | £ 91,500 | 0.01 KM |
| 42 Millfields Road | £ 325,000 | 0.01 KM |
| 54 Millfields Road | £ 585,000 | 0.01 KM |