Lodge Lane, Axminster
ST

Lodge Lane, Axminster

By Stags

£ 650,000

Reviews

4 out of 5 stars

Stags says ..

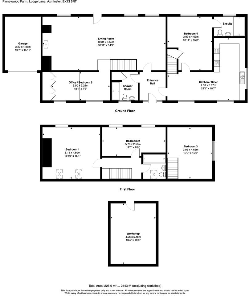
Set in an enviable and tranquil position amidst rolling hills and open farmland, this 4/5 bedroom detached Farmhouse has been extended and tastefully modernised over recent years. With garage, parking and wrap around gardens.

Property Oracle says ..

A detached property in Axminster, East Devon. The property has been modernised and is in good condition, with a large garden and a detached garage. It is located a few kilometers from local schools and the train station. The price per square foot is lower than the average for the area.

Therefore, we give this property 8 / 10. *Disclaimer: This is our option and does constitute a recommendation or financial advice. Do your own research. *

Price
9
Condition
8
Location
7
Land
8
Bedrooms
4
Bathrooms
3
Sqft (est)
2,283.83

The heatmap indicates the level of crime in the area. The color of the heatmap indicates the crime severity and recency.

Metrics Year-on-Year

Average area value
409,094.00 £
Increased by 31.35 %
from 311,458.00 £
Est sale value
785,637.52 £
Increased by 41.56 %
from 554,970.69 £
Average area rental value
1,235.00 £/mo
Increased by 34.24 %
from 920.00 £/mo
Est letting value
2,283.83 £/mo
from 0.00 £/mo
Est rental Yield
3.62 %
Increased by 2.26 %
from 3.54 %
Crime Rate
0.00 %
from 0.00 %

Agent Activity

  • Stags created the listing.

Nearby Schools

NameTypeOfstedDistance
All Saints Church Of England Primary SchoolAcademy ConverterGood2.04 KM
Axminster Community Primary AcademyAcademy ConverterGood2.85 KM
St Mary'S Catholic Primary School, AxminsterAcademy ConverterGood3.10 KM
Axe Valley AcademyAcademy Sponsor LedRequires improvement3.11 KM
St Andrew'S Cofe Primary AcademyAcademy ConverterRequires improvement4.06 KM

Images

PinneywoodFarm.32.jpg PinneywoodFarm.29 EDIT.jpg PinneywoodFarm.11.jpg PinneywoodFarm.8.jpg PinneywoodFarm.7.jpg PinneywoodFarm.23.jpg PinneywoodFarm.22.jpg PinneywoodFarm.17.jpg PinneywoodFarm.39.jpg PinneywoodFarm.40.jpg PinneywoodFarm.31.jpg PinneywoodFarm.1.jpg PinneywoodFarm.43.jpg PinneywoodFarm.44.jpg PinneywoodFarm.41.jpg PinneywoodFarm.42.jpg PinneywoodFarm.38.jpg PinneywoodFarm.45.jpg PinneywoodFarm.2.jpg PinneywoodFarm.4.jpg PinneywoodFarm.5.jpg PinneywoodFarm.6.jpg PinneywoodFarm.10.jpg PinneywoodFarm.9.jpg PinneywoodFarm.12.jpg PinneywoodFarm.13.jpg PinneywoodFarm.14.jpg PinneywoodFarm.15.jpg PinneywoodFarm.16.jpg PinneywoodFarm.18.jpg PinneywoodFarm.19.jpg PinneywoodFarm.20.jpg PinneywoodFarm.21.jpg PinneywoodFarm.24.jpg PinneywoodFarm.25.jpg PinneywoodFarm.26.jpg PinneywoodFarm.27.jpg PinneywoodFarm.28.jpg PinneywoodFarm.30.jpg PinneywoodFarm.33.jpg PinneywoodFarm.34.jpg PinneywoodFarm.35.jpg PinneywoodFarm.36.jpg PinneywoodFarm.37.jpg

Nearby Streets

NameAverage PriceAverage SqftDistance
St George's Avenue £ 210,00000.00 KM

Nearby Transport

NameNLCTLCDistance
Axminster5714AXM4.29 KM

Nearby Listings

AddressPriceTypeScoreDistance
Lodge Lane, Axminster £ 650,000BUY8 / 100.00 KM
Land & Building at Lodge Lane, Weycroft, Axminster £ 35,000BUY5 / 100.80 KM
Weycroft, Axminster, Devon £ 375,000BUY6 / 101.55 KM
Heals Field, Axminster £ 195,000BUY5 / 101.88 KM
Heals Field, Axminster £ 125,000BUY5 / 101.88 KM

Nearby Properties

AddressPriceDistance
7 Waggs Plot £ 227,0001.20 KM
Homeleigh £ 285,0001.21 KM
6 Waggs Plot £ 285,0001.21 KM
5 Waggs Plot £ 210,0001.22 KM
11 Waggsplot £ 47,5001.22 KM