Robin Hood Lane, Wrightington, WN6 9QG
Maria B Evans Estate Agents logo

Robin Hood Lane, Wrightington, WN6 9QG

By Maria B Evans Estate Agents

£ 895,000

Reviews

4 out of 5 stars

Maria B Evans Estate Agents says ..

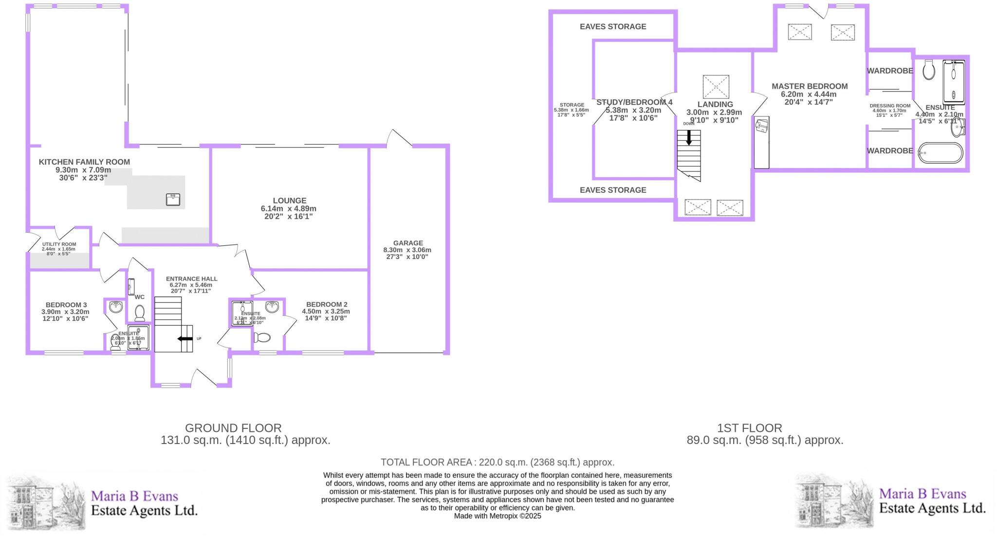
Coming to the market for the first time, this stunning, individually designed home offers carefully considered accommodation with a contemporary finish and apex windows which take full advantage of its location by enhancing the light within and the spectacular rural aspects beyond the garden. Imm...

Property Oracle says ..

The property is a 4 bedroom, 3 bathroom detached house located in Wrightington, West Lancashire. The property is listed at £895,000 and has 2,806.58 sqft of living space and a plot size of 2,368.06 sqft. Based on the images provided, the property appears to be in excellent condition and has been recently renovated to a high standard. The interior is modern and well-maintained, with a contemporary kitchen and bathrooms. The property benefits from a large garden with views of open countryside. The location is in a desirable area of Wrightington, which is known for its peaceful setting and proximity to good schools and transport links. Appley Bridge train station is within a reasonable distance, providing convenient access to major cities. Several well-regarded primary schools are located nearby, making this an attractive option for families. Considering the property’s excellent condition, desirable location, and substantial plot size, the list price of £895,000 appears to be in line with, or potentially slightly above, the average price per square foot in the area. However, the lack of comparable properties with similar features and plot sizes makes a precise price comparison difficult. The average price for properties in the area is significantly lower (£404,387), but these are likely smaller properties without the same level of renovation or land size. The higher-priced nearby listings (£550,000 and £715,000) offer some context, though specifics on their size and condition are not provided. Therefore, while the price may seem high compared to the average, it is arguably justified given the property’s condition, size, and location.

Therefore, we give this property 9 / 10. *Disclaimer: This is our option and does constitute a recommendation or financial advice. Do your own research. *

Price
8
Condition
10
Location
9
Land
10
Bedrooms
4
Bathrooms
3
Sqft (est)
2,806.58
Lot (est)
2,368.06

The heatmap indicates the level of crime in the area. The color of the heatmap indicates the crime severity and recency.

Metrics Year-on-Year

Average area value
382,533.00 £
Increased by 3.77 %
from 368,645.00 £
Est sale value
1,032,821.44 £
Increased by 5.44 %
from 979,496.42 £
Average area rental value
1,090.00 £/mo
Decreased by 17.67 %
from 1,324.00 £/mo
Est letting value
2,806.58 £/mo
Unchanged by 0.00 %
from 2,806.58 £/mo
Est rental Yield
3.42 %
Decreased by 20.65 %
from 4.31 %
Crime Rate
9.00 %
Unchanged by 0.00 %
from 9.00 %

Agent Activity

  • Maria B Evans Estate Agents created the listing.

Nearby Schools

NameTypeOfstedDistance
Appley Bridge All Saints Church Of England Primary SchoolVoluntary Aided SchoolGood1.41 KM
Wrightington Mossy Lea Primary SchoolCommunity SchoolGood2.84 KM
Shevington Vale Primary SchoolCommunity SchoolGood3.08 KM
St Joseph'S Catholic Primary School, WrightingtonVoluntary Aided SchoolGood3.27 KM
Fir Tree Fishery CicSpecial Post 16 Institution3.36 KM

Images

Photo 28 Photo 15 Photo 13 Photo 23 Photo 12 Photo 14 Photo 21 Photo 36 Photo 37 Photo 19 Photo 40 Photo 22 Photo 43 Photo 20 Photo 38 Photo 18 Photo 11 Photo 10 Photo 17 Photo 16 Photo 9 Photo 35 Photo 7 Photo 4 Photo 5 Photo 3 Photo 2 Photo 39 Photo 33 Photo 8 Photo 34 Photo 24 Photo 25 Photo 26 Photo 33 Photo 27 Photo 30 Photo 31 Photo 29 Photo 42 Photo 32 Photo 41

Nearby Transport

NameNLCTLCDistance
Appley Bridge2396APB2.32 KM
Parbold2402PBL5.05 KM
Gathurst2397GST5.56 KM
Orrell2259ORR7.81 KM
Upholland2364UPL7.99 KM

Nearby Listings

AddressPriceTypeScoreDistance
Robin Hood Lane, Wrightington, WN6 9QG £ 895,000BUY9 / 100.00 KM
Moss Lane, Wrightington, Wigan £ 800,000BUY7 / 100.55 KM
Bidston, Robin Hood Lane, WN6 9QQ £ 485,000BUY7 / 100.57 KM
Earlswood, Moss Lane, Wrightington WN6 9PF £ 1,350,000BUY7 / 100.71 KM
Hall Lane, Wrightington, Wigan £ 575,000BUY6 / 100.71 KM

Nearby Properties

AddressPriceDistance
Overdale £ 320,0000.22 KM
Highfields £ 415,0000.22 KM
Bow Cottage £ 345,0000.22 KM
Whitehouse £ 450,0000.22 KM
Yew Tree Cottage £ 500,0000.22 KM