Woolmers Lane, Bickington, Barnstaple, Devon, EX31
By Jackson-Stops
£ 425,000
Reviews
4 out of 5 stars
Jackson-Stops says ..
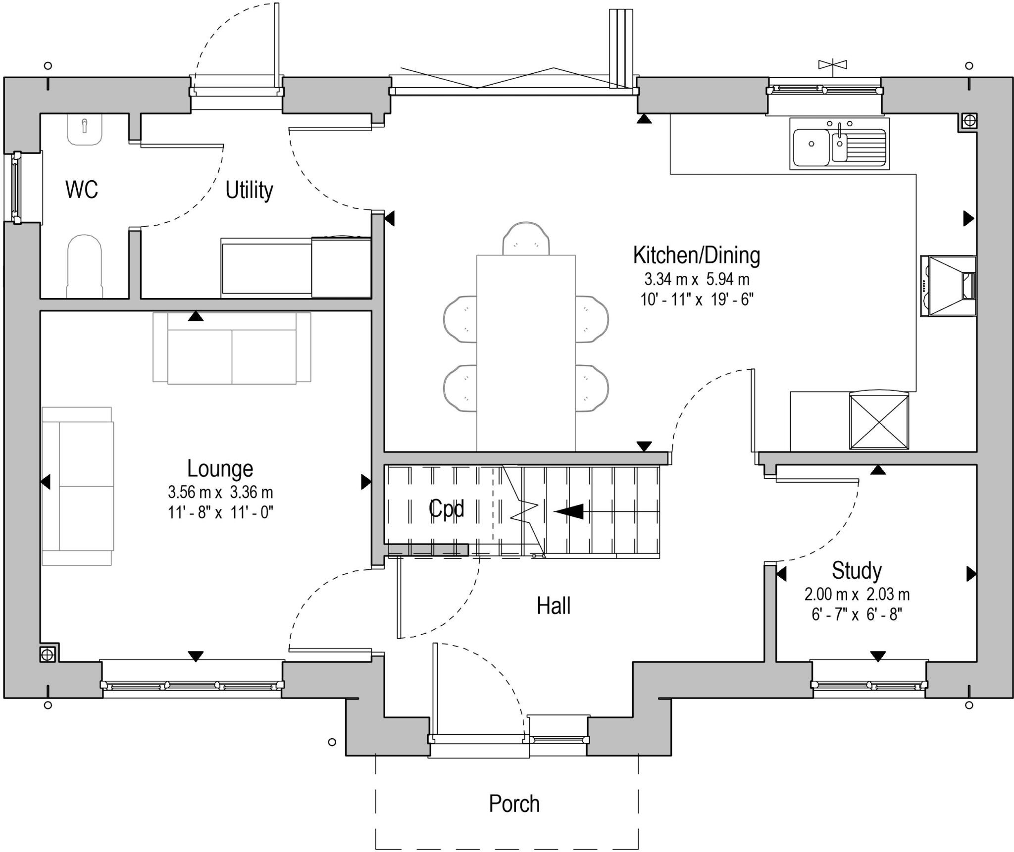
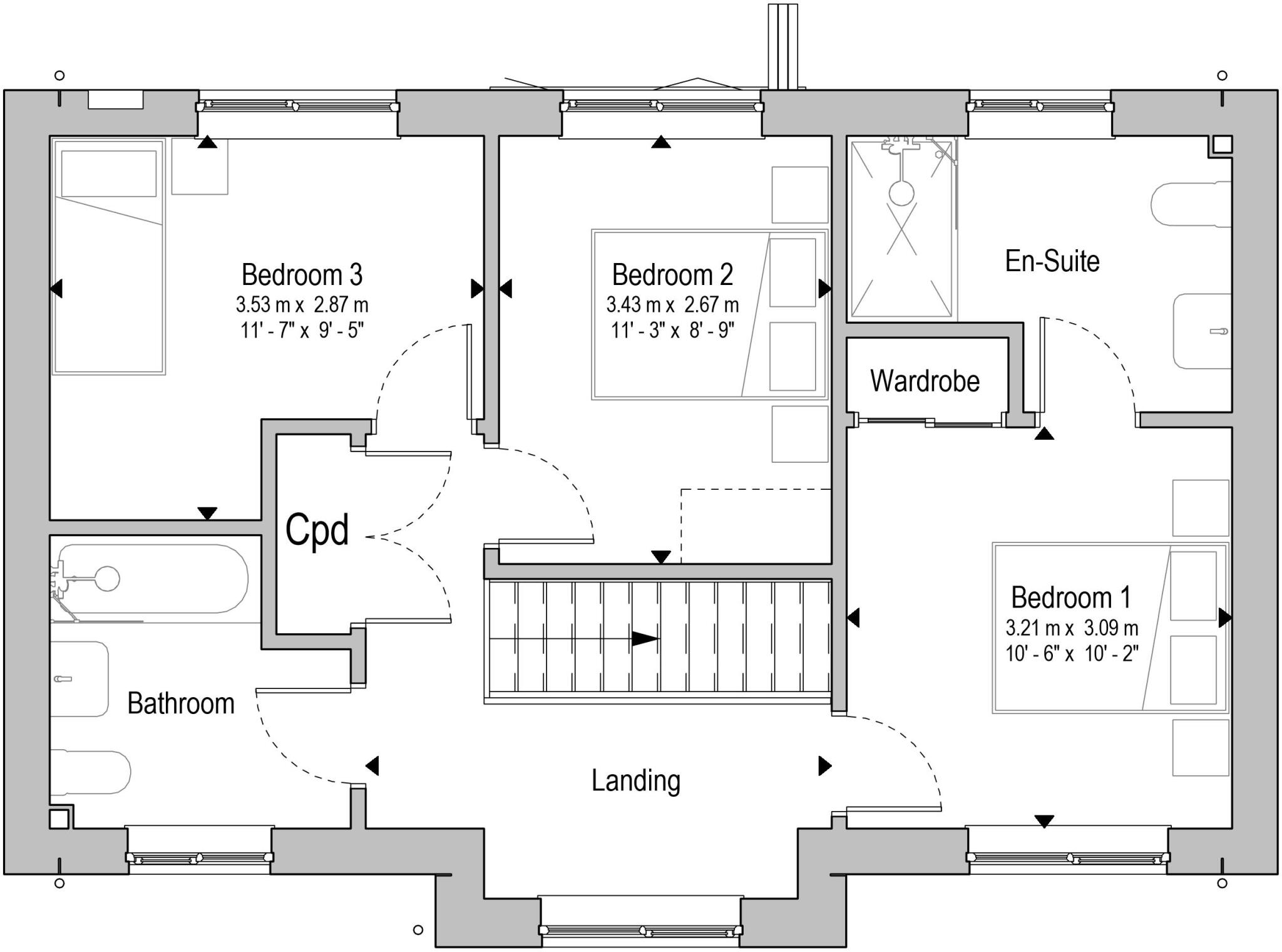
Kestral – An attractive detached home with a family orientated kitchen/dining room with bi-folding doors onto the garden, sitting room and separate study and three bedrooms (one en suite) and a family bathroom. Driveway providing off road parking and a detached garage. We are ext...
Property Oracle says ..
The property is a modern detached house located in Bickington, North Devon, with a list price within the average range for the area. The property appears to be in excellent condition based on the images provided, and it includes a garage and garden. The location offers convenient access to schools and transportation. Overall, the property seems to be a good value.
Therefore, we give this property 8 / 10. *Disclaimer: This is our option and does constitute a recommendation or financial advice. Do your own research. *
- Price
- 7
- Condition
- 10
- Location
- 7
- Land
- 8
- Bedrooms
- 3
- Bathrooms
- 2
The heatmap indicates the level of crime in the area. The color of the heatmap indicates the crime severity and recency.
Metrics Year-on-Year
- Average area value
- 661,000.00 £Increased by 29.29 %
- Average area rental value
- 2,410.00 £/moIncreased by 120.90 %
- Est rental Yield
- 4.38 %Increased by 71.09 %
- Crime Rate
- 11.00 %Unchanged by 0.00 %
Agent Activity
Jackson-Stops marked this listing as sold.
Jackson-Stops created the listing.
Nearby Schools
| Name | Type | Ofsted | Distance |
|---|---|---|---|
| Roundswell Community Primary Academy | Free Schools | 0.84 KM | |
| The Shoreline Academy | Academy Alternative Provision Sponsor Led | 1.31 KM | |
| Sticklepath Community Primary Academy | Academy Converter | 1.69 KM | |
| Barnstaple (Sticklepath) | Children's Centre | 1.83 KM | |
| Petroc | Further Education | Good | 3.13 KM |
Images
Nearby Streets
| Name | Average Price | Average Sqft | Distance |
|---|---|---|---|
| Old Bakery Cottages | £ 0 | 0 | 0.00 KM |
| The Orchard | £ 0 | 0 | 0.00 KM |
| Muddle Brook | £ 0 | 0 | 0.00 KM |
| Spinney Close | £ 393,000 | 0 | 0.00 KM |
| Honeysuckle Close | £ 0 | 0 | 0.00 KM |
Nearby Transport
| Name | NLC | TLC | Distance |
|---|---|---|---|
| Barnstaple | 5725 | BNP | 3.82 KM |
Nearby Listings
| Address | Price | Type | Score | Distance |
|---|---|---|---|---|
| Woolmers Lane, Bickington, Barnstaple, Devon, EX31 | £ 350,000 | BUY | 7 / 10 | 0.00 KM |
| Woolmers Lane, Bickington, Barnstaple, Devon, EX31 | £ 425,000 | BUY | 8 / 10 | 0.00 KM |
| Woolmers Lane, Bickington, Barnstaple, Devon, EX31 | £ 425,000 | BUY | 8 / 10 | 0.00 KM |
| Woolmers Lane, Bickington, Barnstaple, Devon, EX31 | £ 560,000 | BUY | 7 / 10 | 0.00 KM |
| Woolmers Lane, Bickington, Barnstaple, Devon, EX31 | £ 335,000 | BUY | 7 / 10 | 0.00 KM |
Nearby Properties
| Address | Price | Distance |
|---|---|---|
| 9 Holland Close | £ 175,000 | 0.10 KM |
| 8 Holland Close | £ 327,000 | 0.10 KM |
| 7 Holland Close | £ 298,000 | 0.10 KM |
| 6 Holland Close | £ 210,000 | 0.10 KM |
| 4 Holland Close | £ 215,000 | 0.10 KM |