22 Abbotsford Road, Cumbernauld, G67
By Village Estates
£ 105,000
Reviews
3 out of 5 stars
Village Estates says ..
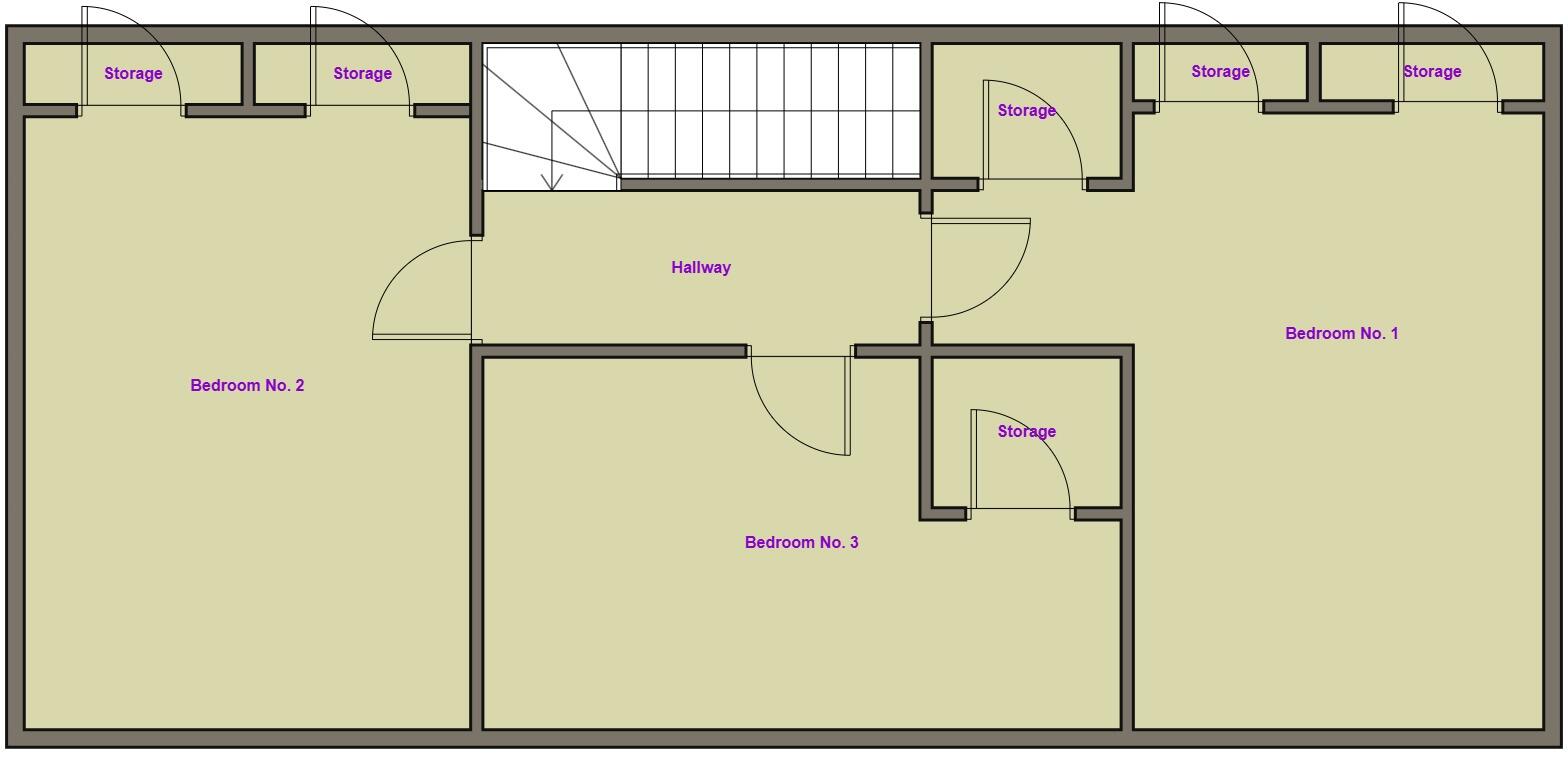
Village Estates are delighted to welcome to the market this spacious 3-bedroom mid terrace split level villa situated in the much sought after Greenfaulds area of Cumbernauld.
Property Oracle says ..
The property is located in Cumbernauld, a town in North Lanarkshire, Scotland. The area has an average house price significantly higher than the list price of this property. However, it is important to note that the average price and price per square foot are based on properties of a different type and size. The nearby listings show a range of prices, with some significantly lower than the subject property, suggesting that the list price may be at the higher end of the market for similar properties in the immediate vicinity. The proximity to Greenfaulds train station is a positive aspect, offering convenient access to public transportation. The lack of information regarding nearby schools makes it difficult to assess the property’s desirability from an educational perspective. Based on the provided images, the property appears to be in good condition. The interior is clean and well-maintained, with no obvious signs of disrepair or damage. The kitchen and bathroom seem recently updated. The property has a small garden, which is a positive feature for many buyers. Given the list price of £105,000, the average house price in the area of £517,143, and the average price per square foot of £379, it is difficult to definitively assess the value for money without knowing the square footage of the property. The significantly lower prices of nearby properties suggest the list price may be somewhat high, but more information on the size of the property and the specifics of the comparable properties is needed to make a conclusive judgment.
Therefore, we give this property 6 / 10. *Disclaimer: This is our option and does constitute a recommendation or financial advice. Do your own research. *
- Price
- 5
- Condition
- 8
- Location
- 7
- Land
- 6
- Bedrooms
- 3
- Bathrooms
- 1
The heatmap indicates the level of crime in the area. The color of the heatmap indicates the crime severity and recency.
Metrics Year-on-Year
- Average area value
- 925,000.00 £Increased by 139.51 %
- Average area rental value
- 825.00 £/moDecreased by 10.71 %
- Est rental Yield
- 1.07 %Decreased by 62.72 %
- Crime Rate
- 0.00 %
Agent Activity
Village Estates created the listing.
Images
Nearby Streets
| Name | Average Price | Average Sqft | Distance |
|---|---|---|---|
| Langlands Place | £ 14,000 | 0 | 0.00 KM |
| Marmion Place | £ 118,995 | 0 | 0.00 KM |
| Locksley Road | £ 0 | 0 | 0.00 KM |
| Locksley Court | £ 0 | 0 | 0.00 KM |
| Locksley Crescent | £ 315,000 | 0 | 0.00 KM |
Nearby Transport
| Name | NLC | TLC | Distance |
|---|---|---|---|
| Greenfaulds | 9725 | GRL | 0.38 KM |
| Cumbernauld | 9721 | CUB | 1.43 KM |
| Croy | 9943 | CRO | 5.13 KM |
| Coatdyke | 9762 | COA | 8.36 KM |
| Airdrie | 9759 | ADR | 8.37 KM |
Nearby Listings
| Address | Price | Type | Score | Distance |
|---|---|---|---|---|
| Abbotsford Road, G67 | £ 154,995 | BUY | 7 / 10 | 0.00 KM |
| Abbotsford Road, Cumbernauld, Glasgow, North Lanarkshire, G67 | £ 145,000 | BUY | 7 / 10 | 0.00 KM |
| 30 Abbotsford Road, Greenfaulds, Cumbernauld, G67 | £ 118,000 | BUY | 6 / 10 | 0.00 KM |
| 22 Abbotsford Road, Cumbernauld, G67 | £ 105,000 | BUY | 6 / 10 | 0.00 KM |
| Abbotsford Place, Cumbernauld, Glasgow | £ 140,000 | BUY | Unknown | 0.08 KM |