Norwich Road, Ipswich, Suffolk, IP1
PA

Norwich Road, Ipswich, Suffolk, IP1

By Palmer & Partners

£ 325,000

Reviews

3 out of 5 stars

Palmer & Partners says ..

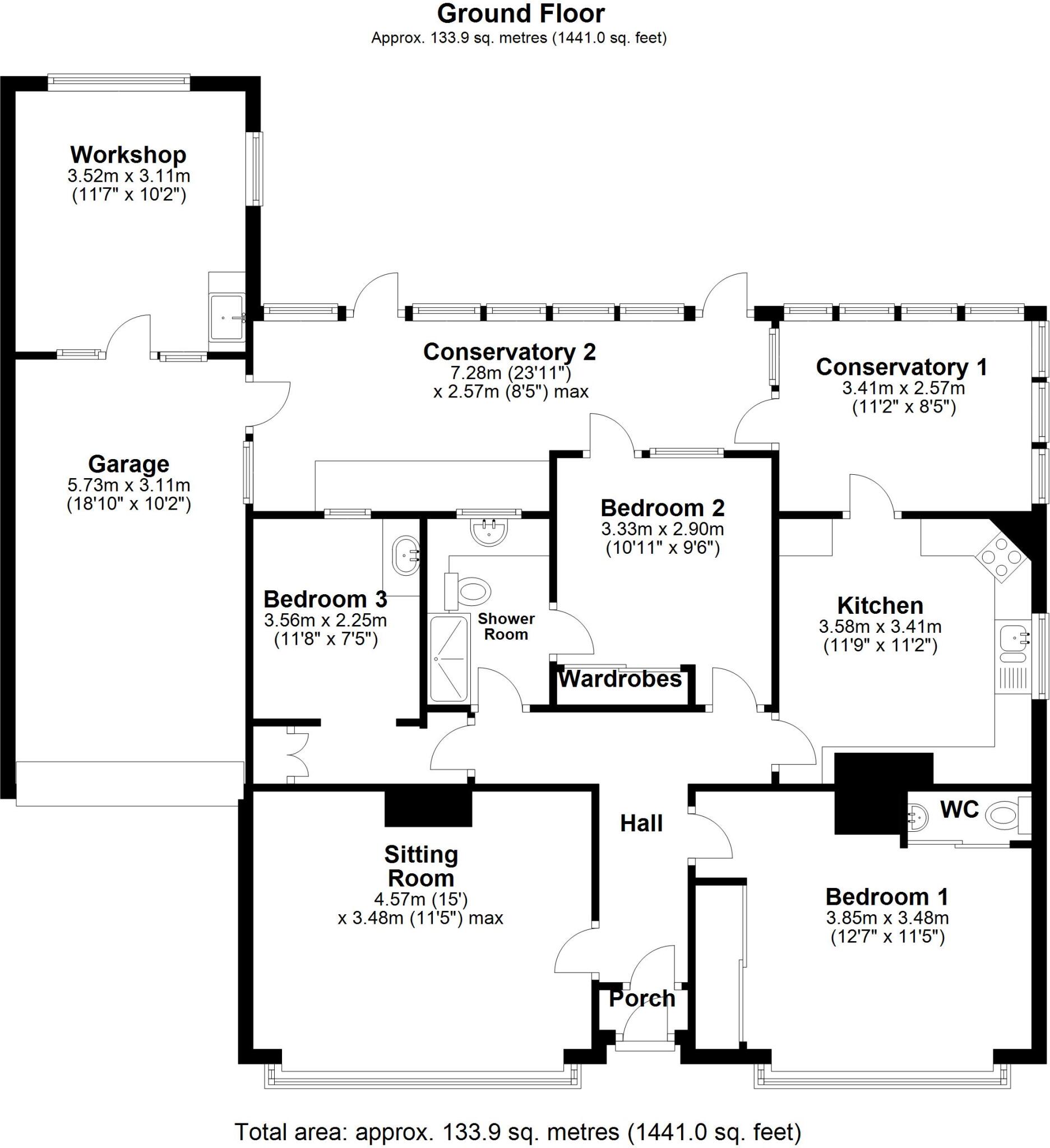
LOCATION AND BACKGROUND: A substantial three bedroom detached bungalow property situated within a couple of miles west of Ipswich town centre offering good access out to the train station and A14 commuter trunk road. The bungalow stands on a good size plot and is accessed via a large drivew...

Property Oracle says ..

This property is a 3-bedroom bungalow located on Norwich Road in Ipswich, Suffolk. The property benefits from a good size garden, and is within easy reach of local amenities and transport links. While the images suggest the property may benefit from some modernisation, it is presented in a clean and well-maintained condition, and the list price seems reasonable compared to other properties in the area.

Therefore, we give this property 7 / 10. *Disclaimer: This is our option and does constitute a recommendation or financial advice. Do your own research. *

Price
7
Condition
7
Location
7
Land
8
Bedrooms
3
Bathrooms
1
Lot (est)
1,441.00

The heatmap indicates the level of crime in the area. The color of the heatmap indicates the crime severity and recency.

Metrics Year-on-Year

Average area value
222,854.00 £
Decreased by 15.77 %
from 264,570.00 £
Average area rental value
1,201.00 £/mo
Increased by 7.91 %
from 1,113.00 £/mo
Est rental Yield
6.47 %
Increased by 28.12 %
from 5.05 %
Crime Rate
4.00 %
Unchanged by 0.00 %
from 4.00 %

Agent Activity

  • Palmer & Partners created the listing.

Nearby Schools

NameTypeOfstedDistance
Highfield Nursery SchoolLocal Authority Nursery SchoolOutstanding0.36 KM
Highfield Children'S CentreChildren's Centre0.40 KM
Springfield Junior SchoolAcademy Converter0.58 KM
Springfield Infant School And NurseryAcademy ConverterGood0.67 KM
St Pancras Catholic Primary SchoolAcademy Converter0.76 KM

Images

Picture No. 58 Picture No. 56 Picture No. 48 Picture No. 46 Picture No. 36 Picture No. 33 Picture No. 38 Picture No. 55 Picture No. 49 Picture No. 57 Picture No. 39 Picture No. 40 Picture No. 41 Picture No. 42 Picture No. 47 Picture No. 45 Picture No. 50 Picture No. 51 Picture No. 53 Picture No. 54 Picture No. 52 Picture No. 43 Picture No. 44 Picture No. 37 Picture No. 34

Nearby Streets

NameAverage PriceAverage SqftDistance
Charlton Avenue £ 315,00000.00 KM
Wesley Way £ 195,00000.00 KM
Redhill Close £ 265,00000.00 KM
Stratford Road £ 245,00000.00 KM
Sherrington Road £ 000.00 KM

Nearby Transport

NameNLCTLCDistance
Ipswich7217IPS2.80 KM
Westerfield7226WFI3.83 KM
Derby Road (Ipswich)7212DBR6.08 KM

Nearby Listings

AddressPriceTypeScoreDistance
Norwich Road, Ipswich £ 325,000BUY6 / 100.00 KM
Norwich Road, Ipswich, Suffolk, IP1 £ 325,000BUY7 / 100.00 KM
Norwich Road, Ipswich £ 290,000BUY7 / 100.08 KM
Norwich Road, Ipswich, Suffolk, IP1 £ 290,000BUY6 / 100.11 KM
Highfield Road, Ipswich, IP1 £ 325,000BUY7 / 100.13 KM

Nearby Properties

AddressPriceDistance
437 Norwich Road £ 183,0000.08 KM
435 Norwich Road £ 122,0000.08 KM
453 Norwich Road £ 48,9500.08 KM
441 Norwich Road £ 115,0000.08 KM
439 Norwich Road £ 29,5000.08 KM