Hunters says ..
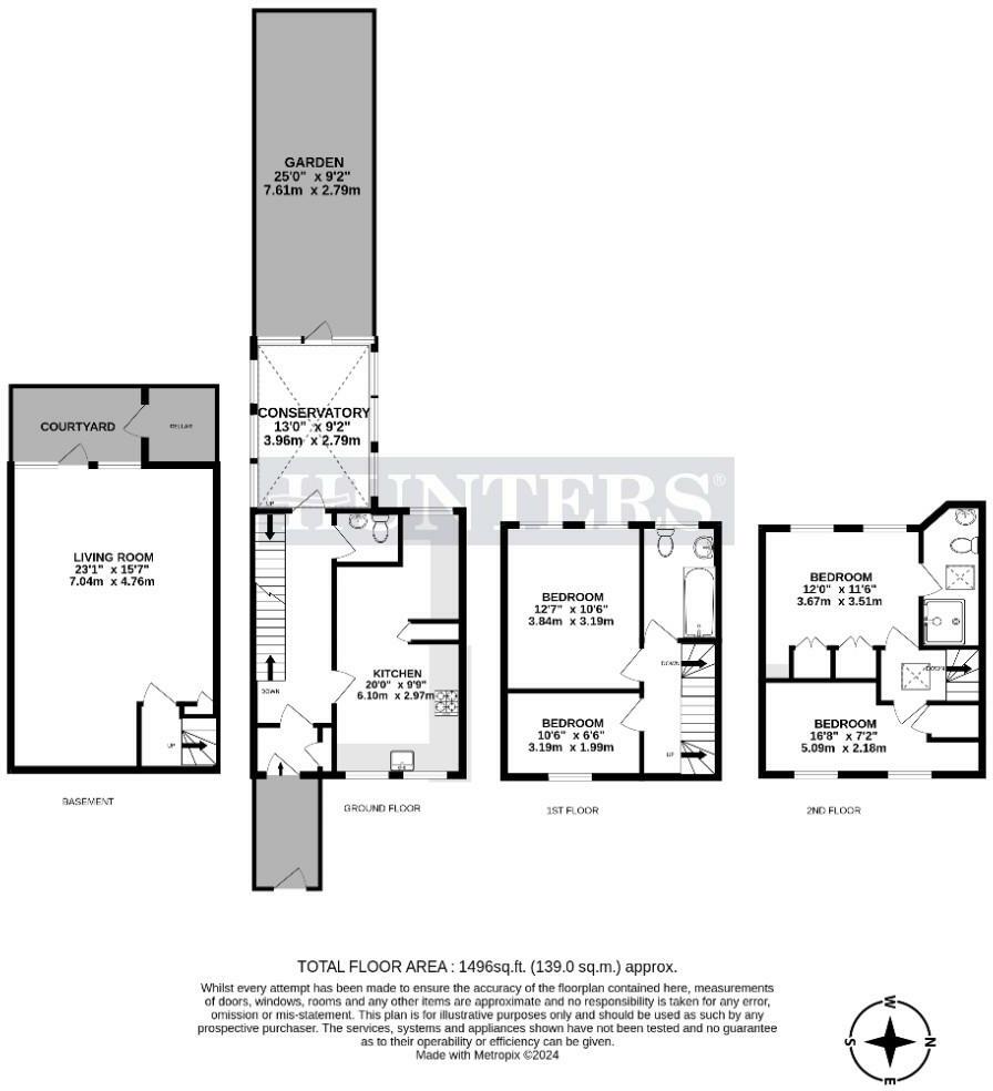
Available to view by appointment only and located in the heart of Stamford Hill, this light & airy four bedroom detached house offers over 1495 sq. ft. (139 sqm.) of internal accommodation. Available to view by appointment only, the property comprises large reception room on the lower gr...
Property Oracle says ..
Therefore, we give this property 6 / 10. *Disclaimer: This is our option and does constitute a recommendation or financial advice. Do your own research. *
- Price
- 6
- Condition
- 7
- Location
- 8
- Land
- 5
- Bedrooms
- 4
- Bathrooms
- 2
- Sqft (est)
- 1,332.17
The heatmap indicates the level of crime in the area. The color of the heatmap indicates the crime severity and recency.
Metrics Year-on-Year
- Average area value
- 683,165.00 £Decreased by 33.92 %
- Est sale value
- 502,228.09 £Increased by 12.20 %
- Average area rental value
- 1,373.00 £/moDecreased by 34.56 %
- Est letting value
- 0.00 £/mo
- Est rental Yield
- 2.41 %Decreased by 1.23 %
- Crime Rate
- 7.00 %Unchanged by 0.00 %
from 1,033,888.00 £
from 447,609.12 £
from 2,098.00 £/mo
from 0.00 £/mo
from 2.44 %
from 7.00 %
Agent Activity
Hunters created the listing.
Nearby Schools
| Name | Type | Ofsted | Distance |
|---|---|---|---|
| Beis Yaakov Girls School | Other Independent School | Good | 0.23 KM |
| Vishnitz Girls School | Other Independent School | Good | 0.23 KM |
| Beis Rochel D'Satmar Girls' School | Other Independent School | Requires improvement | 0.26 KM |
| Our Lady'S Catholic High School | Voluntary Aided School | Good | 0.27 KM |
| Lubavitch Childrens Centre | Children's Centre | 0.31 KM |
Images
Nearby Streets
| Name | Average Price | Average Sqft | Distance |
|---|---|---|---|
| Latimer Road | £ 0 | 0 | 0.00 KM |
| Russell Road | £ 672,500 | 0 | 0.00 KM |
| Barry Avenue | £ 0 | 0 | 0.00 KM |
| Manor Road | £ 831,667 | 0 | 0.00 KM |
| Overbury Road | £ 0 | 0 | 0.00 KM |
Nearby Transport
| Name | NLC | TLC | Distance |
|---|---|---|---|
| Stamford Hill | 6968 | SMH | 0.12 KM |
| South Tottenham | 7404 | STO | 0.93 KM |
| Seven Sisters | 6931 | SVS | 0.95 KM |
| Stoke Newington | 6934 | SKW | 1.12 KM |
| Rectory Road | 6967 | REC | 2.02 KM |
Nearby Listings
| Address | Price | Type | Score | Distance |
|---|---|---|---|---|
| West Bank, London, N16 | £ 1,000,000 | BUY | 6 / 10 | 0.00 KM |
| West Bank, London, N16 | £ 365,000 | BUY | 5 / 10 | 0.09 KM |
| East Bank, Beechwood Lodge, N16 | £ 600,000 | BUY | 7 / 10 | 0.14 KM |
| East Bank, London, N16 | £ 300,000 | BUY | 4 / 10 | 0.14 KM |
| Vartry Road, London, N15 | £ 575,000 | BUY | 7 / 10 | 0.18 KM |
Nearby Properties
| Address | Price | Distance |
|---|---|---|
| 8 Vartry Road | £ 145,000 | 0.13 KM |
| 14a - 14b Vartry Road | £ 400,000 | 0.13 KM |
| 14 Vartry Road | £ 45,000 | 0.13 KM |
| 11 West Bank | £ 385,000 | 0.14 KM |
| 10a West Bank | £ 335,000 | 0.14 KM |