Chancellors says ..
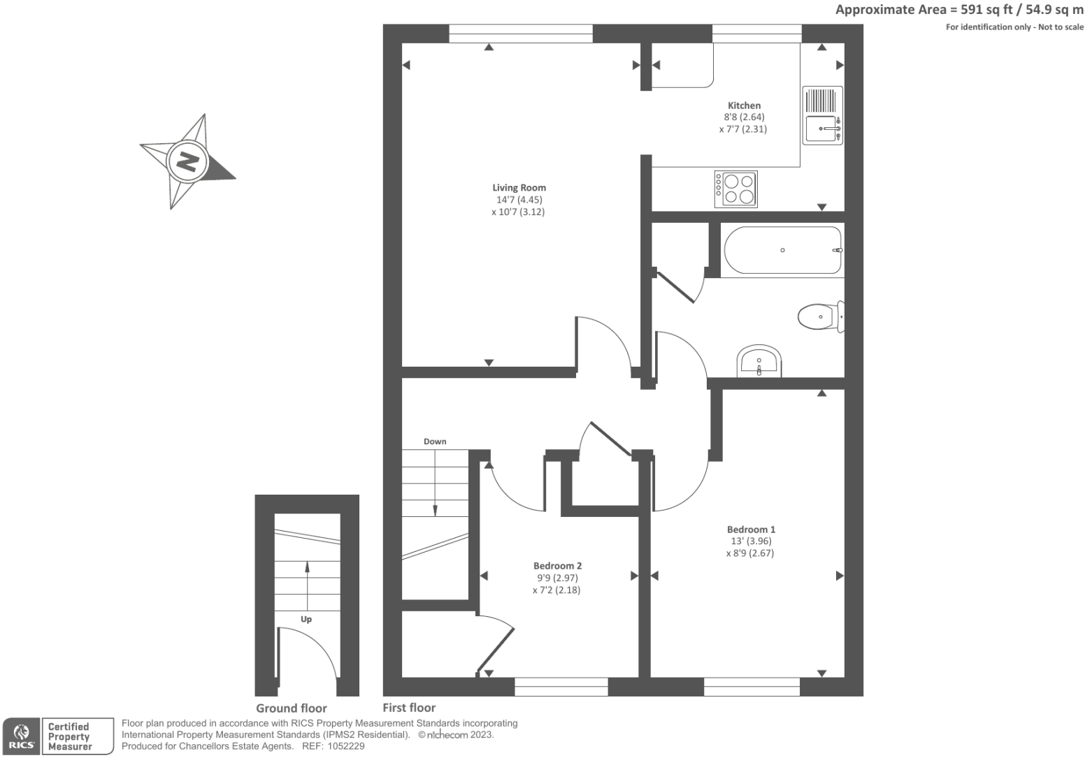
A well presented two bedroom maisonette situated in a courtyard setting with ample parking. This development for the over 55's.
Property Oracle says ..
This is a two-bedroom maisonette located in Brighton Hill, Basingstoke. The property is in reasonable condition, although some modernisation would be beneficial. It benefits from a small garden. The location offers good access to local schools and transportation links, making it suitable for families and commuters. The asking price of £115,000 appears to be good value for money, especially when compared to other properties in the area.
Therefore, we give this property 6 / 10. *Disclaimer: This is our option and does constitute a recommendation or financial advice. Do your own research. *
- Price
- 9
- Condition
- 6
- Location
- 7
- Land
- 3
- Bedrooms
- 2
- Bathrooms
- 1
- Sqft (est)
- 407.03
The heatmap indicates the level of crime in the area. The color of the heatmap indicates the crime severity and recency.
Metrics Year-on-Year
- Average area value
- 1,258,750.00 £Increased by 38.62 %
- Est sale value
- 239,740.67 £Decreased by 3.13 %
- Average area rental value
- 2,017.00 £/moDecreased by 42.17 %
- Est letting value
- 0.00 £/moDecreased by 100.00 %
- Est rental Yield
- 1.92 %Decreased by 58.35 %
- Crime Rate
- 18.00 %Unchanged by 0.00 %
Agent Activity
Chancellors created the listing.
Nearby Schools
| Name | Type | Ofsted | Distance |
|---|---|---|---|
| Hatch Warren Infant School | Community School | Good | 0.52 KM |
| Hatch Warren Junior School | Community School | Good | 0.59 KM |
| The Coppice Spring Academy | Academy Special Sponsor Led | Good | 0.66 KM |
| Brighton Hill Community School | Community School | Good | 0.78 KM |
| Manor Field Junior School | Community School | Good | 0.79 KM |
Images
Nearby Streets
| Name | Average Price | Average Sqft | Distance |
|---|---|---|---|
| Ellington Drive | £ 0 | 0 | 0.00 KM |
| Mitchell Gardens | £ 320,000 | 0 | 0.00 KM |
| Winchester Road | £ 375,000 | 0 | 0.00 KM |
| Brighton Hill | £ 325,000 | 0 | 0.00 KM |
| Hatchwarren Lane | £ 0 | 0 | 0.00 KM |
Nearby Transport
| Name | NLC | TLC | Distance |
|---|---|---|---|
| Basingstoke | 5520 | BSK | 4.59 KM |
Nearby Listings
| Address | Price | Type | Score | Distance |
|---|---|---|---|---|
| Basingstoke, Hampshire, RG22 | £ 115,000 | BUY | 6 / 10 | 0.00 KM |
| Dankworth Road, Basingstoke, Hampshire | £ 290,000 | BUY | 7 / 10 | 0.10 KM |
| Barber Road, Basingstoke, RG22 4EY | £ 200,000 | BUY | Unknown | 0.12 KM |
| Barber Road, Basingstoke, RG22 | £ 485,000 | BUY | 8 / 10 | 0.12 KM |
| BARBER ROAD, BASINGSTOKE, HAMPSHIRE, RG22 | £ 325,000 | BUY | 7 / 10 | 0.12 KM |
Nearby Properties
| Address | Price | Distance |
|---|---|---|
| 116 Barber Road | £ 176,000 | 0.10 KM |
| 128 Barber Road | £ 179,000 | 0.10 KM |
| 134 Barber Road | £ 262,995 | 0.10 KM |
| 101 Barber Road | £ 175,000 | 0.12 KM |
| 94 Barber Road | £ 383,000 | 0.12 KM |