Kenilworth Road, Penge
Property World Penge logo

Kenilworth Road, Penge

By Property World Penge

£ 800,000

Reviews

3 out of 5 stars

Property World Penge says ..

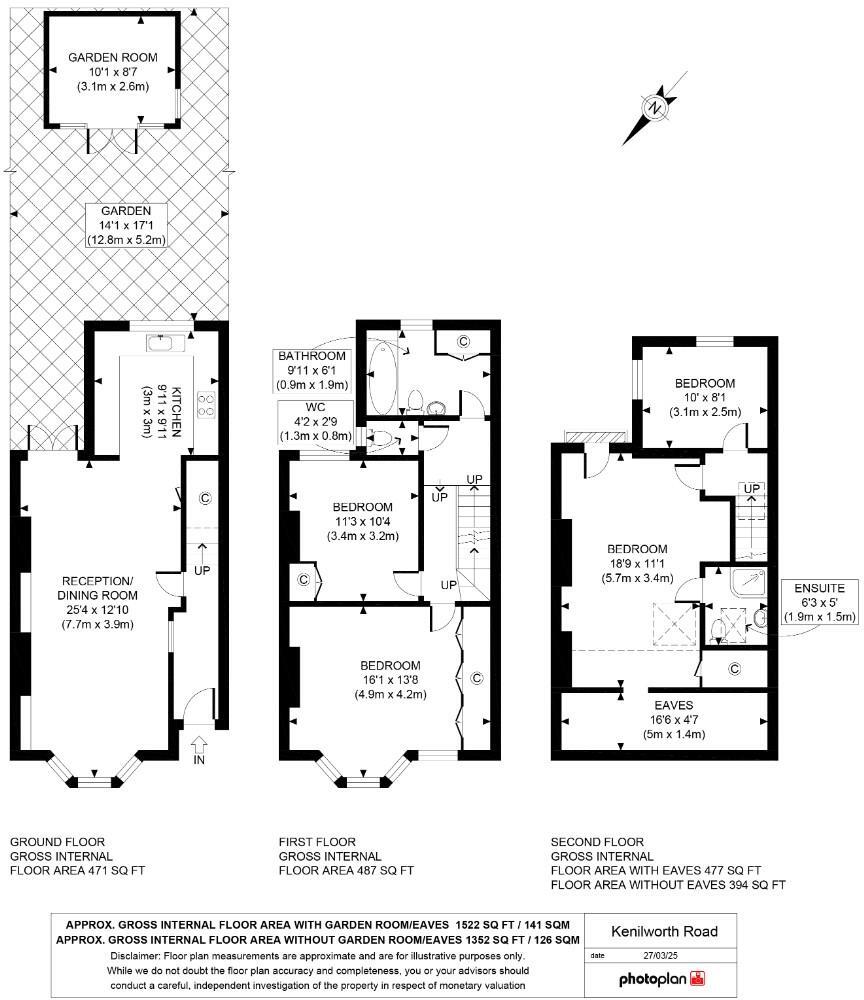
Guide price £800,000 - £850,000 Propertyworld is delighted to present this stunning four-bedroom Edwardian house, lovingly upgraded by the current owners over the last five years. Offered in superb condition, the property perfectly blends period charm with modern touches, boasting high c...

Property Oracle says ..

This property is a 4-bedroom, 2-bathroom house located in Penge, South East London. It benefits from being close to several transport links and well-regarded schools, making it attractive to families. The property itself appears to have been recently renovated or updated, presenting in excellent condition with a modern kitchen and bathrooms. The inclusion of a garden adds to its appeal. While the plot size is not specified, the garden is visible in the photos. Compared to other properties in the area, the list price of £800,000 seems slightly higher than average, but considering its condition, location, and amenities, it may still represent reasonable value for money. More information on the plot size would assist in a more precise evaluation.

Therefore, we give this property 7 / 10. *Disclaimer: This is our option and does constitute a recommendation or financial advice. Do your own research. *

Price
7
Condition
9
Location
8
Land
7
Bedrooms
4
Bathrooms
2
Sqft (est)
1,933.20

The heatmap indicates the level of crime in the area. The color of the heatmap indicates the crime severity and recency.

Metrics Year-on-Year

Average area value
470,278.00 £
Decreased by 9.27 %
from 518,343.00 £
Est sale value
1,059,393.60 £
Increased by 64.07 %
from 645,688.80 £
Average area rental value
1,755.00 £/mo
Decreased by 20.59 %
from 2,210.00 £/mo
Est letting value
3,866.40 £/mo
Increased by 100.00 %
from 1,933.20 £/mo
Est rental Yield
4.48 %
Decreased by 12.50 %
from 5.12 %
Crime Rate
4.00 %
Unchanged by 0.00 %
from 4.00 %

Agent Activity

  • Property World Penge created the listing.

Nearby Schools

NameTypeOfstedDistance
Harris Primary Academy Kent HouseAcademy Sponsor LedOutstanding0.32 KM
Alexandra Infant SchoolAcademy ConverterGood0.61 KM
St John'S Church Of England Primary SchoolAcademy Sponsor LedGood0.65 KM
Churchfields Primary SchoolAcademy Converter0.78 KM
St Anthony'S Roman Catholic Primary SchoolAcademy ConverterGood0.91 KM

Images

01-a95aJHNHH - 49 Kenilworth Road - 1-HDR-medium.j 15-e40fJHNHH - 49 Kenilworth Road - 43-medium.jpg 05-74a1JHNHH - 49 Kenilworth Road - 13-HDR-medium. 12-7ef9JHNHH - 49 Kenilworth Road - 34-HDR-medium. 04-8d7cJHNHH - 49 Kenilworth Road - 10-HDR-medium. 07-f5caJHNHH - 49 Kenilworth Road - 19-medium.jpg 14-ed03JHNHH - 49 Kenilworth Road - 40-HDR-medium. 13-3786JHNHH - 49 Kenilworth Road - 37-HDR-medium. 03-877aJHNHH - 49 Kenilworth Road - 7-HDR-medium.j 02-e22fJHNHH - 49 Kenilworth Road - 4-HDR-medium.j 08-9e57JHNHH - 49 Kenilworth Road - 22-HDR-medium. 06-ee16JHNHH - 49 Kenilworth Road - 16-HDR-medium. 09-d4cdJHNHH - 49 Kenilworth Road - 25-HDR-medium. 10-7376JHNHH - 49 Kenilworth Road - 28-HDR-medium. 11-7be0JHNHH - 49 Kenilworth Road - 31-HDR-medium.

Nearby Streets

NameAverage PriceAverage SqftDistance
Garden Road £ 750,00000.00 KM
High Street £ 000.00 KM
Hawthorn Grove £ 000.00 KM
Evergreen Close £ 000.00 KM
Trinity Mews £ 000.00 KM

Nearby Transport

NameNLCTLCDistance
Kent House5080KTH0.67 KM
Birkbeck5401BIK0.93 KM
Penge East5072PNE0.99 KM
Clock House5048CLK1.19 KM
Penge West5378PNW1.30 KM

Nearby Listings

AddressPriceTypeScoreDistance
Kenilworth Road, Penge £ 800,000BUY7 / 100.00 KM
Kenilworth Road, Anerley, London, SE20 £ 825,000BUY7 / 100.07 KM
Clevedon Road, Penge, London £ 700,000BUY7 / 100.08 KM
20 Snowdown Close, London, SE20 £ 475,000BUY6 / 100.09 KM
Westbury Road, Penge, SE20 £ 700,000BUY8 / 100.10 KM

Nearby Properties

AddressPriceDistance
24 Westbury Road £ 289,9500.04 KM
28 Westbury Road £ 114,5000.04 KM
27 Kenilworth Road £ 615,0000.05 KM
52 Kenilworth Road £ 145,7880.05 KM
21 Kenilworth Road £ 250,0000.05 KM