Monkleigh, Bideford
ST

Monkleigh, Bideford

By Stags

£ 275,000

Reviews

3 out of 5 stars

Stags says ..

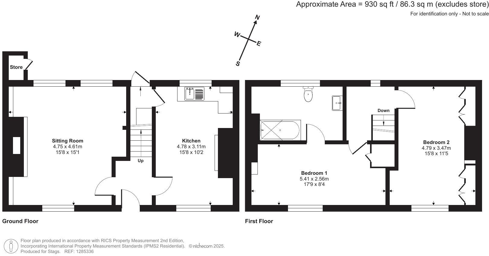
An immaculate, two bedroom mid-terraced cottage within the heart of the village. EPC rating E.

Property Oracle says ..

This property is a charming terraced house located in the village of Monkleigh, Devon. The property benefits from a good-sized garden, offering views of open countryside. While the square footage is not provided, the property appears to be of a reasonable size for a terraced house in this area. The interior is presented in good condition and has been recently updated with a modern kitchen and bathroom. The property is located close to Monkleigh Primary School, which is rated as “Good” by Ofsted. While the average house price in the area is higher than the list price of this property, the list price appears to be reasonable given the condition and location.

Therefore, we give this property 7 / 10. *Disclaimer: This is our option and does constitute a recommendation or financial advice. Do your own research. *

Price
7
Condition
8
Location
7
Land
7
Bedrooms
2
Bathrooms
1
Lot (est)
930.00

The heatmap indicates the level of crime in the area. The color of the heatmap indicates the crime severity and recency.

Metrics Year-on-Year

Average area value
346,250.00 £
Increased by 44.46 %
from 239,681.00 £
Average area rental value
785.00 £/mo
Decreased by 22.05 %
from 1,007.00 £/mo
Est rental Yield
2.72 %
Decreased by 46.03 %
from 5.04 %
Crime Rate
300.00 %
Unchanged by 0.00 %
from 300.00 %

Agent Activity

  • Stags created the listing.

Nearby Schools

NameTypeOfstedDistance
Monkleigh Primary SchoolCommunity SchoolGood0.12 KM
Langtree Community School And Nursery UnitCommunity SchoolGood5.16 KM
West Croft SchoolCommunity SchoolRequires improvement5.37 KM
East-The-Water Community Primary SchoolCommunity SchoolGood5.48 KM
Buckland Brewer Primary SchoolFoundation SchoolGood5.57 KM

Images

Staggs Rest.jpg 1285336 (2).jpg 1285336 (3).jpg 1285336 (4).jpg 3-681caab5e6f24-1285336-ARW-3.jpg 1285336 (6).jpg 2-681caaaea2c47-1285336-ARW-2.jpg 1285336 (14).jpg 1285336 (5).jpg 1285336 (12).jpg 1285336 (16).jpg 1285336 (21).jpg 1285336 (23).jpg 1285336 (11).jpg 1285336 (7).jpg 1285336 (15).jpg 1285336 (22).jpg 1285336 (13).jpg 1285336 (10).jpg 1285336 (19).jpg 1285336 (20).jpg 1285336 (9).jpg 7-681caae326921-1285336-ARW-7.jpg 4-681caabe75329-1285336-ARW-4.jpg 10-681cb2b61eaea-1285336-ARW-10.jpg 11-681cb3904a052-1285336-ARW-11.jpg 15-681cb42765388-1285336-ARW-15.jpg 12-681cb3c06eef9-1285336-ARW-12.jpg 1285336 (1).jpg

Nearby Streets

NameAverage PriceAverage SqftDistance
New Buildings £ 000.00 KM
Capern Park £ 655,00000.00 KM
South View £ 000.00 KM
A386 £ 395,00000.00 KM

Nearby Listings

AddressPriceTypeScoreDistance
Monkleigh, Bideford £ 275,000BUY7 / 100.00 KM
New Buildings, Monkleigh, Bideford £ 240,000BUY7 / 100.00 KM
Monkleigh, Bideford, Devon, EX39 £ 485,000BUY7 / 100.05 KM
Monkleigh, Bideford, Devon, EX39 £ 500,000BUY7 / 100.12 KM
Monkleigh, Bideford, Devon, EX39 £ 525,000BUY7 / 100.12 KM

Nearby Properties

AddressPriceDistance
2 New Buildings £ 141,0000.01 KM
4 Hilton Road £ 220,0000.22 KM
16 Hilton Road £ 190,0000.22 KM
27 Hilton Road £ 195,0000.22 KM
26 Hilton Road £ 260,0000.22 KM