Michael Crescent, Malvern
By Denny and Salmond
£ 239,950
Reviews
3 out of 5 stars
Denny and Salmond says ..
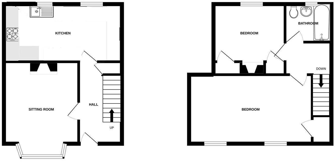
This well presented mid terrace property enjoys a quiet location in a popular and much sought after residential area with views of the Malvern Hills. In brief the accommodation comprises, Entrance Hall, Living Room, Kitchen Dining Room. Whilst to the first floor are Two Bedrooms and Bathroom. Thi...
Property Oracle says ..
This is a two-bedroom terraced house in Malvern, Worcestershire. The property is in generally good condition, with a modern interior and a well-maintained garden. While the exterior shows some signs of age, the interior has been updated, particularly the kitchen and bathroom. The property is located near local schools and transportation links, making it a convenient location for families and commuters. The asking price is competitive for the area, making it an attractive option for potential buyers.
Therefore, we give this property 7 / 10. *Disclaimer: This is our option and does constitute a recommendation or financial advice. Do your own research. *
- Price
- 8
- Condition
- 7
- Location
- 7
- Land
- 8
- Bedrooms
- 2
- Bathrooms
- 1
- Sqft (est)
- 696.00
The heatmap indicates the level of crime in the area. The color of the heatmap indicates the crime severity and recency.
Metrics Year-on-Year
- Average area value
- 319,650.00 £Increased by 3.12 %
- Est sale value
- 209,496.00 £Decreased by 6.81 %
- Average area rental value
- 848.00 £/moDecreased by 32.96 %
- Est letting value
- 0.00 £/moDecreased by 100.00 %
- Est rental Yield
- 3.18 %Decreased by 35.10 %
- Crime Rate
- 4.00 %Unchanged by 0.00 %
Agent Activity
Denny and Salmond created the listing.
Nearby Schools
| Name | Type | Ofsted | Distance |
|---|---|---|---|
| Dyson Perrins Cofe Academy | Academy Converter | Good | 0.32 KM |
| Somers Park Primary School | Academy Converter | 0.60 KM | |
| St Matthias Church Of England Primary School | Academy Converter | 1.14 KM | |
| St Joseph'S Catholic Primary School | Voluntary Aided School | Good | 1.30 KM |
| Evergreen Children'S Centre | Children's Centre | 1.35 KM |
Images
Nearby Streets
| Name | Average Price | Average Sqft | Distance |
|---|---|---|---|
| Somers Court | £ 0 | 0 | 0.00 KM |
| Bond Street | £ 0 | 0 | 0.00 KM |
| Link Way | £ 0 | 0 | 0.00 KM |
| Sayers Avenue | £ 0 | 0 | 0.00 KM |
| Queen's Close | £ 0 | 0 | 0.00 KM |
Nearby Transport
| Name | NLC | TLC | Distance |
|---|---|---|---|
| Malvern Link | 4884 | MVL | 1.26 KM |
| Great Malvern | 4892 | GMV | 2.94 KM |
| Colwall | 4876 | CWL | 6.92 KM |
Nearby Listings
| Address | Price | Type | Score | Distance |
|---|---|---|---|---|
| Michael Crescent, Malvern | £ 239,950 | BUY | 7 / 10 | 0.00 KM |
| 50 Tanhouse Lane, Malvern, Worcestershire, WR14 | £ 330,000 | BUY | 6 / 10 | 0.07 KM |
| Tanhouse Lane, Malvern, WR14 1UB | £ 315,000 | BUY | Unknown | 0.07 KM |
| 6 Bronsil Drive, Malvern, Worcestershire, WR14 | £ 270,000 | BUY | 5 / 10 | 0.16 KM |
| Springfield Glade, Malvern | £ 265,000 | BUY | Unknown | 0.25 KM |
Nearby Properties
| Address | Price | Distance |
|---|---|---|
| 28 Michael Crescent | £ 216,950 | 0.04 KM |
| 38 Michael Crescent | £ 285,000 | 0.04 KM |
| 26 Michael Crescent | £ 121,000 | 0.04 KM |
| 4 Michael Crescent | £ 198,000 | 0.04 KM |
| 42 Michael Crescent | £ 190,000 | 0.04 KM |