Heywood Close, Shiphay, Torquay, Devon
By Bradleys
£ 310,000
Reviews
3 out of 5 stars
Bradleys says ..
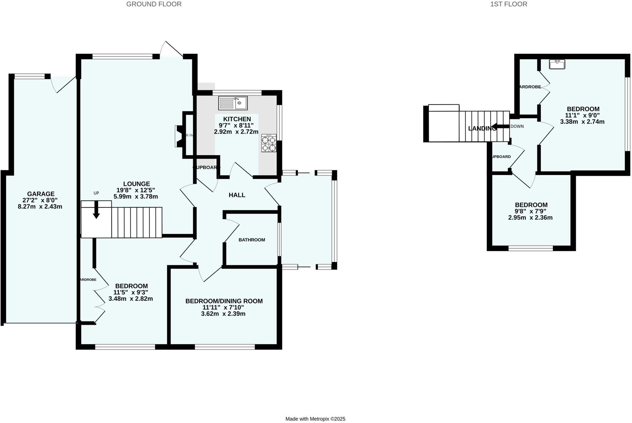
A THREE/FOUR BEDROOM DETACHED DORMER BIUNGALOW This property is being offered to the market with no onward chain and is located in the sought after area of Shiphay, within walking distance of local shops, schools and amenities. Wren Retail Park and Torquay town centre are a short drive ...
Property Oracle says ..
This property is a 3-bedroom bungalow located in Shiphay, Torquay. The location benefits from being close to several schools, including the Outstanding-rated Torquay Girls Grammar School and the Good-rated Torquay Boys’ Grammar School. Train stations are also within a reasonable distance. The property itself appears to be in need of some modernisation and updating, as seen in the provided images. The kitchen and bathroom appear dated, and some walls show signs of needing repair. The garden is small but present. Considering the average price per square foot in the area is £331, and this property is listed at £310,000 with 923.70 sqft, the price seems slightly higher than the average for the area, given the property’s condition and size.
Therefore, we give this property 6 / 10. *Disclaimer: This is our option and does constitute a recommendation or financial advice. Do your own research. *
- Price
- 6
- Condition
- 6
- Location
- 8
- Land
- 4
- Bedrooms
- 3
- Bathrooms
- 1
- Sqft (est)
- 923.70
The heatmap indicates the level of crime in the area. The color of the heatmap indicates the crime severity and recency.
Metrics Year-on-Year
- Average area value
- 370,455.00 £Increased by 6.00 %
- Est sale value
- 358,395.60 £Increased by 43.70 %
- Average area rental value
- 971.00 £/moDecreased by 11.08 %
- Est letting value
- 923.70 £/mo
- Est rental Yield
- 3.15 %Decreased by 16.00 %
- Crime Rate
- 1.00 %Unchanged by 0.00 %
Agent Activity
Bradleys created the listing.
Nearby Schools
| Name | Type | Ofsted | Distance |
|---|---|---|---|
| Our Lady Of The Angels Catholic Primary School | Academy Converter | Requires improvement | 0.09 KM |
| Torquay Girls Grammar School | Academy Converter | Outstanding | 0.25 KM |
| Torquay Boys' Grammar School | Academy Converter | Good | 0.58 KM |
| Torre Church Of England Academy | Academy Converter | Good | 0.79 KM |
| Sherwell Valley Primary School | Community School | Good | 0.98 KM |
Images
Nearby Streets
| Name | Average Price | Average Sqft | Distance |
|---|---|---|---|
| Queensway | £ 191,667 | 0 | 0.00 KM |
| Oxenham Garden | £ 0 | 0 | 0.00 KM |
| Blindwylle Road | £ 265,000 | 0 | 0.00 KM |
| St. Katherines Road | £ 0 | 0 | 0.00 KM |
| Arthington | £ 0 | 0 | 0.00 KM |
Nearby Transport
| Name | NLC | TLC | Distance |
|---|---|---|---|
| Torre | 3432 | TRR | 0.65 KM |
| Torquay | 3434 | TQY | 1.86 KM |
| Paignton | 3427 | PGN | 4.76 KM |
| Newton Abbot | 3426 | NTA | 7.97 KM |
Nearby Listings
| Address | Price | Type | Score | Distance |
|---|---|---|---|---|
| Heywood Close, Shiphay, Torquay, Devon | £ 310,000 | BUY | 6 / 10 | 0.00 KM |
| Queensway, Torquay | £ 230,000 | BUY | 6 / 10 | 0.11 KM |
| Fletcher Close, Shiphay, Torquay | £ 300,000 | BUY | 7 / 10 | 0.19 KM |
| Fletcher Close, Shiphay, Torquay | £ 300,000 | BUY | 7 / 10 | 0.19 KM |
| Marlowe Close, Torquay, TQ2 | £ 325,000 | BUY | 7 / 10 | 0.19 KM |
Nearby Properties
| Address | Price | Distance |
|---|---|---|
| 6 Heywood Close | £ 182,500 | 0.01 KM |
| 2 Heywood Close | £ 166,500 | 0.01 KM |
| 5 Heywood Close | £ 172,000 | 0.01 KM |
| 3 Heywood Close | £ 220,000 | 0.01 KM |
| 8 Heywood Close | £ 220,000 | 0.01 KM |