Watchcrete Avenue, Queniborough, LE7
By Hortons
£ 475,000
Reviews
4 out of 5 stars
Hortons says ..
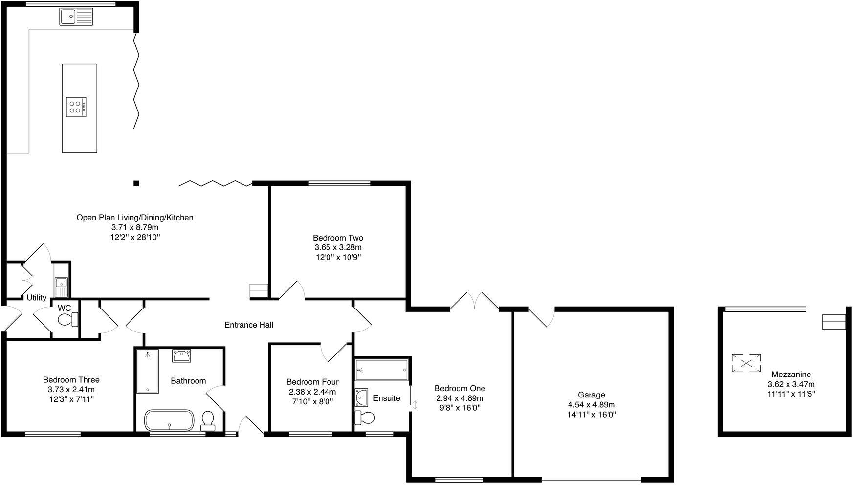
An exceptionally well presented four bedroom detached bungalow which has been extended and renovated throughout.
Property Oracle says ..
This property is a 4 bedroom, 2 bathroom house located in Queniborough, Leicestershire. The list price is £475,000. The property has undergone a significant extension and renovation, resulting in a modern and stylish interior. The extension includes a large open-plan kitchen/diner and living area with bi-fold doors leading to a patio and garden. There is also a loft conversion which provides additional living space. The property appears to be in excellent condition, with high-quality fixtures and fittings throughout.
The average house price in the area is £549,850, with an average price per square foot of £436. This property is slightly below the average price per square foot, however, given the extensive renovations and modern design, the list price of £475,000 appears reasonable. The location is in a desirable village setting, close to local amenities and schools. The property also benefits from a good-sized garden.
Based on the provided information and images, the property is well-maintained and stylishly presented. The addition of the extension and loft conversion has significantly increased the living space and overall value of the property. The location in Queniborough is desirable, with good access to local schools and transportation links. The garden is a significant feature, adding to the overall appeal of the property.
Therefore, we give this property 8 / 10. *Disclaimer: This is our option and does constitute a recommendation or financial advice. Do your own research. *
- Price
- 8
- Condition
- 9
- Location
- 8
- Land
- 7
- Bedrooms
- 4
- Bathrooms
- 2
- Sqft (est)
- 1,255.93
The heatmap indicates the level of crime in the area. The color of the heatmap indicates the crime severity and recency.
Metrics Year-on-Year
- Average area value
- 607,500.00 £Increased by 4.15 %
- Est sale value
- 1,135,360.72 £Increased by 164.33 %
- Average area rental value
- 1,328.00 £/moDecreased by 13.15 %
- Est letting value
- 1,255.93 £/mo
- Est rental Yield
- 2.62 %Decreased by 16.83 %
- Crime Rate
- 17.00 %Unchanged by 0.00 %
Agent Activity
Hortons created the listing.
Nearby Schools
| Name | Type | Ofsted | Distance |
|---|---|---|---|
| Queniborough Church Of England Primary School | Academy Converter | Good | 0.98 KM |
| Broomfield Community Primary School | Academy Converter | Good | 0.99 KM |
| Wreake Valley Academy | Academy Converter | Requires improvement | 1.51 KM |
| St Peter And St Paul Church Of England Academy | Academy Converter | Good | 2.19 KM |
| The Merton Primary School | Academy Converter | Good | 2.36 KM |
Images
Nearby Streets
| Name | Average Price | Average Sqft | Distance |
|---|---|---|---|
| Fletchers' Way | £ 0 | 0 | 0.00 KM |
| Park Lane | £ 450,000 | 0 | 0.00 KM |
| Ploughman's Lea | £ 0 | 0 | 0.00 KM |
| Woodman's Chase | £ 0 | 0 | 0.00 KM |
| Craftsmans Way | £ 0 | 0 | 0.00 KM |
Nearby Transport
| Name | NLC | TLC | Distance |
|---|---|---|---|
| Syston | 1900 | SYS | 3.28 KM |
| Sileby | 1902 | SIL | 6.73 KM |
Nearby Listings
| Address | Price | Type | Score | Distance |
|---|---|---|---|---|
| Watchcrete Avenue, Queniborough, LE7 | £ 475,000 | BUY | 8 / 10 | 0.00 KM |
| Watchcrete Avenue, Queniborough, LE7 | £ 225,000 | BUY | Unknown | 0.04 KM |
| Chestnut Close, Queniborough, LE7 | £ 260,000 | BUY | 7 / 10 | 0.13 KM |
| Syston Road, Queniborough, Leicester, Leicestershire | £ 575,000 | BUY | Unknown | 0.13 KM |
| Avenue Road, Queniborough, Leicester | £ 450,000 | BUY | 6 / 10 | 0.15 KM |
Nearby Properties
| Address | Price | Distance |
|---|---|---|
| 2 Beechwood Avenue | £ 164,000 | 0.07 KM |
| 12 Beechwood Avenue | £ 202,000 | 0.07 KM |
| 12 Chestnut Close | £ 205,000 | 0.14 KM |
| 6 Chestnut Close | £ 170,000 | 0.14 KM |
| 1 Chestnut Close | £ 250,000 | 0.14 KM |