Park Street, Amblecote, Stourbridge
By The Lee Shaw Partnership
£ 88,000
Reviews
2 out of 5 stars
The Lee Shaw Partnership says ..
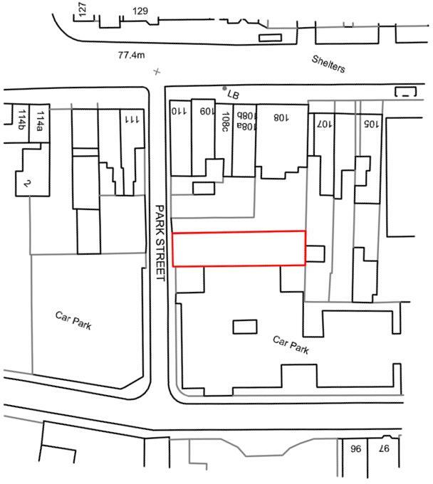
Building plot with planning consent for a detached bungalow park street Amblecote Stourbridge, West Midlands, DY8 4BH. A rare opportunity to purchase a building plot with the benefit of planning consent for the erection of one detached bungalow. Planning application reference P23/1582 appro...
Property Oracle says ..
This property listing presents a building plot in Amblecote, Stourbridge, with planning permission for a detached bungalow. The location offers access to local amenities including schools and transport links. Stourbridge Town train station is relatively close by, providing convenient access to other areas. However, the immediate surroundings of the plot appear somewhat unkempt and less appealing than the residential area. The photos show an overgrown plot requiring considerable groundworks before construction can commence. The fencing is present but not particularly visually attractive. The lack of specified plot size and square footage makes definitive statements about land value impossible, but visual inspection suggests a relatively small building plot. The price of £88,000 seems reasonably positioned for the market, but additional details are needed for a more comprehensive valuation. Prospective buyers should factor in the cost of land preparation, construction, and potential additional costs. Overall, this represents a development opportunity, not a ready-to-live-in property, and needs thorough investigation before any commitment.
Therefore, we give this property 4 / 10. *Disclaimer: This is our option and does constitute a recommendation or financial advice. Do your own research. *
- Price
- 7
- Condition
- 3
- Location
- 5
- Land
- 4
- Bedrooms
- 0
- Bathrooms
- 0
The heatmap indicates the level of crime in the area. The color of the heatmap indicates the crime severity and recency.
Metrics Year-on-Year
- Average area value
- 168,333.00 £Decreased by 16.57 %
- Average area rental value
- 818.00 £/moDecreased by 10.89 %
- Est rental Yield
- 5.83 %Increased by 6.78 %
- Crime Rate
- 14.00 %Unchanged by 0.00 %
Agent Activity
The Lee Shaw Partnership created the listing.
Nearby Schools
| Name | Type | Ofsted | Distance |
|---|---|---|---|
| Brook Primary School | Community School | Good | 0.26 KM |
| Glasshouse College | Special Post 16 Institution | Good | 0.35 KM |
| Amblecote Primary School | Community School | Good | 0.47 KM |
| The Wordsley School Business & Enterprise & Music College | Community School | Good | 1.19 KM |
| Stourbridge Children'S Centre | Children's Centre | 1.25 KM |
Images
Nearby Streets
| Name | Average Price | Average Sqft | Distance |
|---|---|---|---|
| Park Street | £ 0 | 0 | 0.00 KM |
| Audnam | £ 0 | 0 | 0.00 KM |
| Dial Lane | £ 230,000 | 0 | 0.00 KM |
| Oakfield Close | £ 305,000 | 0 | 0.00 KM |
| Vale Street | £ 254,500 | 0 | 0.00 KM |
Nearby Transport
| Name | NLC | TLC | Distance |
|---|---|---|---|
| Stourbridge Town | 4643 | SBT | 2.10 KM |
| Stourbridge Junction | 4646 | SBJ | 3.35 KM |
| Lye (West Midlands) | 4640 | LYE | 4.31 KM |
| Hagley | 4577 | HAG | 5.40 KM |
| Cradley Heath | 4639 | CRA | 6.96 KM |
Nearby Listings
| Address | Price | Type | Score | Distance |
|---|---|---|---|---|
| Park Street, Amblecote, Stourbridge | £ 88,000 | BUY | 4 / 10 | 0.00 KM |
| Park Street, Stourbridge | £ 295,000 | BUY | 6 / 10 | 0.00 KM |
| Brettell Lane, Devon House Brettell Lane, DY8 | £ 112,500 | BUY | 6 / 10 | 0.09 KM |
| High Street, Amblecote, Stourbridge | £ 150,000 | BUY | 5 / 10 | 0.12 KM |
| Crystal Avenue, Stourbridge, West Midlands, DY8 | £ 240,000 | BUY | 6 / 10 | 0.13 KM |
Nearby Properties
| Address | Price | Distance |
|---|---|---|
| 95 Brettell Lane | £ 84,000 | 0.02 KM |
| 100 Brettell Lane | £ 125,000 | 0.02 KM |
| 94 Brettell Lane | £ 81,000 | 0.03 KM |
| 98 Brettell Lane | £ 155,000 | 0.03 KM |
| 96 Brettell Lane | £ 43,500 | 0.04 KM |