89 Briarhill Road, Prestwick, KA9 1HZ
By Donald Ross Residential
£ 260,000
Reviews
3 out of 5 stars
Donald Ross Residential says ..
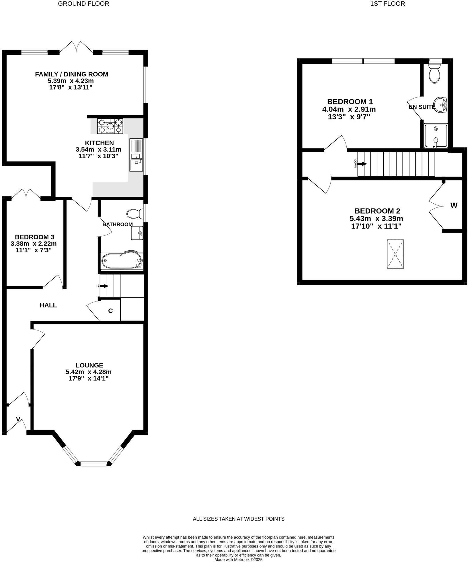
Stylish three-bedroom extended bungalow with open-plan living, landscaped garden, garden room/bar area. Perfectly located close to Prestwick’s Main Street, schools and the beach.
Property Oracle says ..
This is a 3-bedroom semi-detached bungalow in Prestwick, South Ayrshire. The property appears to be in generally good condition, with a modern kitchen and bathrooms. It benefits from a decent-sized garden and off-street parking. Prestwick offers good transport links and local amenities. The property is priced competitively compared to other properties in the area.
Therefore, we give this property 7 / 10. *Disclaimer: This is our option and does constitute a recommendation or financial advice. Do your own research. *
- Price
- 8
- Condition
- 7
- Location
- 7
- Land
- 7
- Bedrooms
- 3
- Bathrooms
- 2
- Sqft (est)
- 1,019.17
The heatmap indicates the level of crime in the area. The color of the heatmap indicates the crime severity and recency.
Metrics Year-on-Year
- Average area value
- 591,667.00 £Increased by 9.11 %
- Est sale value
- 293,520.96 £Decreased by 44.40 %
- Average area rental value
- 2,375.00 £/moIncreased by 124.69 %
- Est letting value
- 1,019.17 £/moUnchanged by 0.00 %
- Est rental Yield
- 4.82 %Increased by 105.98 %
- Crime Rate
- 0.00 %
Agent Activity
Donald Ross Residential created the listing.
Images
Nearby Streets
| Name | Average Price | Average Sqft | Distance |
|---|---|---|---|
| Briarhill Court | £ 135,000 | 0 | 0.00 KM |
| Boydfield Avenue | £ 205,556 | 0 | 0.00 KM |
| Westbourne Avenue | £ 275,000 | 0 | 0.00 KM |
| Templeton Crescent | £ 198,000 | 0 | 0.00 KM |
| Whitehall Avenue | £ 155,000 | 0 | 0.00 KM |
Nearby Transport
| Name | NLC | TLC | Distance |
|---|---|---|---|
| Prestwick Town | 9543 | PTW | 1.45 KM |
| Prestwick International Airport | 9544 | PRA | 1.72 KM |
| Newton-On-Ayr | 9571 | NOA | 3.79 KM |
| Ayr | 9463 | AYR | 5.22 KM |
| Troon | 9562 | TRN | 7.62 KM |
Nearby Listings
| Address | Price | Type | Score | Distance |
|---|---|---|---|---|
| 89 Briarhill Road, Prestwick, KA9 1HZ | £ 260,000 | BUY | 7 / 10 | 0.00 KM |
| Briarhill Court, Prestwick | £ 120,000 | BUY | 6 / 10 | 0.08 KM |
| Briarhill Road, Prestwick, KA9 | £ 335,000 | BUY | 7 / 10 | 0.09 KM |
| Templeton Crescent, Prestwick, KA9 | £ 335,000 | BUY | 6 / 10 | 0.13 KM |
| Briarhill Road, Prestwick, South Ayrshire, KA9 1HY | £ 135,000 | BUY | 5 / 10 | 0.19 KM |